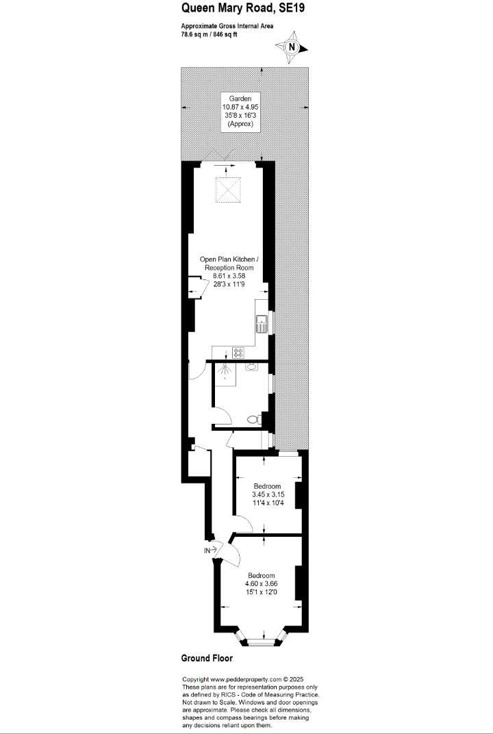
Turnkey two-bed ground-floor home with generous living space and garden.
Share of freehold with 238 years remaining on the lease
Large private west-facing rear garden, professionally landscaped
Impressive 28ft reception room with skylight and bi-fold doors
Two double bedrooms; principal retains period features
Newly renovated throughout with modern kitchen and shower room
Single bathroom only, may be tight for larger families
Solid brick walls assumed uninsulated — potential upgrade needed
Service charge, ground rent and reserve details to be confirmed
This beautifully upgraded two-bedroom ground-floor apartment sits on a sought-after road in Crystal Palace, arranged around a large, light-filled 28ft reception with skylight and bi-fold doors to a private west-facing garden. The owners have remodelled and finished the space to a modern standard: an open-plan kitchen with quartz surfaces, a sizable dining area, and solid wood flooring create an immediately usable family living space.
Both bedrooms are doubles; the principal bedroom retains period character with a bay window, feature fireplace and stripped wood floor. The shower room is contemporary with a walk-in rainfall shower. Practical details include double glazing, mains gas heating with a boiler and radiators, and a long lease (238 years) with a share of the freehold—making this straightforward for owner-occupiers.
The location works well for families: low local crime, several well-rated primary and secondary schools nearby, and direct train services to central London. The apartment benefits from fast broadband and excellent mobile signal, and the secluded landscaped garden provides a private outside space for children and summer entertaining.
Buyers should note a few material points: the building’s solid brick walls likely lack cavity insulation, which may affect running costs unless upgraded. There is a single bathroom for two double bedrooms, and details for service charges, ground rent and sinking fund are yet to be confirmed. Overall, this is a turnkey, characterful flat with outdoor space and long-term tenure, suited to families or professionals seeking an upgraded home in Crystal Palace.
2 bedroom apartment for sale in Woodland Hill, Crystal Palace, London, SE19 — £495,000 • 2 bed • 1 bath • 672 ft²
2 bedroom apartment for sale in Thicket Road, Anerley, London, SE20 — £575,000 • 2 bed • 2 bath • 768 ft²
2 bedroom apartment for sale in Thicket Road, Anerley, London, SE20 — £450,000 • 2 bed • 1 bath • 621 ft²
2 bedroom flat for sale in Harold Road, Crystal Palace, London, SE19 — £525,000 • 2 bed • 2 bath • 947 ft²
2 bedroom apartment for sale in Highland Road, London, SE19 — £525,000 • 2 bed • 1 bath • 854 ft²
2 bedroom maisonette for sale in Queen Mary Road, Crystal Palace, London, SE19 — £400,000 • 2 bed • 1 bath • 682 ft²






















































