**Standout Features:**
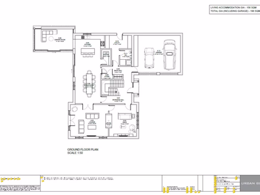
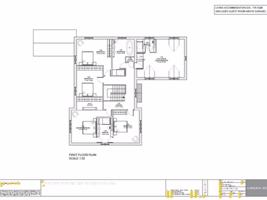
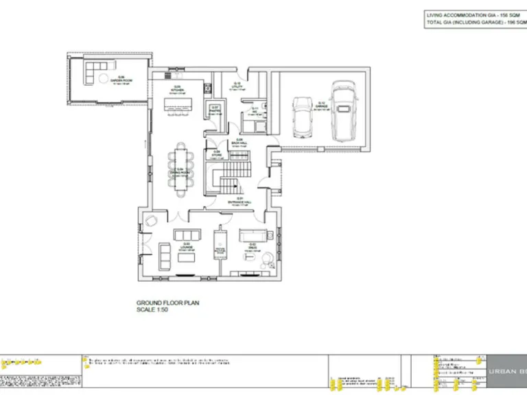
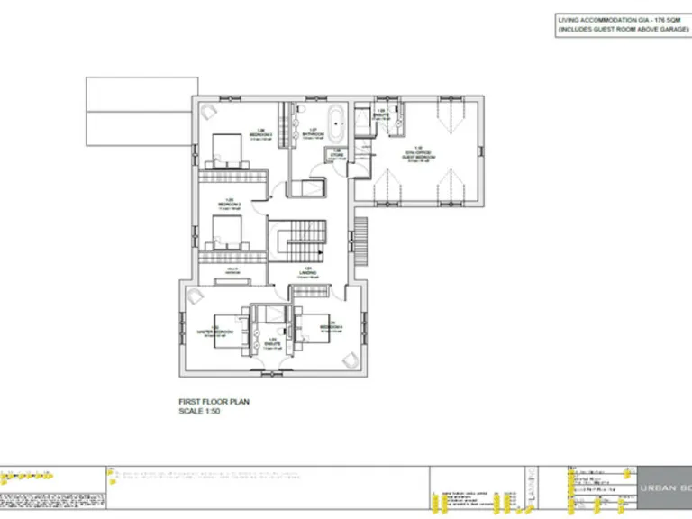
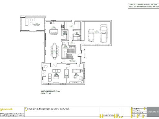
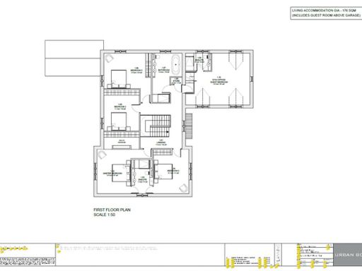
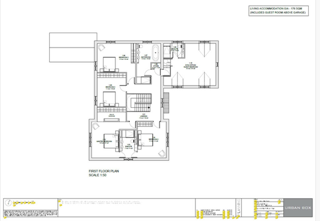
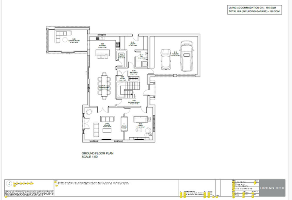
- Approved planning permission for a luxury five-bedroom detached home (Application Reference No: PL/2022/05120)
- Spacious design with three reception rooms and two en-suites
- Large plot with wrap-around garden and double garage
- Driveway parking for multiple vehicles
- Located in the affluent area of Trowbridge, Wiltshire
**Summary:**
This building plot presents a unique opportunity to create your dream home in the sought-after suburb of Trowbridge, Wiltshire. With approved plans for a stunning five-bedroom detached home, this property boasts a generous layout featuring three spacious reception rooms, an open-plan kitchen/dining area, a utility room, and multiple luxurious en-suites. The potential for a wrap-around garden and ample parking with a double garage add even more appeal.
Located in a vibrant community with highly-rated schools and diverse shopping and leisure facilities, this plot is ideal for families looking for space and comfort while still being connected to major transport links. The area offers the charm of suburbia, complemented by fast broadband speeds and a secure neighborhood, making it perfect for professionals, families, and investors alike.
Don’t miss this exceptional chance to bring your vision to life in a community that embodies both tranquility and convenient living. Act quickly; such prime opportunities don’t stay on the market for long!
Land for sale in Station Road, Westbury, BA13 — £110,000 • 1 bed • 1 bath
Plot for sale in Plots with planning behind Lion & Fiddle, Trowbridge Road, Hilperton, Trowbridge, BA14 — £275,000 • 1 bed • 1 bath • 2300 ft²
4 bedroom detached house for sale in West Ashton Road, Trowbridge, BA14 — £200,000 • 4 bed • 1 bath
Plot for sale in West Ashton Road, Trowbridge, BA14 — £200,000 • 4 bed • 3 bath • 2783 ft²
Plot for sale in Broughton Gifford, Melksham, SN12 — £285,000 • 4 bed • 2 bath • 4000 ft²
Land for sale in The Tynings, Westbury, BA13 — £95,000 • 1 bed • 1 bath


























