Ready-to-build plot with approved plans for a spacious family home near schools.
Full planning permission for a four-double-bedroom detached house (PL/2023/08711)
Large freehold plot with good vehicular and building access
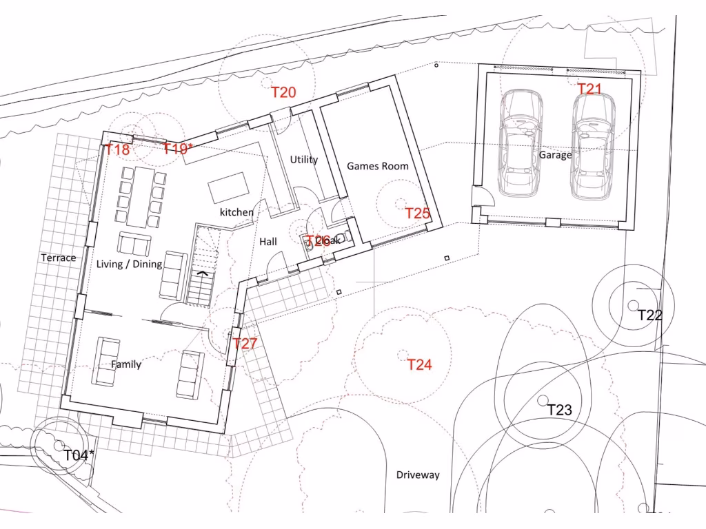
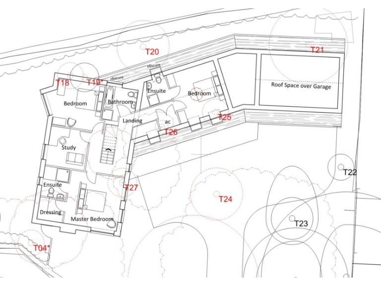
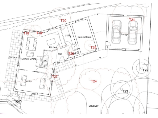
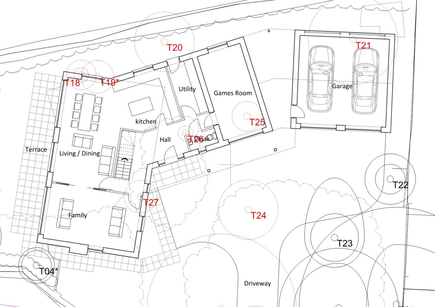
Double garage included in consent; three reception rooms and utility
Close to primary and secondary schools, shops, parkland and riverside walks
No flooding risk; site near utility connections ready for hookup
Average broadband speeds; mobile signal excellent
Average local crime levels; build works and finishes required
Located in a very affluent, ageing suburban neighbourhood
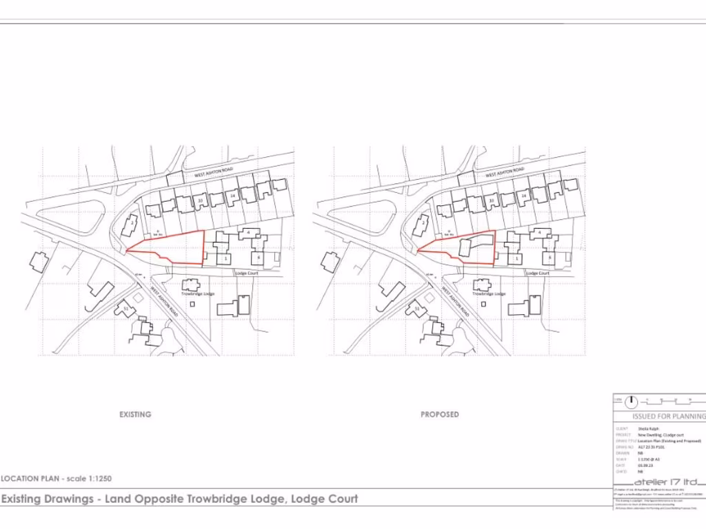
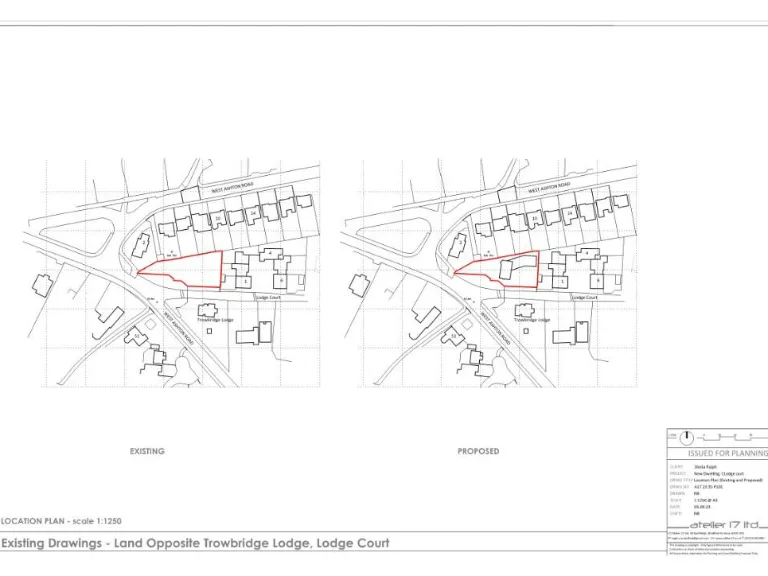
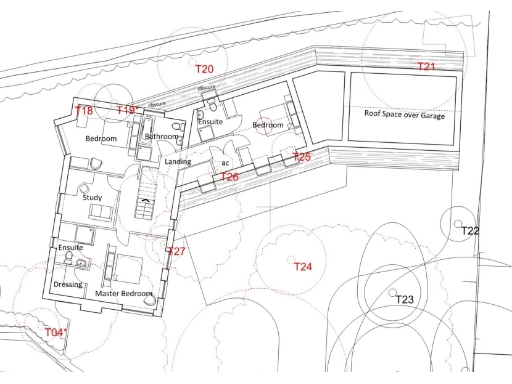
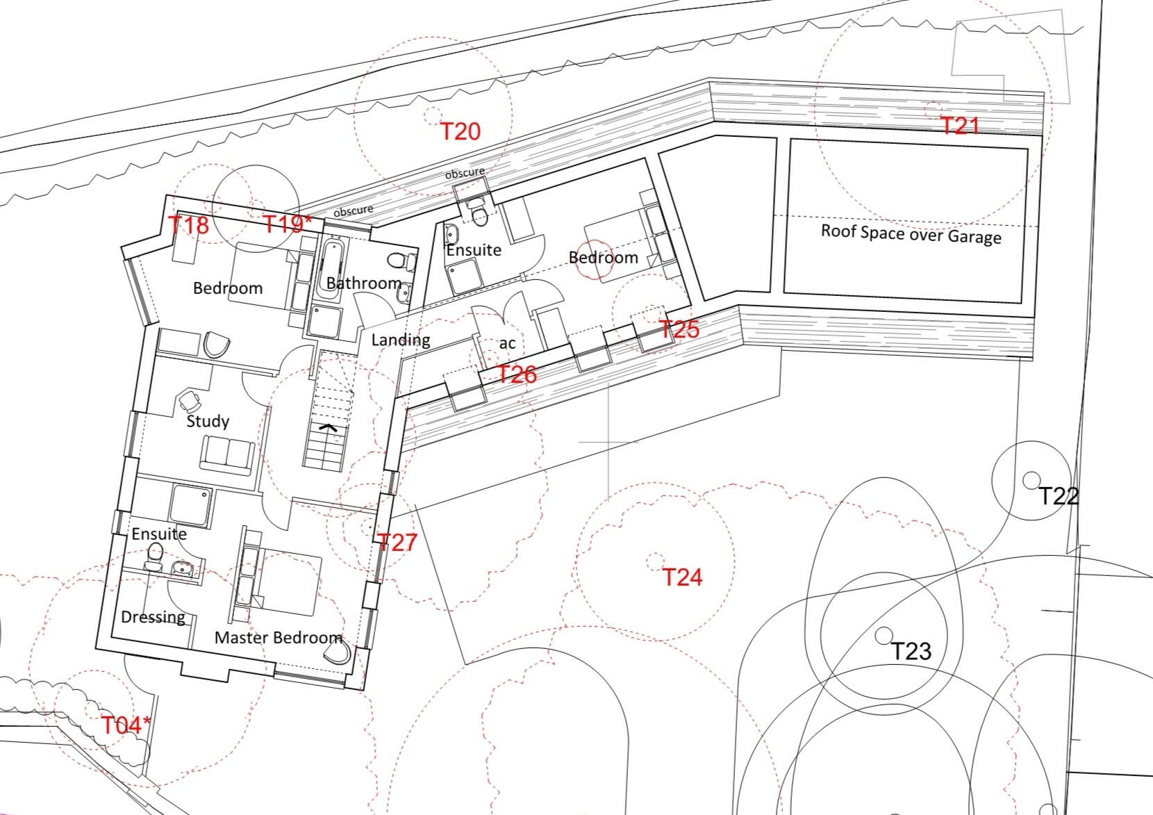
This is a generous freehold building plot with full planning permission (PL/2023/08711) for a contemporary four-double-bedroom detached home with a double garage. The consented design includes three reception rooms, kitchen, utility, cloakroom, two en suites, shower room and family bathroom—ready for a developer or self-builder to move straight to construction.
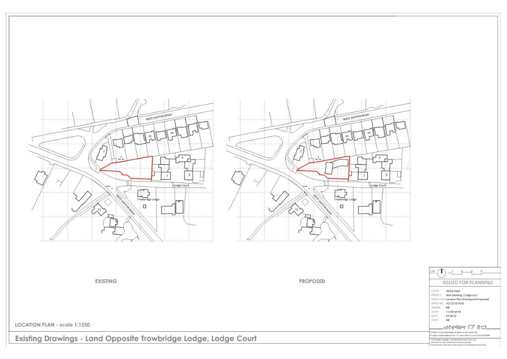
Situated on the south-easterly outskirts of Trowbridge, the site sits in a very affluent, settled neighbourhood close to primary schools, secondary schools, shops, parkland and riverside walks. The plot offers good vehicular and building access with nearby utility connections and no flooding risk, making mobilisation straightforward.
Buyers should note this is a plot—all build works, finishes and final services installation are required. Broadband is average and local crime levels are average. The setting and full planning permission create clear value for families wanting a bespoke, modern family home in an established suburb, or for an investor/developer seeking a ready-to-build opportunity.
Land for sale in Ashton Rise, Hilperton, BA14 — £275,000 • 1 bed • 1 bath
Plot for sale in Plots with planning behind Lion & Fiddle, Trowbridge Road, Hilperton, Trowbridge, BA14 — £275,000 • 1 bed • 1 bath • 2300 ft²
Plot for sale in Frome Road, Bath, BA2 — £165,000 • 1 bed • 1 bath
Land for sale in Building Plot, Frome, BA11 — £400,000 • 4 bed • 3 bath • 3821 ft²
Land for sale in Land Adjacent to 22 Leafield Place, Trowbridge, BA14 9TH, BA14 — £10,000 • 1 bed • 1 bath • 4750 ft²
3 bedroom semi-detached house for sale in Seymour Road, Trowbridge, BA14 — £300,000 • 3 bed • 1 bath • 1179 ft²










































