Private large garden and easy rail links for commuters and growing households.
Share of Freehold; offered with no onward chain
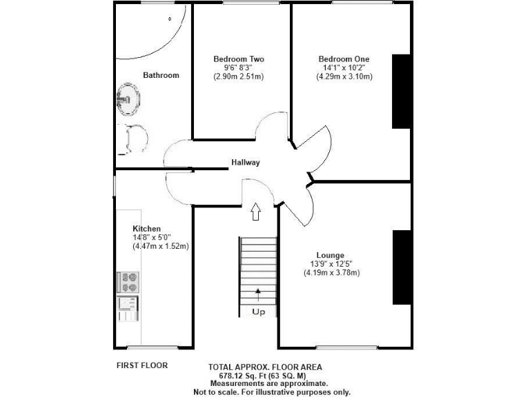
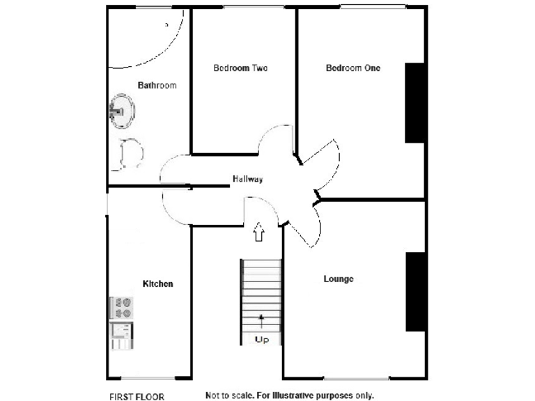
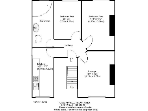
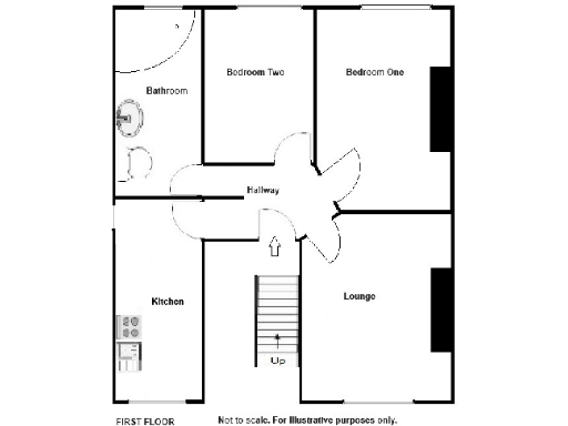
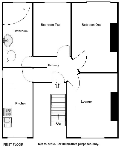
A well-presented two-bedroom first-floor flat in a Victorian semi-detached building, offered with no onward chain and a Share of Freehold. The apartment offers generous living proportions (approx. 678 sq ft), high ceilings, original sash windows and a large private rear garden of about 85ft — rare for a flat in this location.
Practical features include gas central heating via boiler and radiators, secondary glazing, and straightforward kitchen and bathroom layouts. The flat will suit first-time buyers or investor-purchasers looking for a comfortable home with strong commuter links: Tulse Hill station and local amenities are within easy walking distance.
Notable drawbacks are the relatively short remaining lease (97 years) which can affect mortgage availability and future value; the building’s solid brick construction is assumed to have no insulation; and the area records above-average crime and higher deprivation indices. The property is habitable as-is but offers clear scope for energy-improvement works and cosmetic updating to increase comfort and long-term value.
1 bedroom flat for sale in Palace Road, Brixton, SW2 — £340,000 • 1 bed • 1 bath • 653 ft²
2 bedroom flat for sale in Harpenden Road, West Norwood, London, SE27 — £500,000 • 2 bed • 1 bath • 780 ft²
2 bedroom flat for sale in Norwood Road, Herne Hill, SE24 — £425,000 • 2 bed • 1 bath • 514 ft²
1 bedroom apartment for sale in Maley Avenue, West Norwood, London, SE27 — £335,000 • 1 bed • 1 bath • 395 ft²
2 bedroom flat for sale in Thurlow Park Road, West Dulwich, SE21 — £455,000 • 2 bed • 1 bath • 499 ft²
3 bedroom flat for sale in Saxon Road, London, SE25 — £425,000 • 3 bed • 1 bath • 980 ft²


























































