Chain-free four-bed bungalow with large garden and outbuildings in North Ruislip.
Four bedrooms with two first-floor en suites
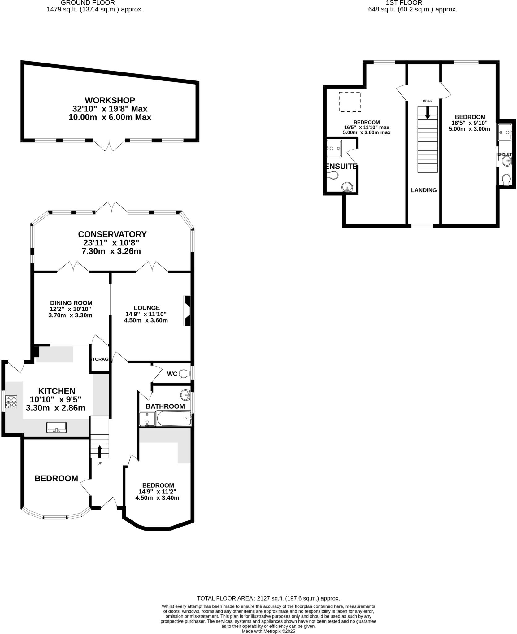
Set on a quiet North Ruislip road, this detached four-bedroom bungalow offers flexible accommodation across two levels and generous outdoor space — ideal for growing families seeking scope to personalise. The layout includes three reception areas (living room, dining room and conservatory), a kitchen, ground-floor shower room and two first-floor bedrooms with en suites. Large outbuildings and a powered summerhouse with water extend usable space for hobbies, home office or storage.
Practical features include a rain-harvest tank, off-street driveway parking for several vehicles and solid brick construction with internal insulation. The plot is large and mainly laid to lawn, giving space for children to play and for possible landscaping improvements. Nearby transport links (Ruislip High Street, multiple tube lines and road connections) and a selection of well-regarded local schools make the location family-friendly.
The property is offered chain-free but does require some modernisation throughout. Buyers should note building control documentation for a loft conversion is unavailable and will be handled by way of indemnity. Council tax is above average; heating is gas boiler and radiators. These points, plus the renovation requirement, mean the home is best suited to purchasers prepared to invest time and budget to update and potentially reconfigure spaces.
For a buyer willing to modernise, the bungalow presents clear potential: reworking internal layouts, updating finishes and converting attic space (with proper approvals) could add significant living value. The combination of substantial plot, outbuildings and convenient location creates a workable canvas for a comfortable family home or a long-term value project.
2 bedroom bungalow for sale in Bury Street, Ruislip, HA4 — £550,000 • 2 bed • 1 bath • 780 ft²
4 bedroom bungalow for sale in The Croft, Ruislip, HA4 — £625,000 • 4 bed • 2 bath • 902 ft²
4 bedroom bungalow for sale in Hardy Avenue, Ruislip, HA4 — £700,000 • 4 bed • 2 bath • 1647 ft²
2 bedroom detached bungalow for sale in Woodville Gardens, Ruislip, HA4 — £598,000 • 2 bed • 1 bath • 888 ft²
2 bedroom detached bungalow for sale in Bury Street, Ruislip, HA4 — £675,000 • 2 bed • 1 bath • 1053 ft²
4 bedroom bungalow for sale in St. Margarets Road, Ruislip, HA4 — £850,000 • 4 bed • 1 bath • 1773 ft²






















































































