Chain-free four-bedroom home with garage and private rear garden.
Detached chalet-bungalow on a large plot with extension potential (STPP)
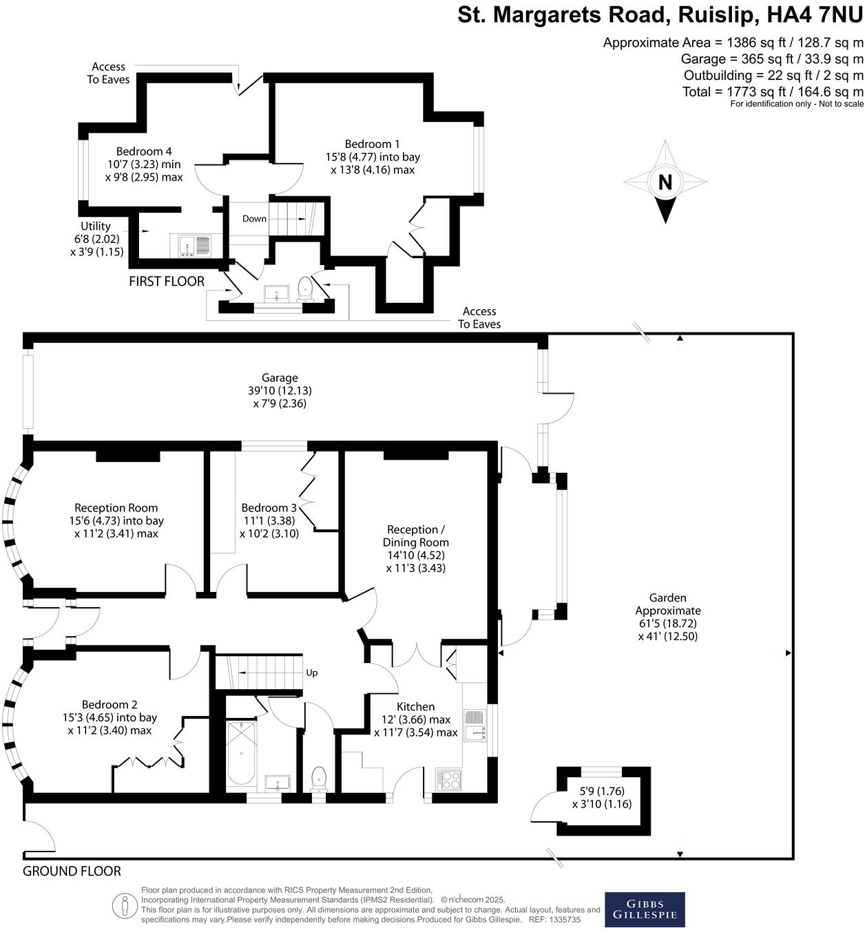
Set on a large plot in Ruislip, this detached chalet-bungalow offers spacious single-storey living with dormer accommodation and genuine extension potential (STPP). Chain free and freehold, the house includes four bedrooms, two reception rooms, an attached garage, driveway parking and a private rear garden — a strong starting point for a family wanting more space.
The property retains period character — bay windows, original timber floorboards and a central fireplace — but much of the interior is dated and will need modernisation. There is one family bathroom plus a guest WC, so improving/enlarging bathroom facilities could add significant comfort and value. The solid brick walls are as-built with no known insulation upgrades, and glazing dates are unknown.
Practical positives include mains gas heating to radiators, very low local crime, excellent mobile signal and fast broadband, making the home ready for family life and remote working. Local schools rated Good are nearby and Ruislip High Street, stations and major road links are within easy reach.
This house suits a family or buyer seeking a renovation/extension project to create a modern, larger home. Important factual drawbacks: decorative and services updating likely required, single main bathroom for four bedrooms, potential insulation improvements needed, and council tax is high.
4 bedroom bungalow for sale in St. Edmunds Avenue, Ruislip, Middlesex, HA4 — £850,000 • 4 bed • 1 bath • 2403 ft²
2 bedroom detached bungalow for sale in Bury Street, Ruislip, HA4 — £675,000 • 2 bed • 1 bath • 1053 ft²
2 bedroom bungalow for sale in Ladygate Lane, Ruislip, Middlesex, HA4 — £625,000 • 2 bed • 1 bath • 861 ft²
2 bedroom detached bungalow for sale in Woodville Gardens, Ruislip, HA4 — £598,000 • 2 bed • 1 bath • 888 ft²
3 bedroom detached bungalow for sale in Howletts Lane, Ruislip, HA4 — £725,000 • 3 bed • 1 bath • 1218 ft²
2 bedroom detached bungalow for sale in Ladygate Lane, Ruislip, HA4 — £625,000 • 2 bed • 1 bath • 761 ft²


























































































