Income plus consented development in a prime North Cornwall village.
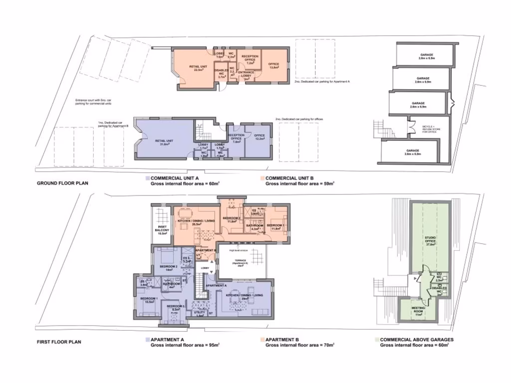
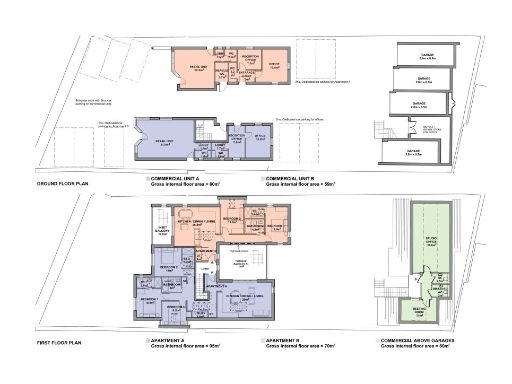
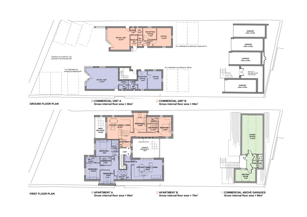
Income exceeding £40,000 per year from multi-let commercial units
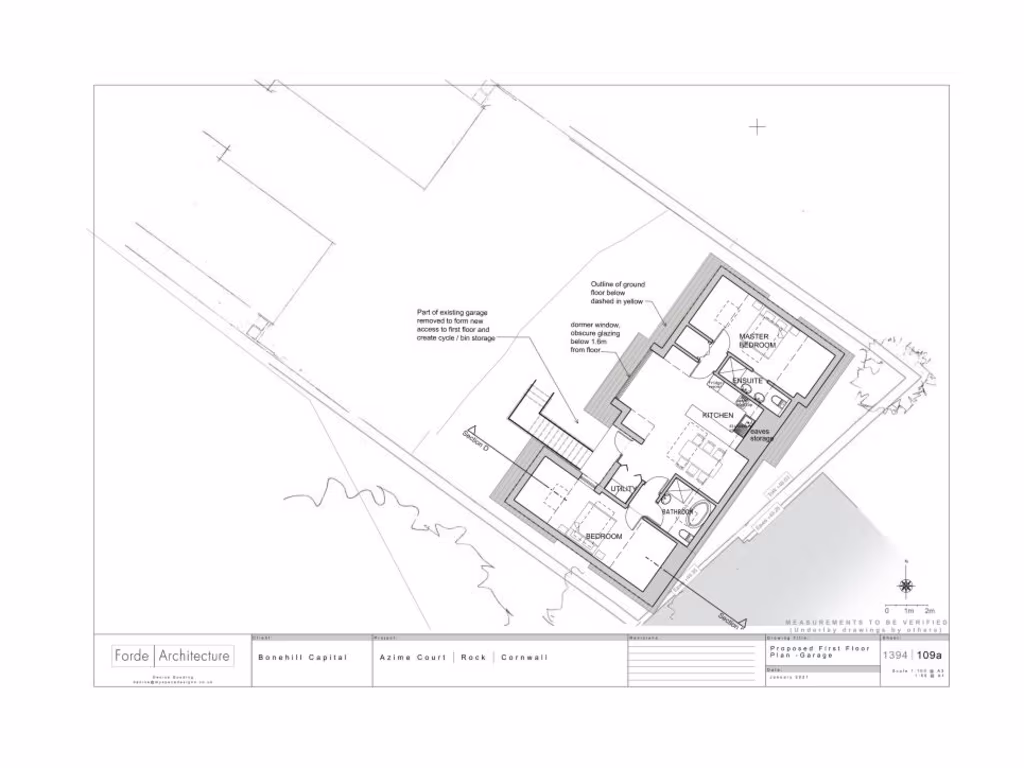
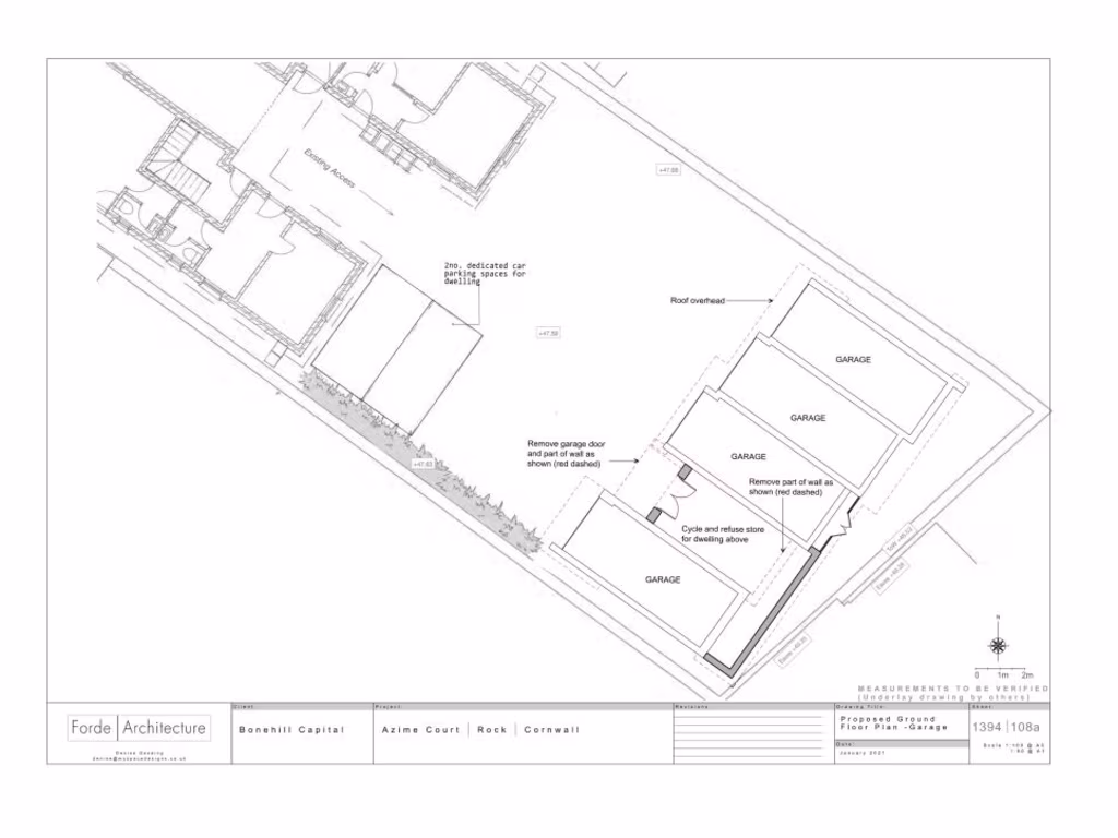
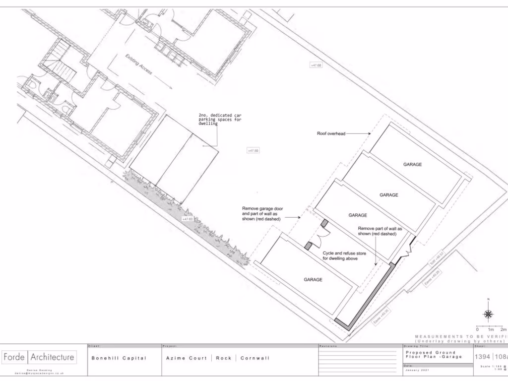
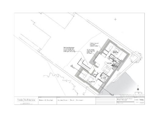
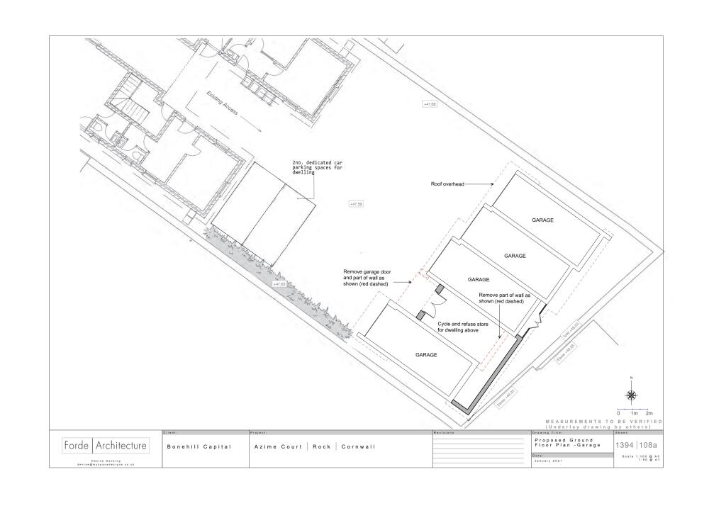
Planning granted for additional residential development to the rear
Vacant 2-bed flat offering immediate income or owner use
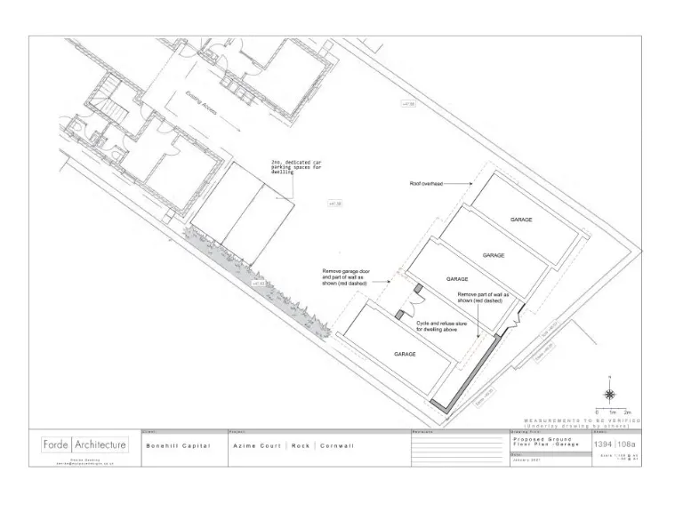
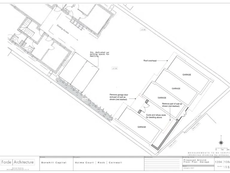
Row of garages and generous forecourt providing multiple parking spaces
Freehold title; coastal village location with good local amenities
Situated on a main road — high visibility but roadside disturbance possible
Energy Performance rating applied for (not currently available)
Requires refurbishment and active asset management to maximise value
This mixed-use freehold in the highly sought-after village of Rock offers an immediate rental income of just over £40,000 and clear near-term uplift from consented residential development to the rear. The site includes ground-floor retail and office tenants, a vacant two‑bed flat, and a row of garages with a sizeable forecourt and additional parking — all on a prominent roadside plot with direct access.
Planning permission is already granted for further residential units to the rear, creating a straightforward value-add route for an investor or developer. The vacant two‑bed flat could be brought back into income quickly, used as a seasonal bolthole or included within a wider conversion strategy. Mobile signal is excellent and local amenities and schools are close by, supporting lettability year-round.
Buyers should note the property is sold as a mixed investment and will require refurbishment and active management to realise the development upside. Energy performance rating is applied for. The site sits on a main road, which gives visibility and access but may be a consideration for some occupiers. Offered freehold at a guide of £950,000, this represents a rare development-plus-income opportunity in North Cornwall.
2 bedroom detached house for sale in Azime Court, PL27 — £950,000 • 2 bed • 1 bath • 2897 ft²
Land for sale in Rock Road, Rock, Wadebridge, Cornwall, PL27 — £1,800,000 • 1 bed • 1 bath
Commercial property for sale in Unit 7, Pityme, PL27 — £420,000 • 1 bed • 1 bath • 979 ft²
4 bedroom terraced house for sale in 6 Lowenna Manor, PL27 — £795,000 • 4 bed • 3 bath • 1533 ft²
High street retail property for sale in Retail Premises, 2 The Pavilion, Rock, Wadebridge, PL27 — £25,000 • 1 bed • 1 bath • 371 ft²
2 bedroom detached house for sale in Painsdale, PL27 — £995,000 • 2 bed • 1 bath • 919 ft²






















































































