Freehold care‑let block with guaranteed five‑year income in central Gosport..
12 newly refurbished apartments above ground‑floor retail
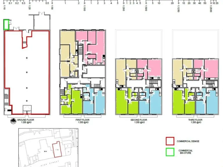
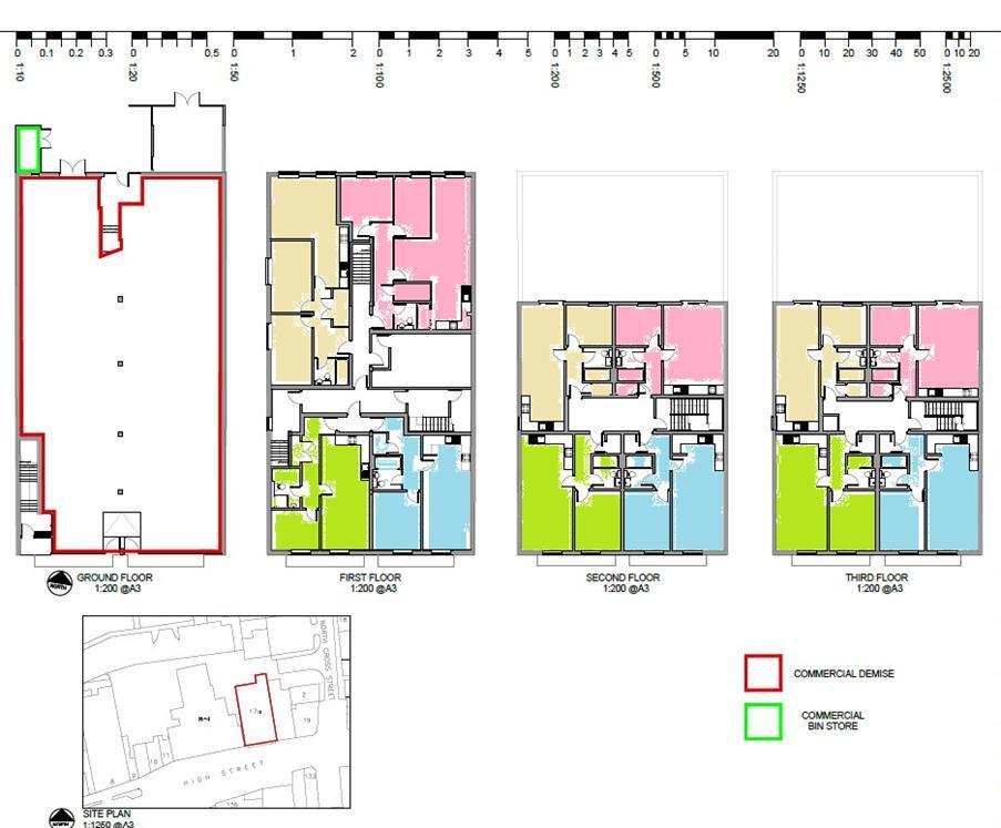
A substantial town‑centre freehold investment offering 12 newly refurbished apartments arranged above ground‑floor retail in Gosport High Street. The block is let on a single overriding lease to a registered care provider, delivering a guaranteed income stream for the next five years and presented as a hands‑off residential care investment with planning for Class C use.
The scheme produces a reported net initial yield of 7.65% at a guide price of £2,300,000 (assuming purchaser costs of 6.34%) and is held in an SPV, so the sale is expected to be treated as a TOGC. The property comprises 2 x 2‑bed and 10 x 1‑bed apartments, communal areas and ground‑floor retail/communal space across a large overall footprint (approx. 6,437 sq ft).
Buyers should note the material financing consideration: there are only five years remaining on the overriding lease. Many mortgage lenders will decline lending in this situation, so purchasers should be prepared to fund the acquisition with cash, specialist finance, or secure lease renewal discussions with the operator. The property sits in a very deprived area with a high crime score, which may affect long‑term capital growth and operator options.
This asset suits an investor seeking immediate, contract‑backed income from a town‑centre residential care use, and who understands the short unexpired lease and local market challenges. The recent refurbishment reduces immediate capex, but the lease length and local socio‑economic indicators are the principal risks to weigh against the reported yield.
2 bedroom flat for sale in High Street, Gosport, Hampshire, PO12 — £122,500 • 2 bed • 1 bath • 570 ft²
High street retail property for sale in High Street, Gosport, Hampshire, PO12 — £240,000 • 1 bed • 1 bath • 3187 ft²
2 bedroom house for sale in Bemisters Lane, Gosport, PO12 — £150,000 • 2 bed • 2 bath
2 bedroom apartment for sale in Mumby Road, Gosport, Hampshire, PO12 — £129,995 • 2 bed • 1 bath • 561 ft²
2 bedroom mixed use property for sale in 55 Brockhurst Road, Gosport, Hampshire, PO12 — £225,000 • 2 bed • 1 bath • 1256 ft²
2 bedroom apartment for sale in Grosvenor Mews, Gosport, PO12 — £125,000 • 2 bed • 1 bath • 649 ft²


























































