AB38 7QZ - 1 bed speyside serviced plot in Moray, AB38 7QZ

View on Property Piper

Land for sale in High Street, 59 High Street, Archiestown, Aberlour, AB38

Summary - TOG MHOR CARAVAN, 59, HIGH STREET AB38 7QZ

1 bed 1 bath Land

Serviced self‑build plot with full permission and stunning panoramic Speyside views.
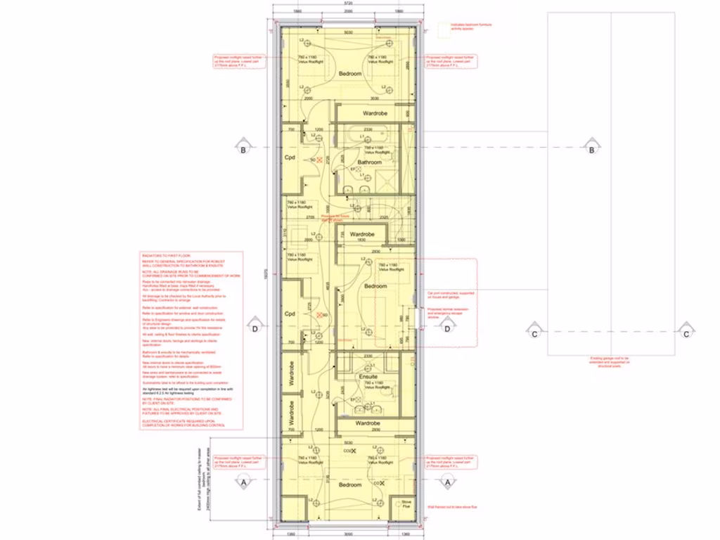
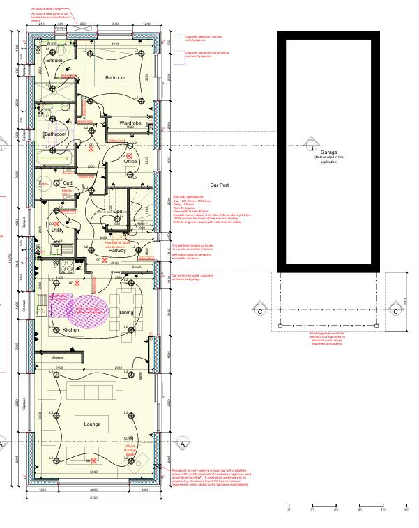
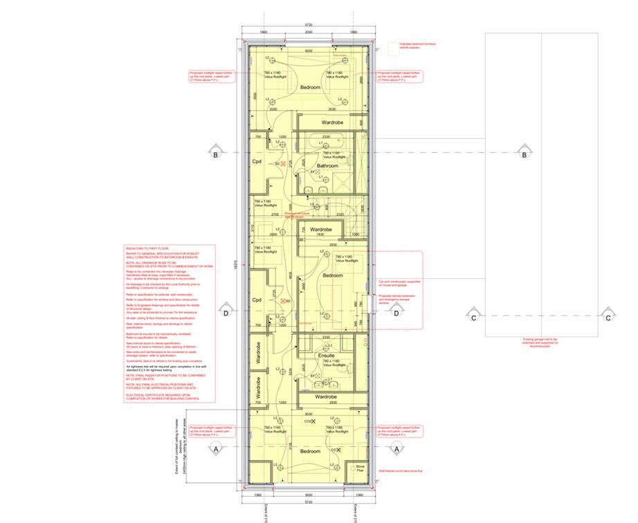
Fully serviced plot with full planning permission and passed building warrant
Architect-designed drawings and detailed costings provided
Panoramic countryside views in central Speyside whisky country
Two on-site parking spaces and turning area required by conditions
Must commence development within three years of permission
Restrictions on boundary placement and west elevation windows
Slow fixed broadband and average mobile signal in the area
Wider area classed as remoter community with higher deprivation
Set in the heart of Speyside whisky country, this fully serviced self‑build plot at Tog Mhor comes with full planning permission and a passed building warrant. Architect-designed drawings are included and all costings are available, offering a ready-to-start turn‑key project for someone who wants to build a striking modern home with panoramic rural views.

The approved scheme envisages a substantial contemporary house with large glazed elements, garage/carport, driveway and landscaped front and rear gardens — suitable as a permanent residence or a high-appeal holiday let. The site is well located for local amenities in Archiestown and for access to nearby distilleries and countryside attractions.

Buyers should note a number of planning conditions: two on-site parking spaces, a turning area, set-back of boundary walls/fences, restrictions on drainage to the public carriageway, and retention of opaque ground-floor west windows. Development must commence within three years of consent. Practical drawbacks include slow fixed broadband, only average mobile signal locally, and the wider area is classified as a remoter, ageing rural community with higher local deprivation indicators.

This plot will suit a buyer seeking a near‑ready development with design and approvals in place who accepts the listed planning constraints and rural infrastructure limits. The combination of a serviced site, full drawings and building warrant reduces early-stage risk, while the location offers strong lifestyle and holiday‑letting appeal in Speyside.

Property Details

Brochure Descriptions

Image Descriptions

Textual Property Features

Target Audience

AI Tags

Detected Visual Features

Nearest Bars And Restaurants

,,,,}

Nearest General Shops

,,}

Nearest Grocery shops

,,}

Nearest Supermarkets

,,}

Nearest Religious buildings

,,}

Nearest Medical buildings

,,,}

Nearest Leisure Facilities

,,,,}

Nearest Tourist attractions

,,}

Nearest Train stations

,,}

Nearest Bus stations and stops

,,,,}

Nearest Hotels

,,}

Tags

Local Market Stats

AirBnB Data

Similar Properties

Meta

High Res Images

Compatible Images

Low res Images

Thumbnails

Raw Images