Move-in ready family home by green space and good schools.
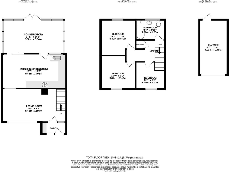
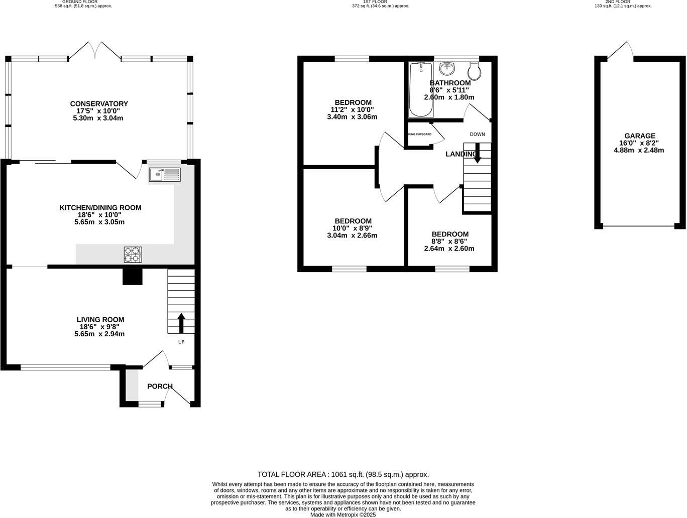
Three bedrooms with modern family bathroom
Spacious lounge and open-plan kitchen/diner
Lean-to conservatory adds extra living space
Detached single garage plus one parking space
Gas central heating and uPVC double glazing
Small rear garden, limited outdoor space
Located near Good-rated primary and secondary schools
Area classified as deprived; average local crime
This mid-20th-century terraced townhouse offers a practical, well-presented layout across two floors. A spacious lounge leads to an open-plan kitchen/diner and a lean-to conservatory, creating flexible family living and natural light to the rear. The first floor provides three bedrooms and a modern family bathroom, all presented in good decorative order with gas central heating and uPVC double glazing.
Outside there is a small rear garden, a detached single garage and an additional parking space – convenient for families or as a rental. The house sits overlooking a pleasant green area on a residential estate close to several Good-rated primary and secondary schools, making the location suitable for children and commuters with fast broadband and strong mobile signal.
Buyers should note the property is in an area described as deprived and a hampered neighbourhood; crime levels are average. The plot is small compared with detached alternatives and there are no notable views. Overall, the home is move-in ready and likely to appeal to families seeking value or investors wanting a straightforward, let-ready three-bedroom terrace on a freehold title.
3 bedroom terraced house for sale in Charlbury Close, Moredon, Swindon, SN25 — £250,000 • 3 bed • 1 bath • 893 ft²
3 bedroom semi-detached house for sale in Welcombe Avenue, Swindon, Wiltshire, SN3 — £225,000 • 3 bed • 1 bath • 823 ft²
2 bedroom terraced house for sale in Elmore, Swindon, SN3 — £237,000 • 2 bed • 1 bath • 710 ft²
3 bedroom terraced house for sale in Old Dairy Close, Upper Stratton, Swindon, SN2 — £280,000 • 3 bed • 2 bath • 837 ft²
3 bedroom terraced house for sale in Raybrook Crescent, Rodbourne, Swindon, Wiltshire, SN2 — £270,000 • 3 bed • 1 bath • 667 ft²
3 bedroom end of terrace house for sale in Dulverton Avenue, Swindon, SN3 — £280,000 • 3 bed • 1 bath • 883 ft²


























































































