South-facing garden and two off-street parking spaces, walking distance to major hospitals.
No onward chain — newly renovated throughout
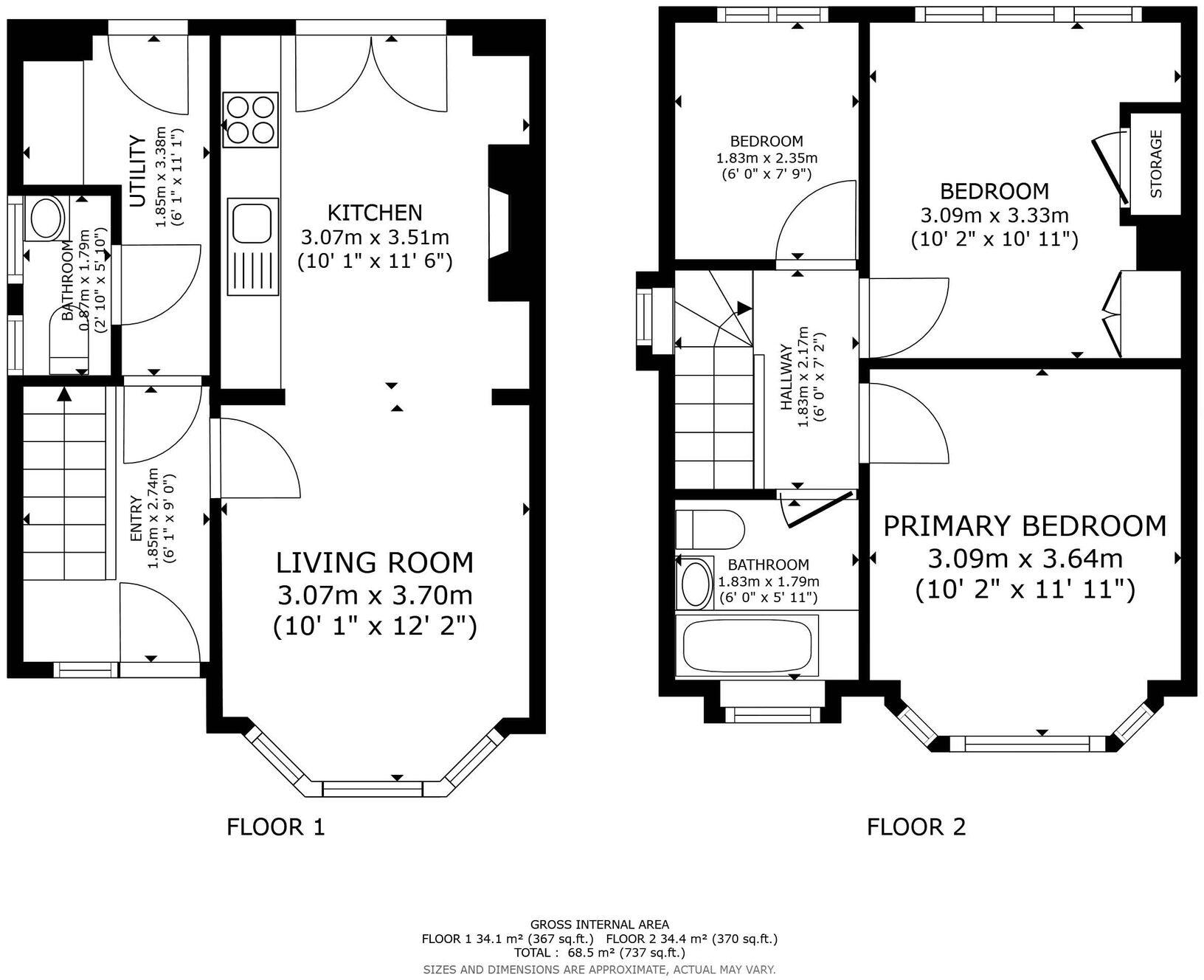
This recently renovated three-bedroom semi presents a bright, move-in-ready family home in a sought-after Headington side road. The ground floor offers a bay-fronted living room, modern kitchen with garden access and a practical utility and WC — ideal for daily family routines and for hospital professionals who need swift access to nearby sites. Sold with no onward chain, the property is convenient for a quick move.
Externally there is off-street parking for two cars and a generous south-facing rear garden that will suit families and entertaining. The plot size provides scope to extend, subject to planning consent, offering a clear way to add space or value if planning permission is obtained. Broadband is fast, mobile signal excellent and the local area is well served by shops, buses and good schools.
Buyers should note the house is relatively small at about 737 sq ft, so living space is compact compared with larger family homes. The EPC is D and the property’s solid brick construction likely lacks cavity insulation, so heating costs may be higher than newer builds; further insulation works could be considered. Any extension would require planning approval — no permissions are currently in place.
Overall, this property suits families or professionals seeking a newly refurbished home close to John Radcliffe Hospital and local schools, with garden space and parking already in place and realistic potential to increase space through planning-led extension.
3 bedroom semi-detached house for sale in Stainfield Road, Headington, OX3 — £439,950 • 3 bed • 1 bath • 915 ft²
3 bedroom semi-detached house for sale in Headington, Oxford, OX3 — £500,000 • 3 bed • 1 bath • 1024 ft²
3 bedroom semi-detached house for sale in Headley Way, Headington, Oxford, OX3 — £400,000 • 3 bed • 1 bath • 536 ft²
3 bedroom semi-detached house for sale in Risinghurst, Oxford, OX3 — £425,000 • 3 bed • 1 bath • 822 ft²
3 bedroom semi-detached house for sale in Titup Hall Drive, Headington, Oxford, OX3 — £400,000 • 3 bed • 2 bath • 732 ft²
3 bedroom semi-detached house for sale in Old Road, Headington, OX3 — £425,000 • 3 bed • 1 bath • 934 ft²


































































