Large two-bedroom Georgian Revival flat with concierge near Regent's Park and Lord’s.
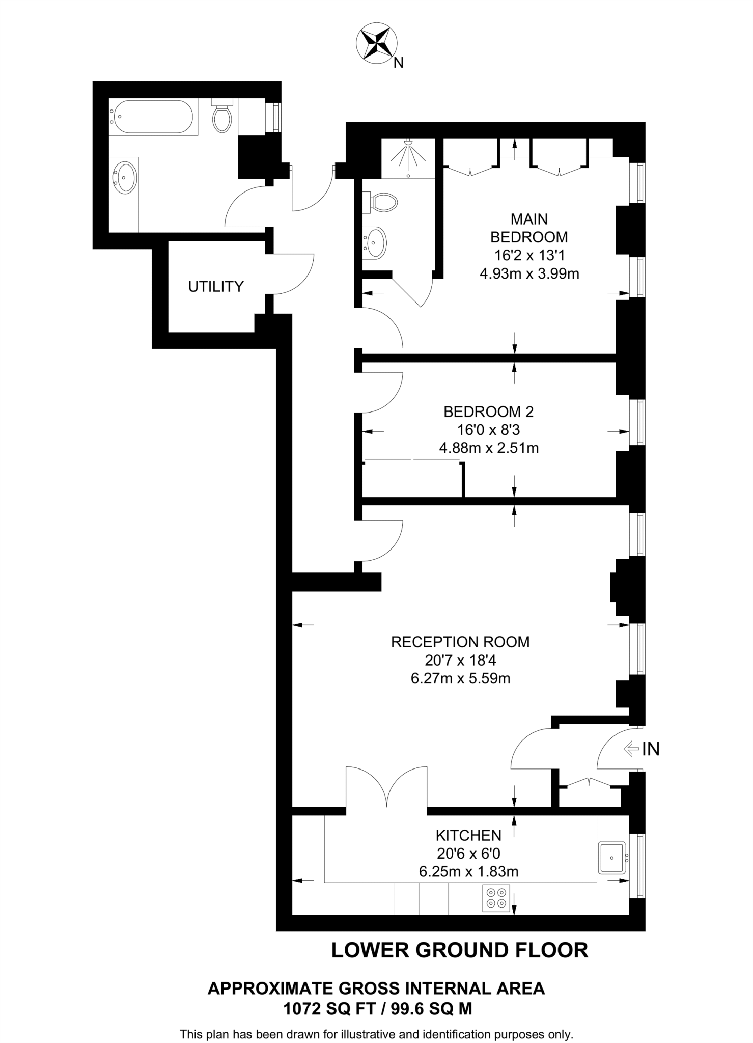
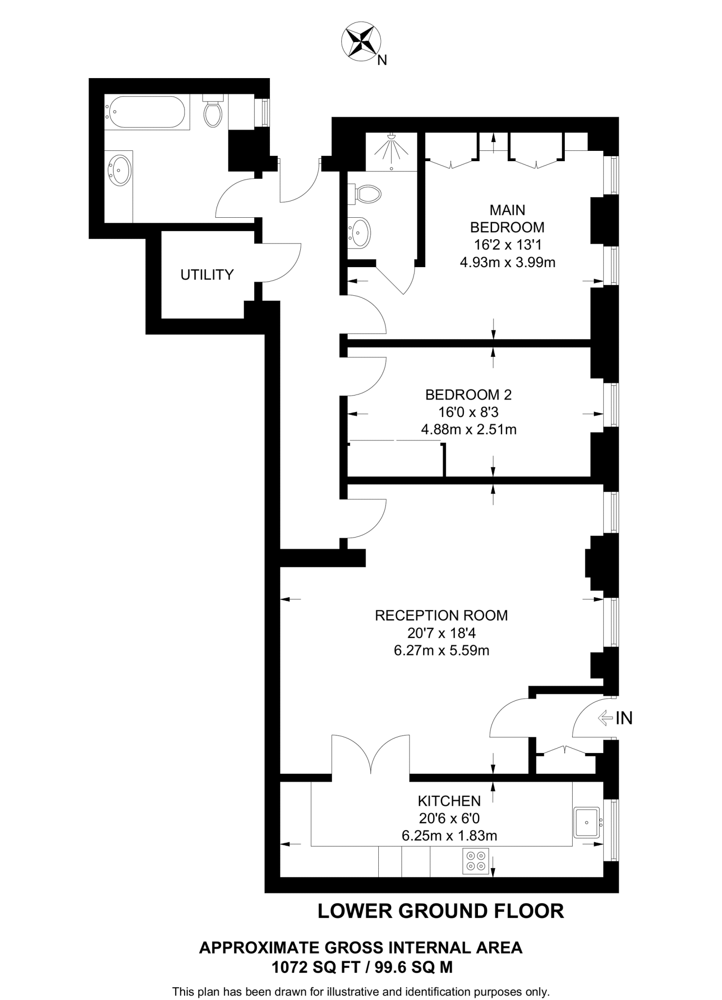
Approx 1,072 sq ft — notably spacious for a two-bedroom flat
A generous two-bedroom apartment in a handsome Georgian Revival block, finished to a high standard and arranged over approximately 1,072 sq ft. The flat offers a bright, well-proportioned reception with dining area, an eat-in modern kitchen and a principal bedroom with an en suite shower room; a second double bedroom and a separate smart bathroom complete the accommodation.
Practical conveniences include on-site concierge, double glazing (install date unknown), excellent mobile signal and fast broadband — attributes that suit busy family life or professional executives. The property benefits from share of freehold and sits moments from St John’s Wood High Street, Lord’s Cricket Ground and the green open spaces of Regent’s Park. Local schools include several highly regarded independent and state options.
Buyers should note a few material considerations: heating is electric via room heaters (no communal gas central heating), walls are solid brick with assumed no insulation which may affect running costs, and double glazing installation date is not provided. These factors may require future energy-efficiency improvements.
Overall this is a rare, spacious period apartment in a very affluent, well-connected part of NW8. It will particularly suit families or professionals looking for generous living space, strong local amenities and easy access to central London, with potential to improve energy performance over time.
2 bedroom apartment for sale in Circus Lodge, Circus Road, St John's Wood, London, NW8 — £800,000 • 2 bed • 2 bath • 874 ft²
3 bedroom apartment for sale in Grove Court, Grove End Road, St John's Wood, London, NW8 — £2,150,000 • 3 bed • 2 bath • 1539 ft²
2 bedroom flat for sale in Hamilton House, St Johns Wood, NW8 — £900,000 • 2 bed • 2 bath • 916 ft²
2 bedroom flat for sale in Grove End Road, London, NW8 — £775,000 • 2 bed • 1 bath • 778 ft²
2 bedroom flat for sale in Grove End Road, St John's Wood NW8 — £2,700,000 • 2 bed • 2 bath • 1545 ft²
2 bedroom flat for sale in Balmoral Court, Queens Terrace, London NW8 — £1,850,000 • 2 bed • 2 bath • 1220 ft²


























































































































































































































