Move-in ready with garden, en suite and solar panels—ideal for growing households..
- New-build three-bedroom semi-detached with en suite to main bedroom
- Open-plan kitchen/diner with French doors to rear garden
- Compact overall size (~674 sq ft); efficient rather than spacious rooms
- Energy-saving solar PV panels reduce running costs
- Good-sized lounge and downstairs WC for family convenience
- Tenure not specified; check mortgage eligibility and purchase conditions
- Very low local crime, fast broadband, very affluent village setting
- Nearby primaries rated Good; local secondary currently requires improvement
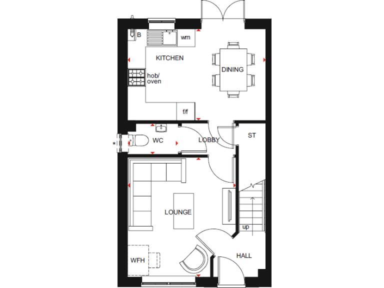
Move-in ready for Christmas, this new-build three-bedroom semi-detached home on Willow Grove offers practical family living across compact, well-planned rooms. The ground floor has a large open-plan kitchen/diner with French doors onto the rear garden, plus a good-sized lounge and a downstairs WC — ideal for everyday family flow and entertaining.
Upstairs provides a main bedroom with en suite, a second double bedroom, a single bedroom and a family bathroom. The property totals about 674 sq ft, so rooms are efficient rather than spacious. Energy-efficient features include solar PV panels, helping to reduce running costs.
Set in a very low-crime, very affluent village with fast broadband and nearby parks, lake and leisure facilities, the location suits families seeking community amenities and good primary schools. Two local primaries are rated Good; the nearest secondary (Wixams Academy) currently requires improvement — worth noting for buyers with older children.
Practical points: the overall footprint is small and the tenure is not specified, which may affect mortgage or purchase considerations. This home is best for first-time buyers or young families who prioritise new-build efficiency, low running costs and a garden over large internal space.
3 bedroom detached house for sale in Southern Cross,
Wixams,
MK42 6AW, MK42 — £405,000 • 3 bed • 1 bath • 654 ft²
3 bedroom semi-detached house for sale in Southern Cross,
Wixams,
MK42 6AW, MK42 — £436,995 • 3 bed • 1 bath • 809 ft²
3 bedroom semi-detached house for sale in Southern Cross,
Wixams,
MK42 6AW, MK42 — £431,000 • 3 bed • 1 bath • 852 ft²
4 bedroom semi-detached house for sale in Southern Cross,
Wixams,
MK42 6AW, MK42 — £449,995 • 4 bed • 1 bath • 1021 ft²
3 bedroom detached house for sale in Southern Cross,
Wixams,
MK42 6AW, MK42 — £412,000 • 3 bed • 1 bath • 833 ft²
4 bedroom detached house for sale in Southern Cross,
Wixams,
MK42 6AW, MK42 — £494,000 • 4 bed • 1 bath • 976 ft²










































