Chain-free Victorian house with four doubles and easy Jubilee line access.
Four double bedrooms across multiple floors
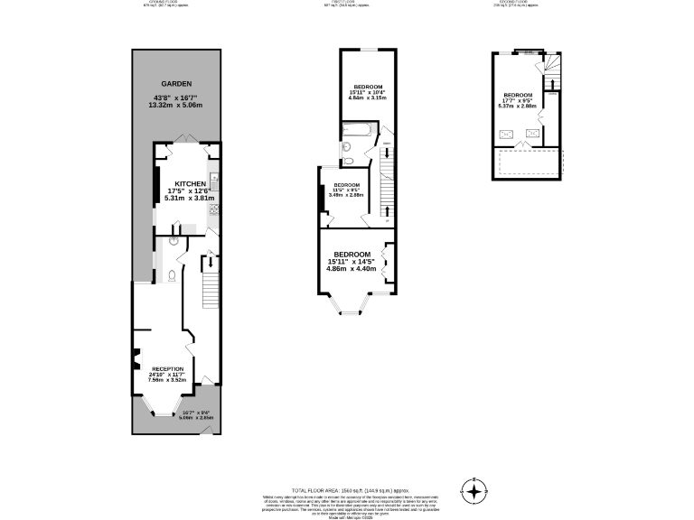
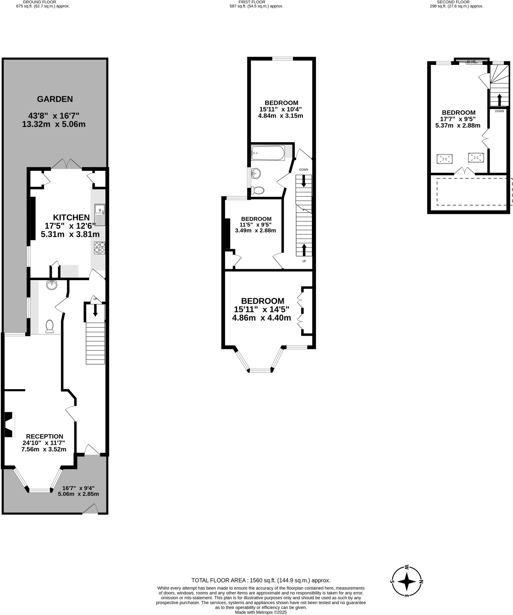
This mid-terraced Victorian home on Churchill Road offers generous family accommodation across multiple floors, with four double bedrooms and a large 1,560 sq ft footprint. The double reception room, high ceilings and period features create an inviting living space, while the extended kitchen-diner opens onto a west-facing garden that captures afternoon sun — ideal for low-maintenance al fresco use.
Location is a clear strength: the house sits on a quiet residential street in Willesden Green, within walking distance of the Jubilee line and close to Gladstone Park, local shops and good-rated primary and secondary schools. Chain free and offered as freehold, it will suit families and professionals seeking space and good transport links into central London.
Practical points are straightforward and should be checked at inspection. The property has a single bathroom serving four bedrooms, and descriptions of the garden size conflict (noted as small-to-average in one summary and long in another) so buyers should confirm dimensions. The wider area is classified as deprived and local crime is average; a survey is recommended to confirm condition and any potential for extension or conversion.
Overall this period terrace presents solid potential for occupying families or investors targeting strong local rental demand. Its combination of generous internal space, period character and transport convenience offers an attractive city-home proposition, provided viewers satisfy themselves on garden size and service/condition details.
4 bedroom terraced house for sale in Churchill Road, Willesden Green, London, NW2 — £650,000 • 4 bed • 2 bath • 1267 ft²
4 bedroom house for sale in Churchill Road, London NW2 — £899,950 • 4 bed • 2 bath • 1335 ft²
4 bedroom terraced house for sale in Churchill Road, Willesden Green, London, NW2 — £950,000 • 4 bed • 2 bath • 1560 ft²
4 bedroom terraced house for sale in Villiers Road, Willesden Green, NW2 — £950,000 • 4 bed • 2 bath • 1631 ft²
4 bedroom house for sale in Lechmere Road, Willesden Green, London, NW2 — £1,250,000 • 4 bed • 2 bath • 1768 ft²
4 bedroom terraced house for sale in Torbay Road, Brondesbury Park, NW6 — £1,599,950 • 4 bed • 2 bath • 1754 ft²














































