Spacious period living with sunny garden near Willesden Green station.
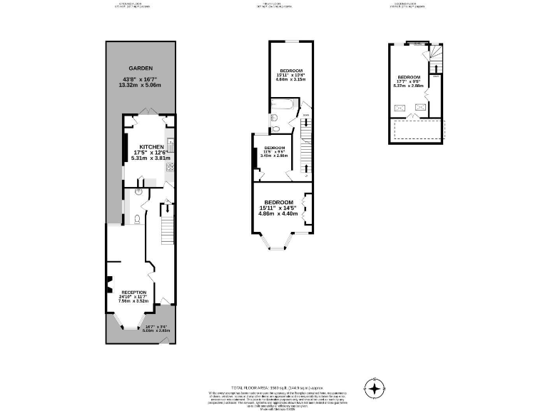
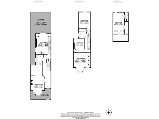
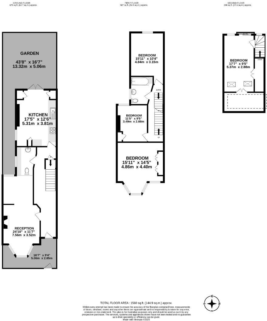
Four bedrooms and two bathrooms across about 1,560 sq ft
South-west facing rear garden for afternoon and evening sun
Victorian period features: bay windows, high ceilings, fireplaces
Chain-free freehold — ready for a straightforward purchase
Close walk to Willesden Green station, shops and Roundwood Park
Plot is narrow; gardens are small for larger outdoor needs
Area classified as deprived; local crime rated average
Fast broadband and excellent mobile signal for remote working
This four-bedroom Victorian terraced house on Churchill Road offers generous family living across approximately 1,560 sq ft. The property retains period character — bay windows, high ceilings and original detailing — combined with extended ground-floor space and a loft bedroom, providing flexible accommodation for a growing household.
The rear opens onto a south-west facing garden that brings afternoon and evening sun, ideal for outdoor play and summer gatherings, while the dual reception layout and integrated storage suit everyday family life. The house is chain-free and freehold, with fast broadband and excellent mobile signal supporting modern working and connectivity.
Location is a strong practical draw: Willesden Green amenities, independent shops and Roundwood Park are close by, and the Jubilee Line/Overground at Willesden Green provides straightforward commuting. Several primary and secondary schools rated Good are within walking distance, reinforcing the area’s family appeal.
Buyers should note the plot is narrow and the front and rear gardens are small for outdoor needs. The wider area scores as deprived and local crime is average — factors to weigh in alongside the home’s benefits. Overall, this is a spacious period family home in a well-connected inner-city setting, suitable for buyers wanting character mixed with practical room proportions.
 4 bedroom terraced house for sale in Churchill Road, London NW2 — £900,000 • 4 bed • 1 bath • 1560 ft²
 4 bedroom terraced house for sale in Churchill Road, London NW2 — £900,000 • 4 bed • 1 bath • 1560 ft² 4 bedroom terraced house for sale in Churchill Road, Willesden Green, London, NW2 — £650,000 • 4 bed • 2 bath • 1267 ft²
 4 bedroom terraced house for sale in Churchill Road, Willesden Green, London, NW2 — £650,000 • 4 bed • 2 bath • 1267 ft² 4 bedroom terraced house for sale in Villiers Road, Willesden Green, NW2 — £950,000 • 4 bed • 2 bath • 1631 ft²
 4 bedroom terraced house for sale in Villiers Road, Willesden Green, NW2 — £950,000 • 4 bed • 2 bath • 1631 ft² 4 bedroom house for sale in Lechmere Road, Willesden Green, London, NW2 — £1,250,000 • 4 bed • 2 bath • 1768 ft²
 4 bedroom house for sale in Lechmere Road, Willesden Green, London, NW2 — £1,250,000 • 4 bed • 2 bath • 1768 ft² 5 bedroom terraced house for sale in West Ella Road, London, NW10 — £800,000 • 5 bed • 3 bath • 2143 ft²
 5 bedroom terraced house for sale in West Ella Road, London, NW10 — £800,000 • 5 bed • 3 bath • 2143 ft² 4 bedroom terraced house for sale in Torbay Road, Brondesbury Park, NW6 — £1,599,950 • 4 bed • 2 bath • 1754 ft²
 4 bedroom terraced house for sale in Torbay Road, Brondesbury Park, NW6 — £1,599,950 • 4 bed • 2 bath • 1754 ft²






































































