Peaceful one-level living with communal facilities and optional care packages.
Open-plan living/dining/kitchen with vaulted ceiling and Velux windows
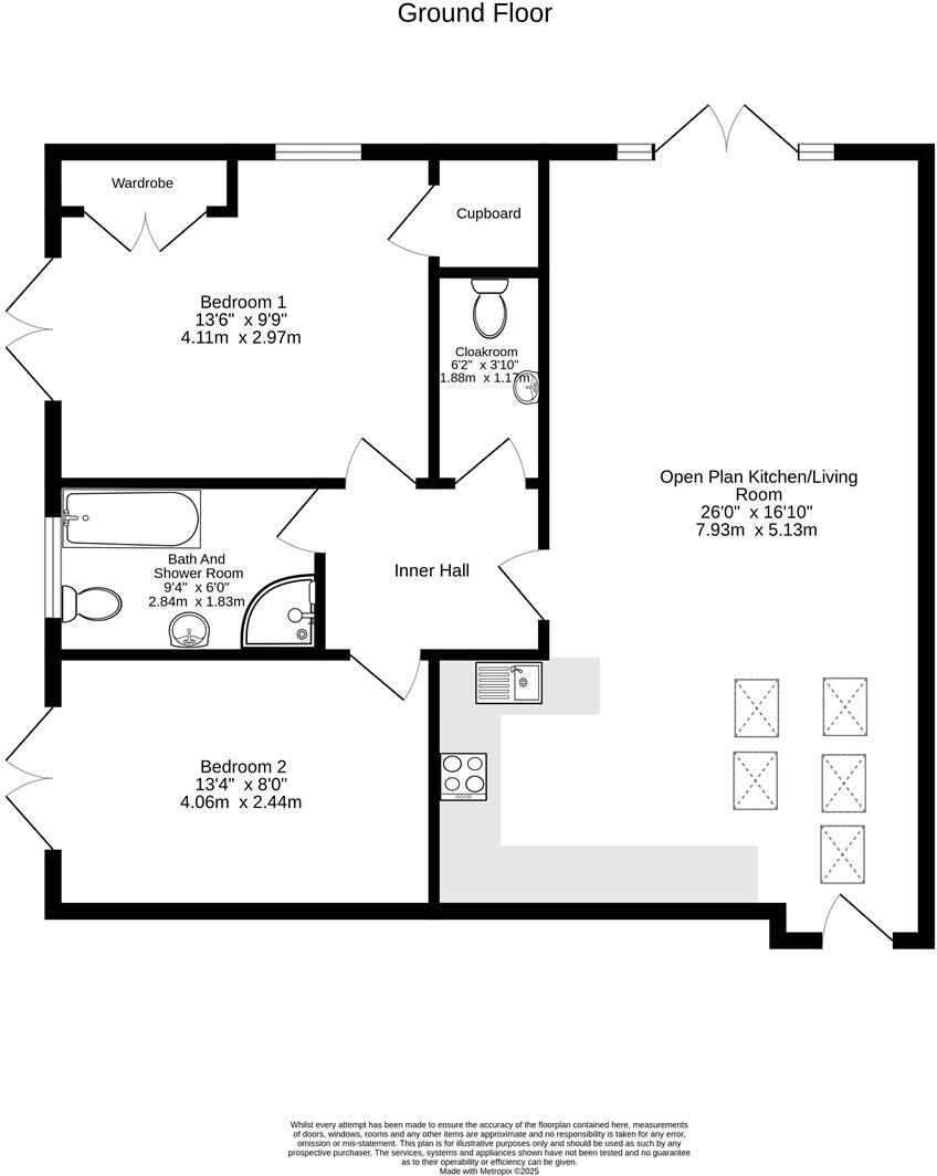
A well-appointed two-bedroom assisted-living cottage arranged on one level, set within a peaceful, courtyard-style retirement development just over a mile from Hertford. The open-plan living/dining/kitchen room is bright and airy with vaulted ceilings, Velux windows and French doors leading onto private patio areas, while the modern kitchen and underfloor heating provide comfortable, low-maintenance living day-to-day.
Residents benefit from extensive shared facilities in a converted Listed Barn and optional care and support packages from the neighbouring nursing home, giving flexibility as needs change. The cottage was built in the early 2000s to a high specification and includes argon-filled double glazing, quality shower fittings and integrated appliances.
Important practical points are stated plainly: the property is leasehold (99 years remaining) and sits within a site that has Listed status, which may complicate alterations and require approvals. The immediate area is classified as relatively deprived and has above-average crime levels, which may concern some buyers. The accommodation includes one full bathroom and a cloakroom, so couples or guests should note limited bathroom provision.
This home suits a downsizer seeking a peaceful, support-ready property close to Hertford’s amenities and rail links, with the reassurance of communal services and a low-maintenance garden. Buyers who prioritise the ability to remodel extensively should be aware of planning and conservation constraints.
2 bedroom retirement property for sale in Broad Oak Manor, Broad Oak End, Hertford, SG14 — £410,000 • 2 bed • 1 bath • 658 ft²
2 bedroom bungalow for sale in Broad Oak Manor, Hertford, SG14 — £390,000 • 2 bed • 1 bath • 607 ft²
2 bedroom retirement property for sale in 14 Broad Oak Manor, Hertford, SG14 — £400,000 • 2 bed • 2 bath • 655 ft²
2 bedroom terraced bungalow for sale in Broad Oak Lane, Hertford, SG14 — £400,000 • 2 bed • 1 bath • 655 ft²
2 bedroom bungalow for sale in Orchard Lea, High Wych Road, Sawbridgeworth, Hertfordshire, CM21 — £235,000 • 2 bed • 1 bath • 648 ft²
2 bedroom semi-detached bungalow for sale in New Hall Farm, Fanhams Hall Road, SG12 — £700,000 • 2 bed • 2 bath • 1195 ft²










































































































