**Standout Features:**
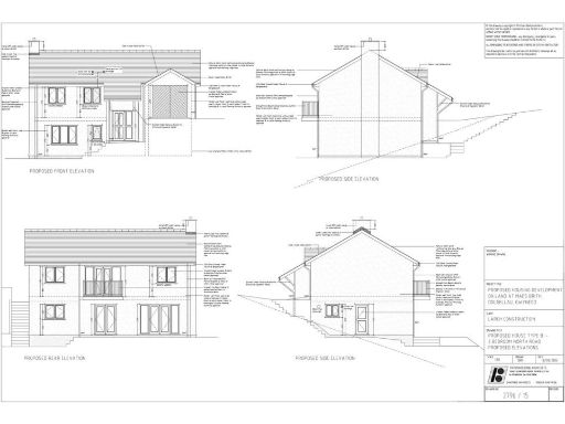
- Full planning permission granted for a 3-bedroom detached house (May 2022)
- Mains electricity, water, and drainage readily available
- Approximate plot size of 470 square meters (505 square feet)
- Distant sea views from the property
- Free from occupancy restrictions
- Located in a desirable coastal village
**Summary:**
Discover a rare opportunity to create your coastal retreat in the charming village of Talybont, nestled on the outskirts of the stunning Snowdonia National Park. This well-defined plot of land, spanning approximately 470 square meters, comes with full planning permission to build a spacious 3-bedroom detached home, ideal for families or investors seeking rental potential. Enjoy essential utilities such as mains electricity, water, and drainage, all readily available on-site, ensuring a seamless building experience.
While Talybont boasts a tranquil atmosphere with beautiful sandy beaches and verdant landscapes, it also presents community amenities like restaurants, pubs, and a railway station connecting you to nearby towns. The plot enjoys distant sea views, enhancing its appeal as a peaceful sanctuary. Take advantage of this fully permitted plot in a low-crime area—perfect for families or those seeking a serene escape. Act quickly, as opportunities like this in desirable locations are rare!
Plot for sale in Cae Gwastad, Harlech, LL46 — £95,000 • 4 bed • 2 bath • 1053 ft²
Plot for sale in Maesbrith, Dolgellau, LL40 — £60,000 • 3 bed • 2 bath • 945 ft²
Plot for sale in Maesbrith, Dolgellau, LL40 — £100,000 • 4 bed • 2 bath • 554 ft²
Plot for sale in Llwyn Du, LLwyngwril, Gwynedd, LL37 — £158,000 • 1 bed • 1 bath
Plot for sale in Plot 7 & 8, Maesbrith, Dolgellau, LL40 1LF, LL40 — £50,000 • 4 bed • 2 bath • 2077 ft²
Land for sale in Land, Ynys, Talsarnau, LL47 — £12,500 • 1 bed • 1 bath


















































