BL6 4PB - 4 bedroom detached house for sale in New Meadow, Lostock, B…

View on Property Piper

4 bedroom detached house for sale in New Meadow, Lostock, Bolton, BL6

Summary - 2 NEWMEADOW LOSTOCK BOLTON BL6 4PB

4 bed 3 bath Detached

Extended four-bedroom detached home with south-facing garden, double garage and excellent schools nearby..
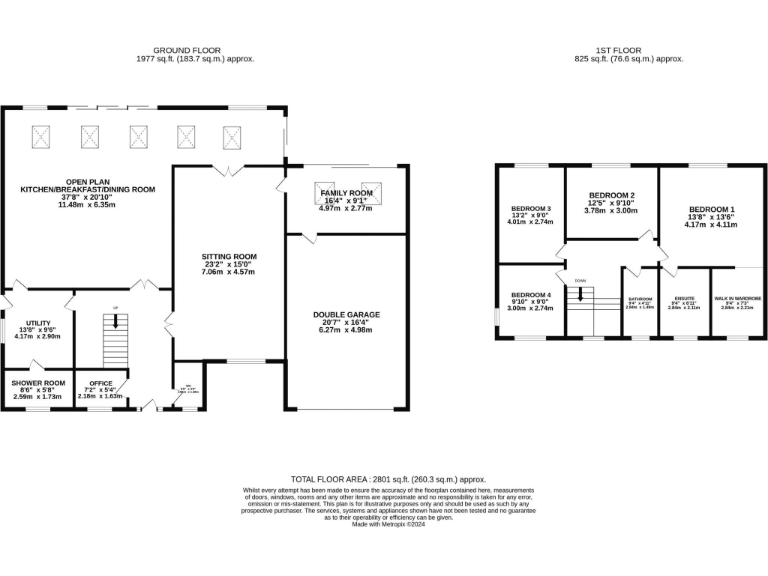
Extended four/five bedroom detached family home, approx 2,801 sq ft
This substantially extended four-bedroom detached house offers nearly 2,801 sq ft of versatile family living in a sought-after Lostock location. The current owners have fully renovated the property to a high standard, creating a large open-plan kitchen/diner/lounge with skylights and sliding doors that open onto a newly landscaped, south-facing garden. Multiple reception rooms, an additional ground-floor room (useful as a fifth bedroom or home office), and a large master bedroom with dressing room and en-suite give flexible space for family life.

The plot is a standout feature: a wide paved driveway for multiple cars, integral double garage with electric door, a further lawn across the road, and a private rear garden landscaped with upper and lower patios, power sockets, hot-tub electrics and a prepared base with electrics for a garden room. The house sits within easy reach of Lostock Train Station, top-performing primary schools and Bolton School, plus nearby sports clubs, golf courses and Middlebrook retail.

Practical points to note: the property is leasehold with a small ground rent of £50 and council tax is above average. The house was built in the 1980s and cavity walls are assumed to be uninsulated (this may be an improvement opportunity). Mobile signal is average. There is no flooding risk and local crime levels are very low.

This home will suit growing families who want move-in-ready accommodation on a generous plot in a quiet, high-calibre neighbourhood. The layout and outdoor space also make the house attractive for entertaining, home working and potential further enhancements such as a garden room or energy-efficiency upgrades.

Property Details

Image Descriptions

Floorplan Description

Rooms

Textual Property Features

Target Audience

AI Tags

Detected Visual Features

EPC Details

Nearby Schools

Nearest Bars And Restaurants

,,,,}

Nearest General Shops

,,}

Nearest Grocery shops

,,}

Nearest Supermarkets

,,}

Nearest Religious buildings

,,}

Nearest Medical buildings

,,,}

Nearest Airports

,}

Nearest Leisure Facilities

,,,,}

Nearest Tourist attractions

,,}

Nearest Train stations

,,,,}

Nearest Bus stations and stops

,,,,}

Nearest Hotels

,,}

Tags

Local Market Stats

AirBnB Data

Similar Properties

Meta

High Res Images

Compatible Images

Low res Images

Thumbnails

Raw Images

High Res Floorplan Images

Compatible Floorplan Images

Low res Floorplan Images

FloorplanImages Thumbnail

Raw Floorplan Images