CO5 0XA - 4 bedroom detached house for sale in Rosemary Crescent, Tip…

View on Property Piper

4 bedroom detached house for sale in Rosemary Crescent, Tiptree, Colchester, CO5

Summary - 17 ROSEMARY CRESCENT TIPTREE COLCHESTER CO5 0XA

4 bed 2 bath Detached

**Standout Features:**
- Spacious four-bedroom detached family home
- Modern open-plan kitchen/dining/family room with high-end Bosch and Neff appliances
- Master bedroom with ensuite and three additional well-proportioned bedrooms
- Generous double garage and large driveway for off-road parking
- Enclosed rear garden with lawn, landscaped patio, and vegetable plot
- Perfectly situated near local amenities and schools

**Potential Concerns:**
- Standard double glazing (installed prior to 2002)
- Average room sizes without notable views

**Summary:**
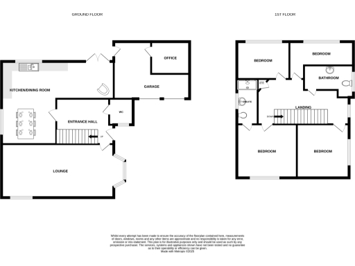
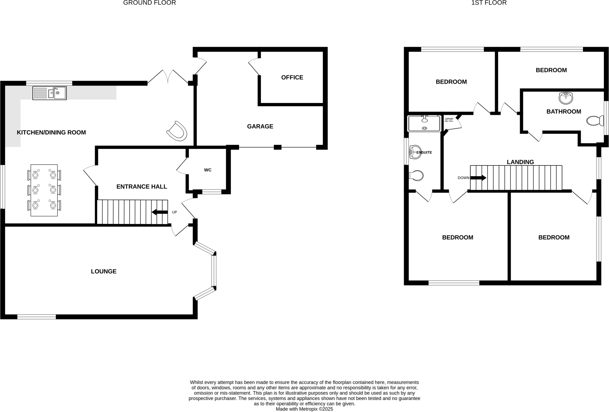
Embrace the perfect family lifestyle in this stunning four-bedroom detached house in the heart of Tiptree. Offering 1,411 sq. ft. of thoughtfully designed living space, this modern home features an expansive open-plan kitchen/dining area complete with integrated Bosch and Neff appliances. The generous lounge provides the ideal space for relaxation, while a dedicated office offers a quiet work area. The master suite boasts an ensuite, complemented by three additional bedrooms and a stylish family bathroom upstairs.

Step outside to enjoy the spacious, landscaped rear garden, ideal for both play and relaxation, while the double garage and sizable driveway provide ample parking. This property is not just a house; it's a family haven ready for you to make memories. With excellent local amenities, schools, and transport links nearby, this home combines convenience and comfort. Don’t miss out on this inviting opportunity—homes like this, in such a desirable location, are in high demand!

Property Details

Brochure Descriptions

Image Descriptions

Floorplan Description

Rooms

Textual Property Features

Detected Visual Features

EPC Details

Nearby Schools

Nearest Bars And Restaurants

,,,,}

Nearest General Shops

,,}

Nearest Grocery shops

,,}

Nearest Supermarkets

,,}

Nearest Religious buildings

,,}

Nearest Medical buildings

,,,}

Nearest Airports

}

Nearest Leisure Facilities

,,,,}

Nearest Tourist attractions

,,}

Nearest Train stations

,,,,}

Nearest Bus stations and stops

,,,,}

Nearest Hotels

,,}

Tags

Local Market Stats

Meta

High Res Images

Compatible Images

Low res Images

Thumbnails

Raw Images

High Res Floorplan Images

Compatible Floorplan Images

Low res Floorplan Images

FloorplanImages Thumbnail

Raw Floorplan Images