Spacious family home on a large plot in a peaceful cul-de-sac.
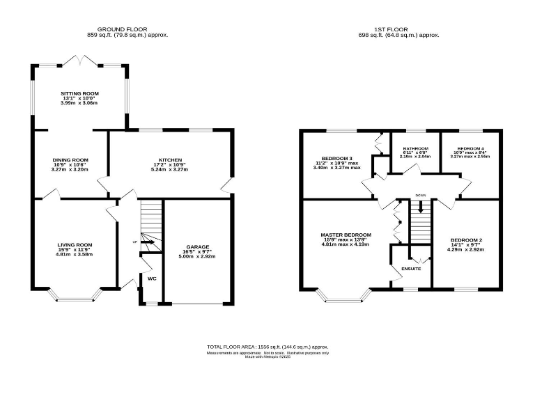
Extended four-bedroom detached home with vaulted rear sitting room
Set on a generous plot in a quiet Appleton cul-de-sac, this extended four-bedroom detached house suits family life with flexible living space. The ground floor flows from a bay-fronted lounge and dining room into a vaulted rear sitting room that brings garden light into the home. A fitted kitchen with integrated appliances and breakfast bar complements three reception rooms for day-to-day family use or formal entertaining.
Upstairs there are four bedrooms, all with fitted storage, and a master en-suite plus family bathroom. The single garage with power and water, plus a wide driveway, eases parking for multiple cars. The rear lawn and patio offer a private outdoor space for children and gardening.
Built in the 1980s and retaining period character, some internal features and decorative finishes reflect that era and may suit buyers prepared to update. The glazing is double but the installation date is unknown. Council tax is described as expensive, an important ongoing cost to note. Overall, this freehold, traditionally laid-out home offers substantial family accommodation in a very low-crime, affluent suburb with good local schools and fast broadband.
4 bedroom detached house for sale in Cambridge Gardens, Appleton, Warrington, WA4 — £750,000 • 4 bed • 2 bath • 1612 ft²
4 bedroom semi-detached house for sale in Beamish Close, Appleton, WA4 — £440,000 • 4 bed • 2 bath • 1139 ft²
4 bedroom detached house for sale in Weybridge Close, Appleton, WA4 — £585,000 • 4 bed • 2 bath • 1480 ft²
4 bedroom detached house for sale in Field Lane, Appleton, WA4 — £1,100,000 • 4 bed • 3 bath • 3215 ft²
4 bedroom detached house for sale in Wood Lane, Appleton, WA4 — £645,000 • 4 bed • 1 bath • 2603 ft²
4 bedroom detached house for sale in Foxhills Close, Appleton, Warrington, WA4 — £695,000 • 4 bed • 3 bath • 2161 ft²


































































