**Standout Features:**
- Expansive 7.60 acres of land, perfect for equestrian or agricultural use
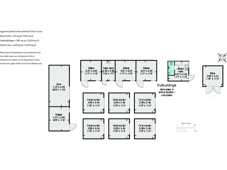
- Equipped with four stables, including a foaling box and a tack room
- All-weather manège (40x20m) with Flexiride® surface and drainage
- Environmentally friendly with solar-powered lighting throughout
- Includes secure fencing, water troughs, and ample parking
- Peaceful location within walking distance of village amenities
- Access to major motorway networks
**Potential Concerns:**
- Broadband speeds are slow in the area
- A public footpath runs along the boundary of the land
**Summary:**
Hornbeam Paddocks is a remarkable equestrian smallholding set against a backdrop of serene countryside, offering potential buyers 7.6 acres of beautifully maintained land within a peaceful village setting. Perfect for horse lovers or those seeking a rural lifestyle, this property features four stables, an all-weather manège, and essential outbuildings, all designed for functionality and ease of access. The private setting, with outdoor solar lighting and self-filling water troughs for paddocks, enhances the outdoor experience while providing practical amenities for livestock care.
Enjoy the tranquility of rural life while still being close to essential local conveniences, including a primary school and local shops, as well as access to larger towns like Warwick and Stratford-upon-Avon. Although internet connectivity is below average, the opportunity for future development and expansion in such an affluent area adds significant value and potential. This property embodies both seclusion and community spirit—don't miss your chance to own a slice of countryside paradise!
Land for sale in Land at Whatcote, Idlicote Road, Shipston-on-Stour, CV36 5DY, CV36 — £120,000 • 1 bed • 1 bath
5 bedroom barn conversion for sale in Mousley End, Hatton, Warwickshire, CV35 — £1,100,000 • 5 bed • 4 bath • 4770 ft²
6 bedroom country house for sale in Preston Fields Lane, Preston Bagot, Warwickshire, B95 — £4,000,000 • 6 bed • 5 bath • 9281 ft²
4 bedroom character property for sale in Ansley Common, Nuneaton, CV10 — £825,000 • 4 bed • 2 bath • 2500 ft²
Land for sale in LOT B, Back Lane, Lowsonford, Nr. Shrewley, CV35 — £50,000 • 1 bed • 1 bath • 1176 ft²
7 bedroom detached house for sale in Kings Lane, Stratford-upon-Avon, CV37 — £2,850,000 • 7 bed • 5 bath • 5200 ft²














































































































































































