Large south-facing garden, excellent parking and close to Addenbrooke’s campus.
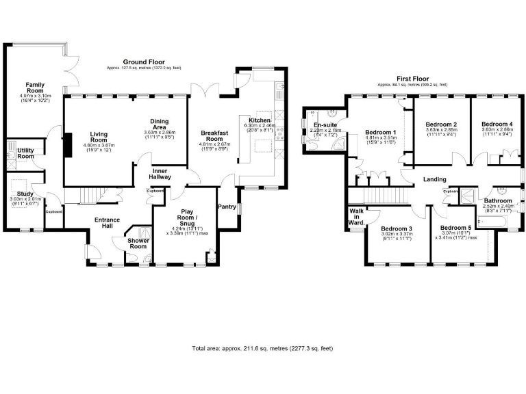
Five double bedrooms and three bathrooms, almost 2,280 sq ft total
A substantial 1930s detached house extended in recent years, this five-bedroom home offers flexible accommodation across almost 2,280 sq ft on a generous c.0.2 acre plot. Wide, gated frontage and a gravel driveway provide parking for several vehicles, while a broad, south-facing rear garden with mature trees delivers privacy and afternoon sun — an ideal outdoor space for children and entertaining.
Internally the layout suits family life: multiple reception rooms, an impressive open-plan kitchen/dining/breakfast room with island and vaulted exposed brick/timber ceiling, a principal suite with en-suite bathroom, and useful utility and study spaces. Practical features include gas central heating to radiators, largely double-glazed Met Therm metal windows replaced in 2012/2013, French doors fitted in 2021, and a fully boarded loft.
Buyers should note a few material points: the EPC rating is D (68) and the property sits in Council Tax Band G — both factors that affect running costs. The area records higher local crime statistics compared with city averages, and while the house has been extended, parts of the interior would benefit from updating to contemporary standards in places. There is good potential to reconfigure or modernise to increase energy efficiency and resale value.
Location is a clear strength for families and professionals: walking distance to Addenbrooke’s and the Biomedical Campus, close to mainline rail links and a wide choice of well-regarded state and independent schools. The combination of size, plot and proximity to major employment and transport hubs makes the property particularly well-suited to families needing space and convenient commuting.
5 bedroom detached house for sale in Beaumont Road, Cambridge, CB1 — £1,250,000 • 5 bed • 4 bath • 2465 ft²
5 bedroom detached house for sale in Queen Ediths Way, Cambridge, CB1 — £1,400,000 • 5 bed • 3 bath • 3275 ft²
5 bedroom detached house for sale in Queen Edith's Way, Cambridge, CB1 — £1,850,000 • 5 bed • 2 bath • 2225 ft²
5 bedroom semi-detached house for sale in Mowbray Road, Cambridge, CB1 — £850,000 • 5 bed • 3 bath • 1960 ft²
6 bedroom semi-detached house for sale in Hills Avenue, Cambridge, CB1 — £1,300,000 • 6 bed • 3 bath • 2308 ft²
4 bedroom detached house for sale in Hinton Avenue, Cambridge, CB1 — £1,250,000 • 4 bed • 2 bath • 1894 ft²






































































































