Bright extended home close to top schools and fast central connections.
Recently refurbished and extended to provide bright open-plan living
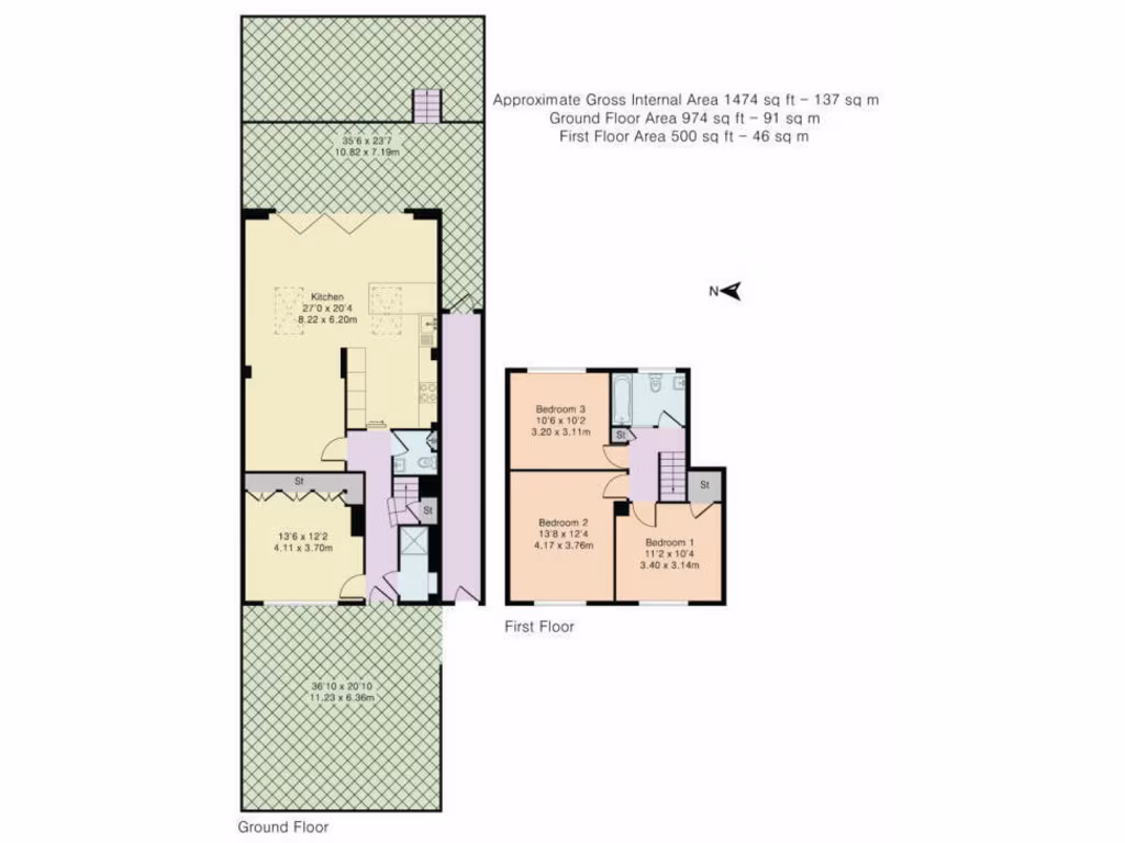
Approximately 1,474 sq ft across multiple storeys with four double bedrooms
Large kitchen/diner with skylight and bi-fold doors to decent rear garden
Underfloor heating on the ground floor and modern fitted kitchen
Off-street parking provided; good broadband and mobile signal
Chain free sale but currently tenanted until October 2025 (no immediate vacant possession)
Opportunity to extend into the loft subject to planning permission (STPP)
Cavity walls assumed uninsulated; local crime rate above average
This recently refurbished and extended mid-terrace house offers generous living space across approximately 1,474 sq ft. The ground floor features a large open-plan kitchen/diner with skylight and bi-fold doors leading to a decent rear garden, plus a convenient ground-floor shower room and separate WC. Underfloor heating on the ground floor and contemporary finishes mean the property is move-in ready for many buyers.
Designed with family life and commuting in mind, the layout includes four double bedrooms and a modern first-floor bathroom. There is off-street parking to the front and good broadband and mobile signal, while Alexandra Park and Muswell Hill Broadway are a short bus ride away for shops and cafes. The house sits in catchment for several well-regarded schools, including two rated Outstanding.
Practical considerations: the property is offered chain free but is currently tenanted with the tenancy ending October 2025, so immediate vacant possession is not guaranteed. The building dates from the 1930s–1940s and cavity walls are assumed to have no added insulation; loft extension potential exists subject to planning (STPP).
Location strengths are tempered by higher-than-average local crime and a broader area classification indicating pockets of deprivation. For buyers seeking future value, there’s scope to add a loft conversion (STPP) and further personalise the interior; investors should note the existing tenancy term and rental potential.
4 bedroom terraced house for sale in George Crescent, Muswell Hill, N10 — £775,000 • 4 bed • 1 bath • 1474 ft²
4 bedroom terraced house for sale in Osier Crescent, Muswell Hill, London, N10 — £1,000,000 • 4 bed • 2 bath • 1237 ft²
3 bedroom terraced house for sale in St. Regis Close, London, N10 — £850,000 • 3 bed • 2 bath • 864 ft²
5 bedroom terraced house for sale in Rosebery Road, London, N10 — £2,975,000 • 5 bed • 3 bath • 3348 ft²
3 bedroom semi-detached house for sale in Muswell Hill Place, London, N10 — £1,375,000 • 3 bed • 2 bath • 1556 ft²
5 bedroom end of terrace house for sale in Donovan Avenue, London, N10 — £2,750,000 • 5 bed • 4 bath • 3900 ft²










































































