Large plot, private garden and flexible living ideal for growing families.
Detached, deceptively large bungalow with dormer first floor
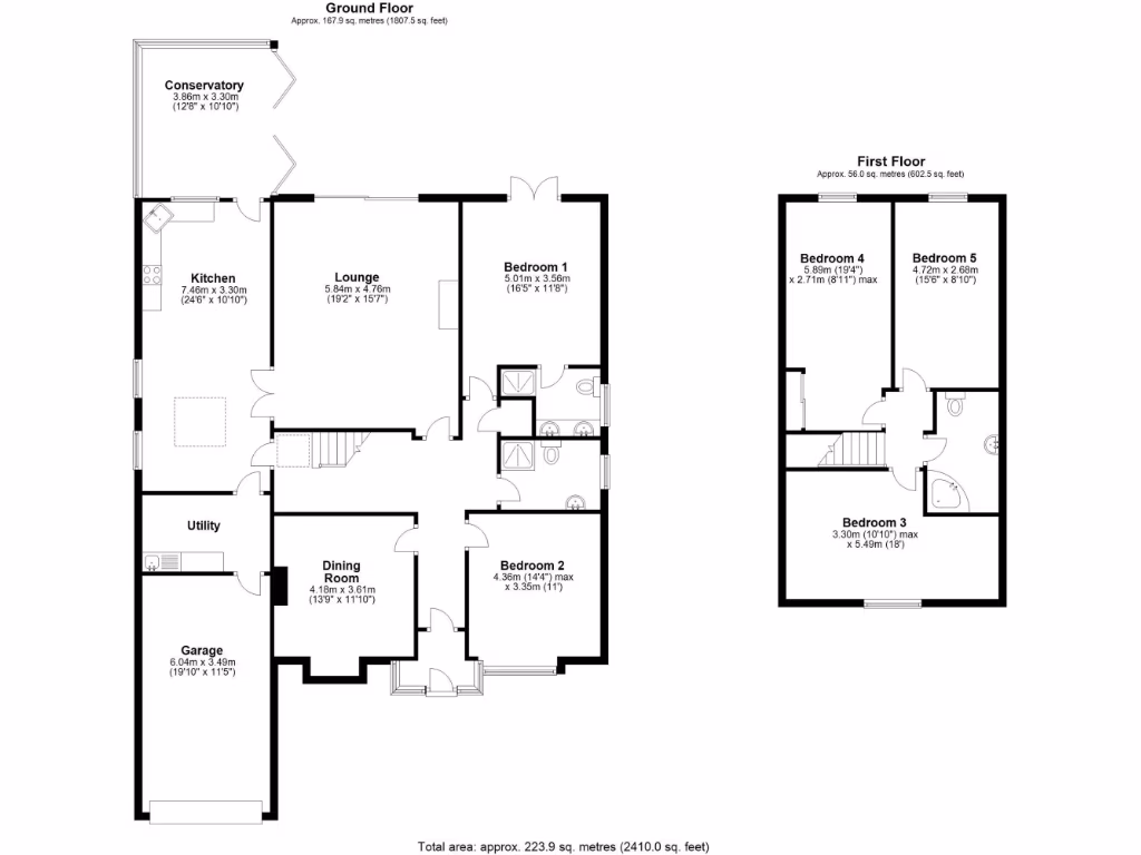
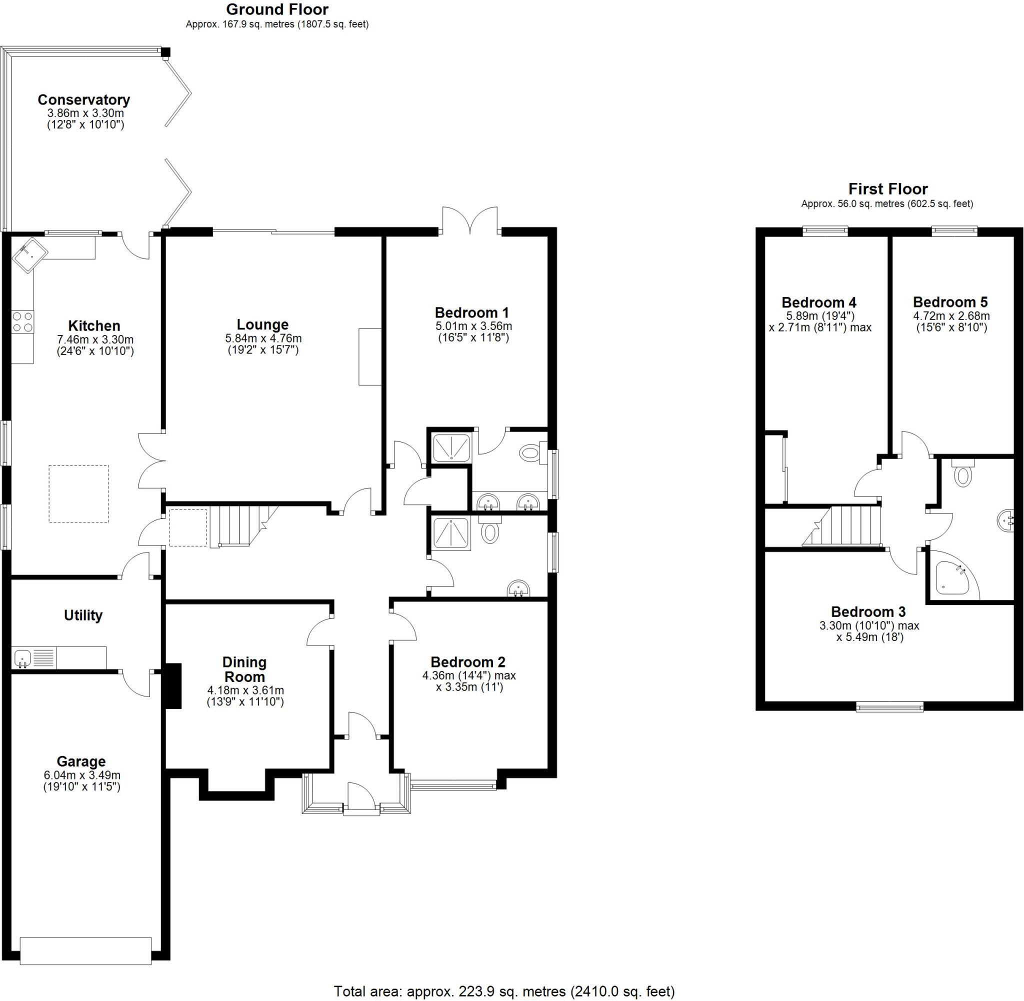
Set on a generous plot in Tanworth‑in‑Arden, this detached bungalow offers deceptively large accommodation across ground and dormer levels. The layout includes a very large living room, a spacious kitchen/diner with island, a contemporary conservatory and flexible reception rooms that suit family life or multi‑generational use. The private rear garden backs onto mature woodland and regularly attracts local wildlife, providing a peaceful, semi‑rural backdrop.
Practical benefits include a wide driveway with substantial off‑street parking and an attached double garage. Four to six bedrooms (arranged as 5/6 in sales details) and three bathrooms create adaptable sleeping arrangements — the ground floor master with en‑suite allows single‑level living if required.
Buyers should note the property dates from the late 1960s/early 1970s and cavity walls are recorded as having no insulation (assumed), so energy performance may benefit from targeted upgrades. Council Tax sits at the higher Band F and the vendor has not tested electrical, heating or sanitary appliances; purchasers should arrange their own inspections and servicing.
In short, this is a spacious, well‑situated family home with strong indoor/outdoor flow, good parking and scope for modernising energy efficiency and some internal finishes to match personal taste.
3 bedroom bungalow for sale in Grimpits Lane, Birmingham, Worcestershire, B38 — £575,000 • 3 bed • 3 bath • 1848 ft²
3 bedroom detached bungalow for sale in Brook End Drive, Henley-In-Arden, B95 — £550,000 • 3 bed • 1 bath • 1638 ft²
4 bedroom detached house for sale in Southfield, Middletown Lane, Sambourne, B96 — £660,000 • 4 bed • 3 bath • 2455 ft²
4 bedroom detached house for sale in Earlswood Common, Earlswood, Solihull, Warwickshire, B94 — £850,000 • 4 bed • 2 bath • 3352 ft²
4 bedroom detached bungalow for sale in Aldridge Road, Little Aston, B74 3BQ, B74 — £725,000 • 4 bed • 3 bath • 2143 ft²
3 bedroom detached house for sale in Broad Lane, Tanworth-In-Arden, Solihull, B94 — £800,000 • 3 bed • 2 bath • 2460 ft²






























































