Characterful mixed‑use freehold with river views and rooftop development potential.
Freehold Victorian building with ornate arched windows and original features
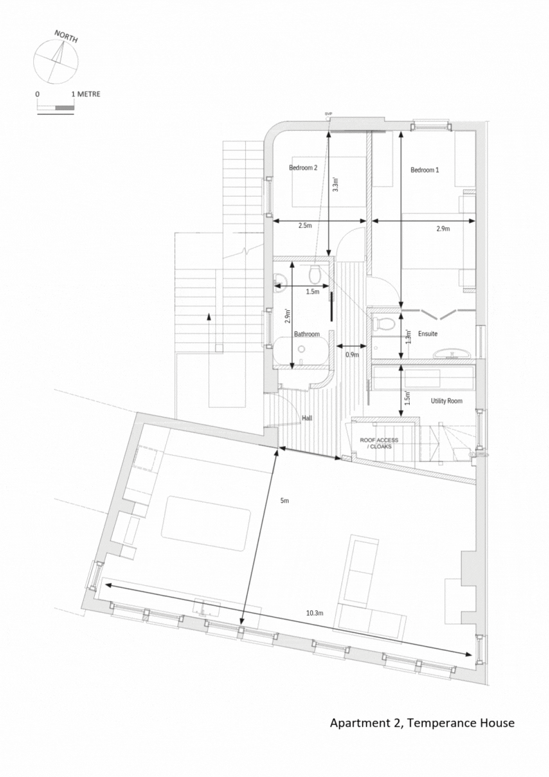
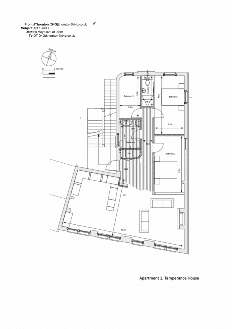
Temperance House is a substantial, characterful freehold investment in the heart of Burnham-on-Crouch, combining five income-generating units across a Victorian four-storey building. The property benefits from strong visual appeal – arched sash windows, decorative terracotta tiles and original coach-house gates leading to a central courtyard – and outstanding panoramic views over the River Crouch. Two larger residential apartments occupy the upper floors, including a second-floor apartment with a private roof terrace and underfloor heating.
Current income is supported by a long-standing ground-floor coffee shop lease (producing £14,400pa until 2030) and a mix of offices and lettable studios. Several courtyard offices are already let on short initial terms with potential to convert the third unit to add further rental income once works complete. Apartment 1 and Apartment 2 are well presented and produce or could produce significant rental returns (c. £18,600pa and c. £27,000pa estimated respectively).
Approved planning (application 22/00035/FUL) permits a rooftop belvedere addition to the existing second-floor apartment, offering immediate scope to enhance value and rental premium. The building’s Victorian fabric and high ceilings are strong selling points, but purchasers should budget for ongoing maintenance typical of a 19th-century structure and coordinated management across mixed uses.
Note the property is company-owned and currently configured with a variety of tenancies and short-term agreements in the courtyard; prospective buyers should review leases, service arrangements and any conversion consents carefully. Some units are finished to a high standard, while others require completion works and formal change-of-use approvals for holiday rentals where intended.
High street retail property for sale in Temperance House, 22 High Street, Burnham-On-Crouch, Essex, CM0 — £1,300,000 • 1 bed • 1 bath • 6231 ft²
Mixed use property for sale in 40 High Street, Burnham-on-crouch, Essex, CM0 — £300,000 • 1 bed • 1 bath • 2904 ft²
5 bedroom house for sale in High Street, Burnham-On-Crouch, CM0 — £600,000 • 5 bed • 1 bath
1 bedroom terraced house for sale in Station Road, Burnham-On-Crouch, CM0 — £225,000 • 1 bed • 1 bath • 689 ft²
4 bedroom cottage for sale in High Street, Burnham-On-Crouch, CM0 — £500,000 • 4 bed • 2 bath • 3500 ft²
Commercial property for sale in High Street, Burnham-On-Crouch, CM0 — £325,000 • 4 bed • 2 bath • 3500 ft²


























































































