Contemporary three-storey house with balcony views and garage close to the city.
Immaculate four-bedroom modern semi-detached townhouse
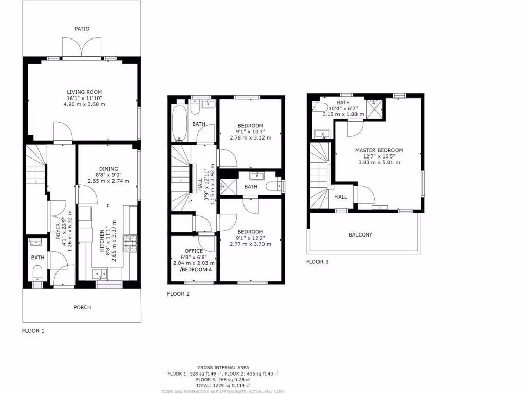
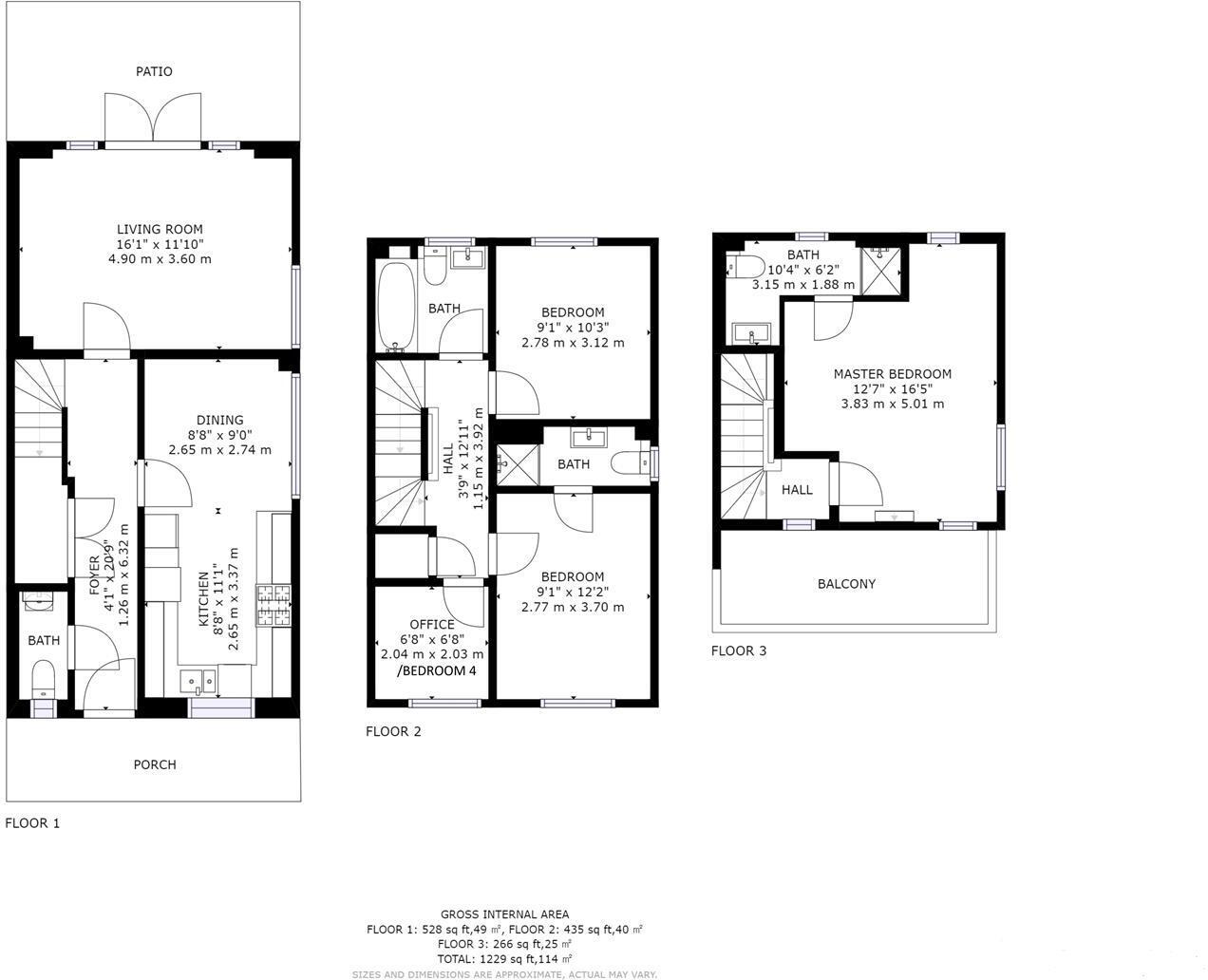
This modern four-bedroom semi-detached townhouse is arranged over three floors and finished to a contemporary standard, making it well suited to families or professionals seeking city access with suburban calm. The principal bedroom and a second bedroom both have en-suite bathrooms, and the top-floor balcony delivers elevated, far-reaching views. Practical features include a downstairs WC, driveway parking and a detached garage.
Internally the layout is efficient: a bright reception room with garden access, a kitchen-diner with integrated appliances and family-sized living spaces across an average-sized 1,229 sq ft footprint. The rear lawned garden is modest but low-maintenance; overall the property presents as a move-in ready modern home from a recent development.
Important practical points: the home is leasehold with about 240 years remaining and a small ground rent of £150. Broadband speeds in the area are reported as slow. The property sits in an area described as having high levels of deprivation despite very low local crime—an important context for buyers to consider alongside the excellent mobile signal and straightforward access to Manchester city centre.
Local amenities and schooling are close by, with several ‘Good’ rated primary and secondary schools within reach and nearby green space for families. This house will appeal to buyers wanting modern, low-maintenance accommodation with strong transport links to the city, while those prioritising fastest home internet or a large garden should be aware of the limitations.
4 bedroom semi-detached house for sale in Travers Street, Salford, M7 — £290,000 • 4 bed • 2 bath • 1087 ft²
4 bedroom detached house for sale in Harrison Street, Salford, M7 — £425,000 • 4 bed • 2 bath • 882 ft²
4 bedroom semi-detached house for sale in Saddlecote Close, Manchester, M8 — £300,000 • 4 bed • 2 bath • 1184 ft²
4 bedroom terraced house for sale in Barsham Close, Manchester, M8 — £340,000 • 4 bed • 2 bath • 1130 ft²
3 bedroom semi-detached house for sale in Alban Street, Salford, Greater Manchester, M7 — £300,000 • 3 bed • 2 bath • 1166 ft²
4 bedroom semi-detached house for sale in Oriel Gardens, Salford, M7 — £345,000 • 4 bed • 4 bath • 1302 ft²














































































































