**Standout Features:**
- Vacant possession available for immediate use or rental
- Estimated rental value (ERV): £10,000 p.a.
- Gross investment yield (GIY): 7.14%
- Ground floor retail unit suitable for a variety of uses (Class E)
- Excellent transport links adjacent to Purley Oaks Station
- Off-street parking nearby
- Low crime rate and affluent area
**Summary:**
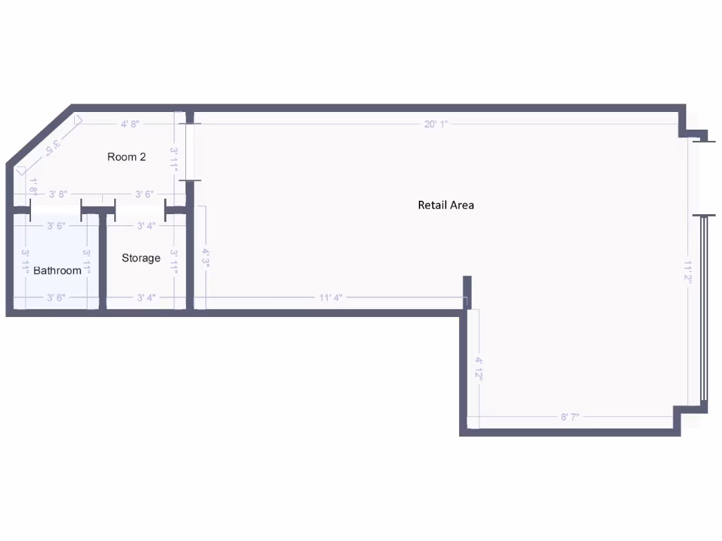
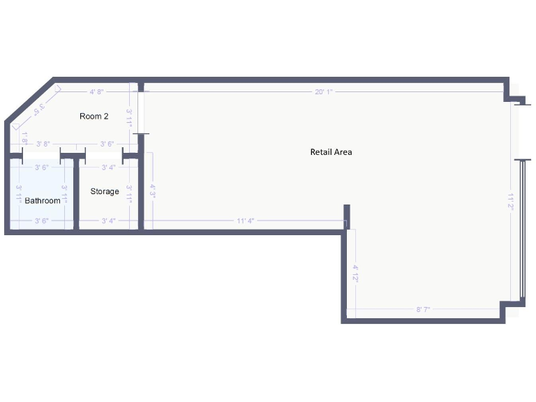
This ground floor retail unit located at 5 Station Approach presents an incredible investment opportunity in South Croydon, sitting right opposite Purley Oaks Station. With an estimated rental value of £10,000 per annum and a notable 7.14% yield, this property is poised for success. The unit, measuring 27 sq m (290 sq ft), offers an open plan retail space with storage and WC facilities, making it highly adaptable for various business needs.
Conveniently situated within a vibrant area filled with cafés, convenience stores, and restaurants, this location attracts foot traffic and provides strong community links. It also boasts excellent transport connections to central London, a major draw for commuters. While currently vacant, the property offers great potential for immediate occupancy or re-leasing, catering to first-time buyers or experienced investors looking to diversify their portfolio.
Though the plot size is modest—typical for high street retail—the potential for diverse usage and strong local amenities sets this opportunity apart. Don't miss the chance to make your mark in this thriving urban environment, where each day holds potential for growth and prosperity.
Commercial property for sale in Station Approach, Purley Oaks Road, South Croydon, CR2 — £140,000 • 1 bed • 1 bath • 1432 ft²
Commercial property for sale in Station Approach, Purley Oaks Road, South Croydon, CR2 — £150,000 • 1 bed • 1 bath • 407 ft²
Takeaway for sale in 4 Station Approach, Purley Oaks Road, South Croydon, London, CR2 — £150,000 • 1 bed • 1 bath • 430 ft²
High street retail property for sale in Calley Down Crescent, New Addington, Croydon, Surrey, CR0 — £350,000 • 1 bed • 1 bath • 3809 ft²
Commercial development for sale in Whitehorse Road, Croydon, CR0 — £170,000 • 1 bed • 1 bath • 1201 ft²
Commercial property for sale in Waddon Road, Croydon, CR0 — £148,000 • 1 bed • 1 bath • 388 ft²


























