Energy‑efficient starter home near village amenities and countryside walks.
Brand new two-bedroom end-of-terrace, timber-frame construction
Owned solar panels reducing electricity costs
Air source heat pump with underfloor heating downstairs
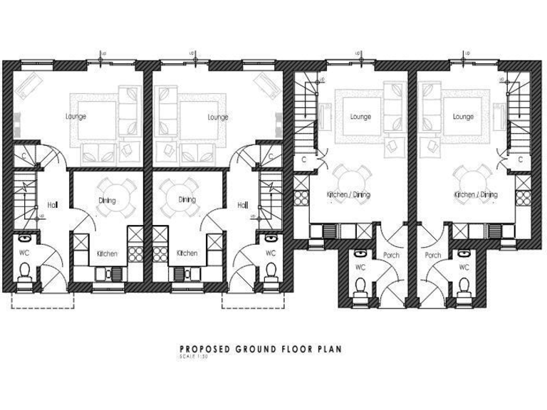
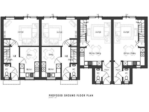
Open-plan kitchen/living/dining with sliding doors to courtyard
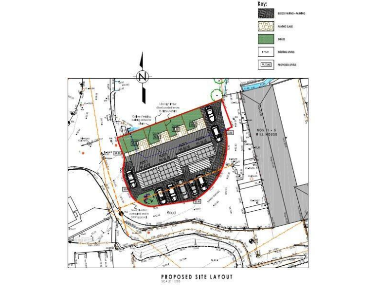
Off-street parking alongside the property
Small rear garden / courtyard and modest plot size
Slow broadband speeds in the area
Council tax band to be advised
This brand-new two-bedroom end-of-terrace house offers a compact, energy-efficient starter home at the edge of St Stephen. The timber-frame build is well insulated, fitted with owned solar panels and an air source heat pump with underfloor heating downstairs, keeping running costs low and comfort high. The open-plan kitchen/living/dining room opens via sliding doors to a sunny enclosed courtyard, ideal for easy maintenance outdoor space and indoor-outdoor living.
Practical buyers will appreciate off-street parking and a location that combines village convenience with immediate access to countryside walks. Room sizes suit first-time buyers or those downsizing; the property is finished in contemporary fittings and uPVC double glazing for low upkeep. St Stephen village provides good local amenities, primary and secondary schools rated Good or Outstanding, and straightforward links to St Austell and the A30.
Be aware of a few limitations: the plot and rear courtyard are small, broadband speeds in the area are slow, and the council tax band is yet to be advised. As a new build, the home should require minimal immediate maintenance, but buyers should confirm all building regulation and service connections and check warranties and guarantees on the build and installed systems.
2 bedroom terraced house for sale in Terras Road, St. Stephen NEW HOME, PL26 — £235,000 • 2 bed • 1 bath • 751 ft²
3 bedroom end of terrace house for sale in Terras Road, St. Stephen NEW HOME, PL26 — £295,000 • 3 bed • 1 bath • 937 ft²
2 bedroom end of terrace house for sale in Terras Road, St. Stephen, St. Austell, Cornwall, PL26 — £255,000 • 2 bed • 1 bath
3 bedroom terraced house for sale in Terras Road, St. Stephen NEW HOME, PL26 — £285,000 • 3 bed • 1 bath • 657 ft²
2 bedroom terraced house for sale in Terras Road, St. Stephen, St. Austell, Cornwall, PL26 — £235,000 • 2 bed • 1 bath
3 bedroom end of terrace house for sale in Terras Road, St. Stephen, St. Austell, Cornwall, PL26 — £295,000 • 3 bed • 1 bath


























































































































