Brand-new three-bedroom home with solar panels, underfloor heating and courtyard garden.
3 bedrooms plus family bathroom; one smaller third bedroom
Owned solar panels and air-source heat pump with underfloor heating downstairs
Enclosed landscaped courtyard garden; small plot, not a large lawn
Off-street parking to front/side; secure fenced garden
Walkable to St Stephen village amenities and countryside walks
New build timber-frame with good insulation and UPVC double glazing
Slow local broadband speeds may affect home working
Freehold; council tax band to be advised
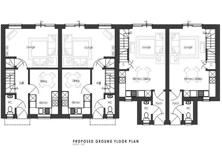
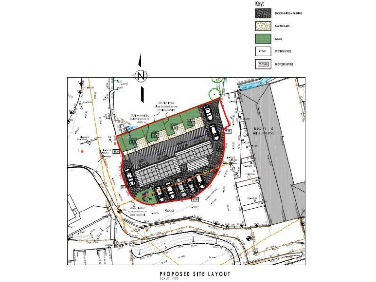
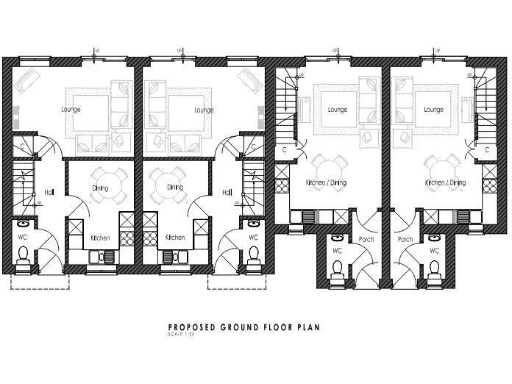
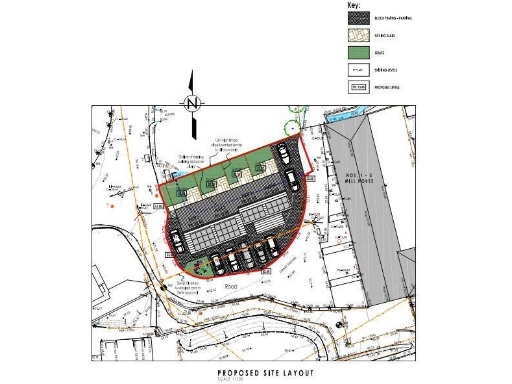
A brand-new three-bedroom end-of-terrace on the edge of St Stephen, this home suits families or first-time buyers seeking low-maintenance, energy-efficient living. The interior is contemporary with a generous living/dining room, a practical kitchen, and sliding doors that open to an enclosed, landscaped courtyard — ideal for children or a small garden. Owned solar panels and an air-source heat pump with underfloor heating downstairs cut running costs and add modern comfort.
The property sits in a quiet clustered development within easy walking distance of village amenities, a well-regarded primary academy and countryside footpaths. Off-street parking and a secure, fenced garden add practical convenience. Room sizes are average for the build: two generous bedrooms, a smaller third bedroom and a single family bathroom upstairs, suitable for a small family or home office use.
Buyers should note the plot is small and the garden is a courtyard rather than a large rear lawn. Broadband speed in the area is reported slow, which may affect home working without an alternative solution. As a newly built home, fixtures are modern but council tax banding and some services may still be being finalised. Overall this is a compact, energy-efficient home offering low running costs and countryside access close to village facilities.
3 bedroom terraced house for sale in Terras Road, St. Stephen NEW HOME, PL26 — £285,000 • 3 bed • 1 bath • 657 ft²
2 bedroom end of terrace house for sale in Terras Road, St. Stephen NEW HOME, PL26 — £255,000 • 2 bed • 1 bath • 751 ft²
2 bedroom terraced house for sale in Terras Road, St. Stephen NEW HOME, PL26 — £225,000 • 2 bed • 1 bath • 751 ft²
4 bedroom property for sale in Coombe Road, High Street, PL26 — £550,000 • 4 bed • 2 bath • 2554 ft²
3 bedroom detached house for sale in Creakavose, St. Stephen, St. Austell, Cornwall, PL26 — £275,000 • 3 bed • 1 bath • 902 ft²
3 bedroom end of terrace house for sale in Church Road, Shortlanesend, Truro, Cornwall, TR4 — £280,000 • 3 bed • 1 bath • 822 ft²






























































































































