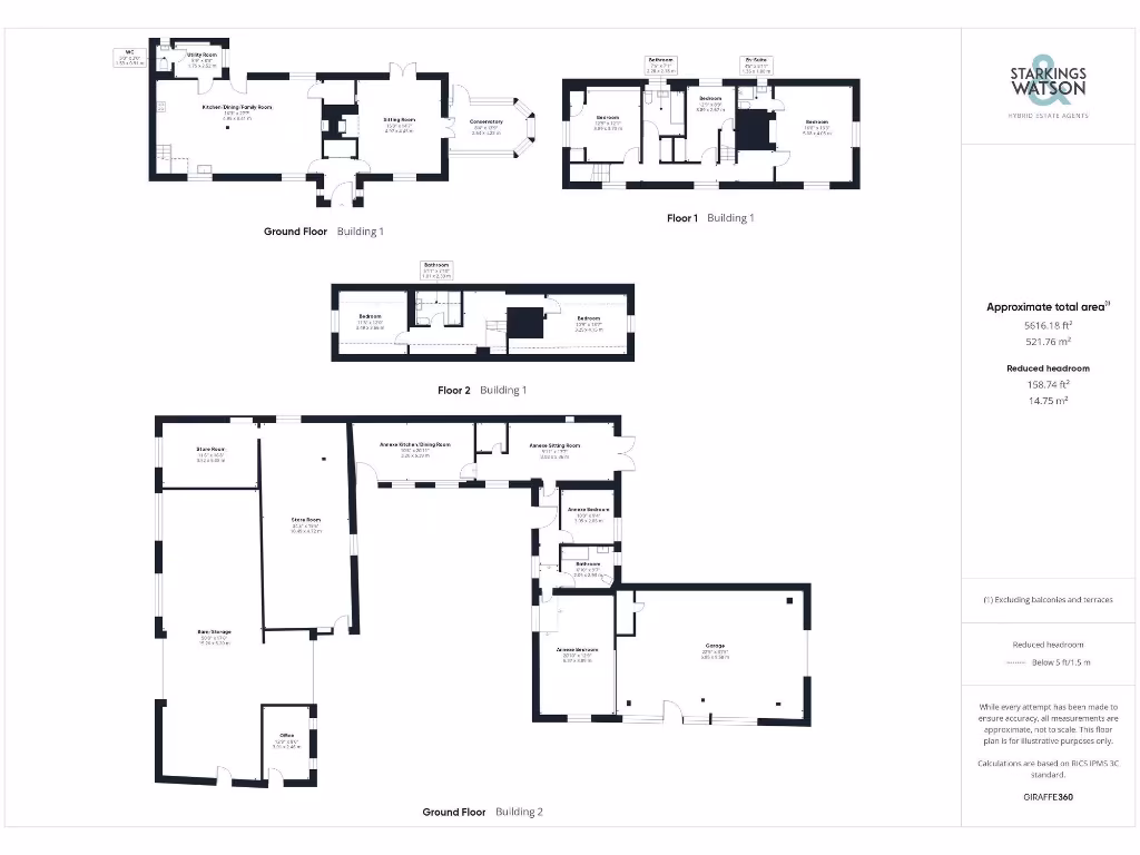
Spacious multi‑building plot with barn conversion and business potential.
Fully renovated 17th‑century farmhouse with period features retained
A fully renovated 17th‑century farmhouse set in a semi‑rural hamlet, offering adaptable living across almost 0.8 acres (stms). The main house combines original character — exposed timbers, inglenook fireplaces and wood floors — with recent upgrades including new roof, windows, insulation, wiring and plumbing. Two principal receptions and an open‑plan kitchen create a sociable family hub while five bedrooms over two upper floors suit multigenerational living.
The courtyard arrangement includes a large unconverted double‑height storage barn and an adjoining office with existing business use permission, giving genuine scope for home enterprise or studio conversion (stp). A separate single‑storey barn has retrospective planning for use as an annexe and currently provides over 1,000 sqft of potential holiday‑let or ancillary accommodation once building regulations and works are completed.
Buyers should note the annexe suffered surface water flooding in 2020; new drainage has been installed opposite to reduce recurrence but the annexe requires repair and re‑instatement to be habitable. Drainage for the property is private, broadband speeds are slow and council tax is high. Overall, the estate suits buyers seeking period character with modern comforts, plenty of outbuilding potential and flexible use for business, holiday rental or extended family living.
5 bedroom detached house for sale in Palgrave, Diss, IP22 — £775,000 • 5 bed • 4 bath • 3394 ft²
5 bedroom detached house for sale in St. Nicholas South Elmham, Harleston, Suffolk, IP20 — £775,000 • 5 bed • 4 bath • 2683 ft²
5 bedroom detached house for sale in St Margarets South Elmham, Near Bungay, Suffolk, IP20 — £895,000 • 5 bed • 3 bath • 4643 ft²
8 bedroom country house for sale in Laxfield, Nr Framlingham, Suffolk, IP13 — £1,350,000 • 8 bed • 2 bath • 5034 ft²
Detached house for sale in Cookley, Halesworth, Suffolk, IP19 — £2,100,000 • 1 bed • 1 bath • 2999 ft²
5 bedroom detached house for sale in The Street, Tibenham, Norwich, NR16 — £1,100,000 • 5 bed • 3 bath • 3729 ft²






























































































































































































































































