Grand family home on c.4 acres with outbuildings and extensive entertaining spaces.
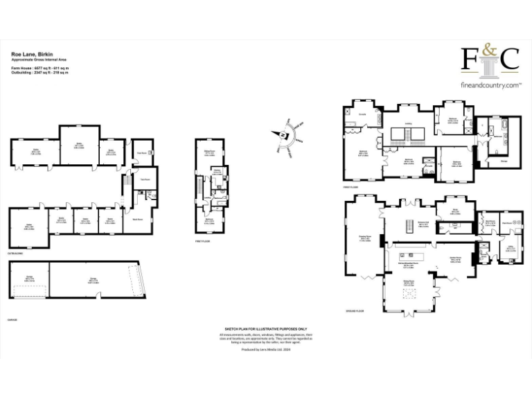
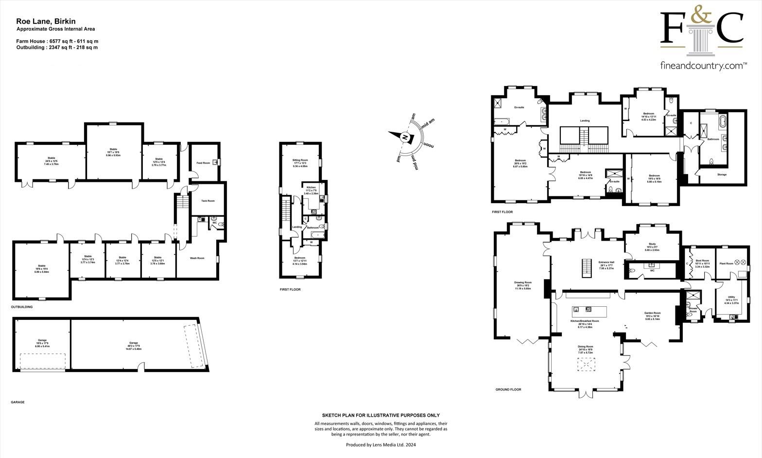
Approx 6,577 sq ft of versatile living space
Home Farmhouse is a substantial contemporary-Georgian country house arranged over two floors with almost 6,600 sq ft of living space and about 4 acres of grounds. The house combines classical proportions—full-height timber sash windows, cornicing, panelled doors and grand fireplaces—with modern comforts including underfloor heating in selected zones, a bespoke Miele kitchen and a Stovax wood-burning stove. Extensive outbuildings and stables create scope for ancillary accommodation or small equestrian/horserelated enterprise.
The internal layout suits a large or multi-generational family: a dramatic reception hall with a split staircase leads to a 36 ft drawing room and a nearly 50 ft open-plan family wing with garden room, dining area and kitchen, all opening onto south- and west-facing terraces. Upstairs the principal suite spans the width of the house and there are three further en-suite bedrooms plus a large bedroom and family bathroom, each finished with bespoke wardrobes and high-spec sanitaryware.
Practical points to note: the property is served by an oil-fired boiler and radiators, council tax is described as quite expensive, and broadband and mobile signals are average in this rural location. Flooding risk is low and crime is low, but the setting is an isolated hamlet which suits buyers seeking privacy rather than town-centre convenience. Overall, this is a high-spec family country house ready for immediate occupation with significant ancillary and development potential.
6 bedroom detached house for sale in Norwith Hill, Newington, Nr Bawtry, DN10 — £1,000,000 • 6 bed • 5 bath • 4087 ft²
5 bedroom detached house for sale in Aberford Road, Leeds, LS15 — £2,000,000 • 5 bed • 5 bath • 6805 ft²
4 bedroom detached house for sale in Moorhouse Lane, Moorhouse, Doncaster, DN6 — £675,000 • 4 bed • 2 bath • 2616 ft²
9 bedroom detached house for sale in Holme Lane, Holme, Doncaster, DN5 — £1,500,000 • 9 bed • 6 bath • 4532 ft²
4 bedroom detached house for sale in Leeds Road, Lofthouse Farm, Wakefield, WF3 — £749,950 • 4 bed • 2 bath • 3485 ft²
5 bedroom detached house for sale in Chantry Lane, Hazlewood, North Yorkshire, LS24 — £2,395,000 • 5 bed • 5 bath • 5511 ft²






































































































































































