Large loft potential and rural views — perfect for a sympathetic refurbishment project.
- Large 1,400 sq ft overall with substantial loft space for conversion
- Decent private gardens front and rear; views over farmland to the rear
- Parking for several cars and separate timber garage set away from house
- Requires renovation throughout; sold with no onward chain
- EPC currently E (52); potential to improve to C (72)
- External stone walls likely uninsulated; thermal upgrades needed
- Heating via LPG boiler (cylinder supply) not mains gas
- Double glazing fitted pre-2002; windows and services may need updating
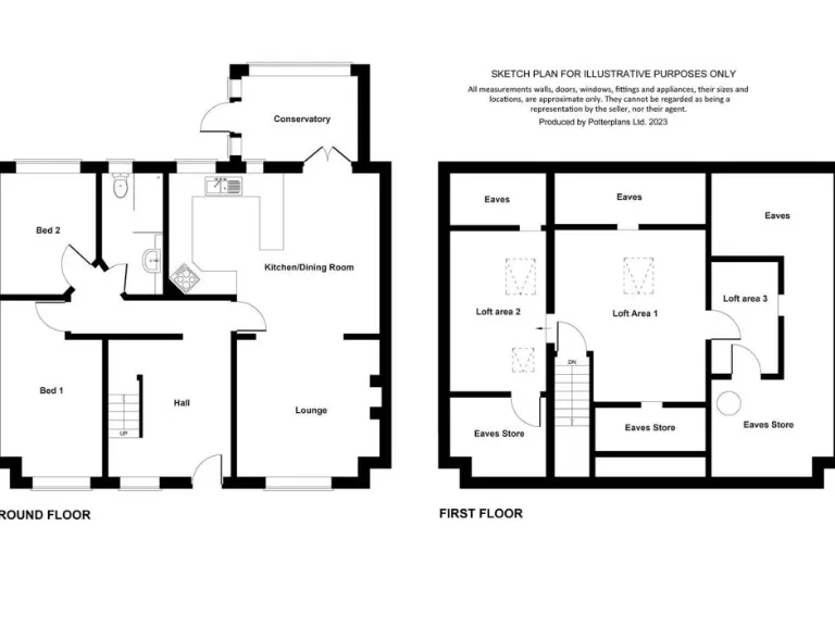
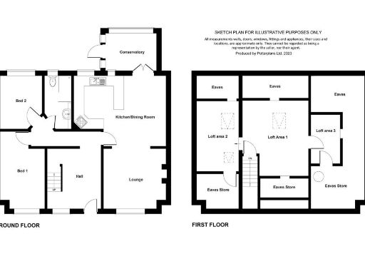
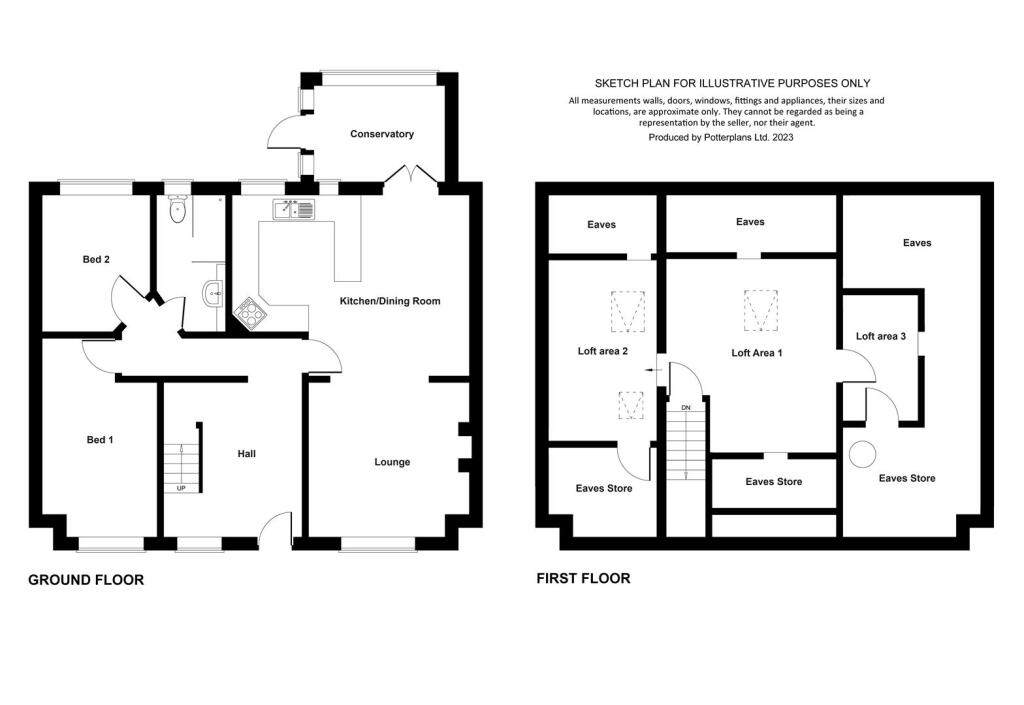
A deceptively spacious mid-terraced bungalow in the village of Easby, offered freehold with no onward chain. The cottage combines traditional stone character, a generous open-plan ground floor and a large loft arranged over a first floor — offering clear potential to create a substantial master suite subject to planning. Set on a decent plot with lawned front and rear gardens, patio seating and parking leading to a timber garage, the home sits in a very affluent, low-crime neighbourhood with excellent mobile signal and fast broadband.
The accommodation is immediately liveable but priced and described for refurbishment. Key positives include a capacious kitchen/dining area, a bright conservatory overlooking farmland, a beamed lounge with stone fireplace and two first-floor loft areas with Velux windows and eaves storage. Practical details: LPG boiler and radiators, double glazing installed before 2002, council tax band C and no flood risk — useful for downsizers or buyers seeking a countryside retreat with scope to add value.
Buyers should be aware of the material renovation needs. The property currently requires modernisation throughout; external stone walls are assumed uninsulated, the EPC is E (52) with potential for improvement to C (72), and the glazing and some services are dated. LPG fuel means reliance on cylinder deliveries rather than a mains gas network. While the loft is promising, any conversion will need the correct permissions and building works.
For the right buyer this is a characterful project in a tranquil village setting: large internal footprint, garden and garage parking make it practical, while the loft and open-plan spaces offer clear scope to modernise and increase value. Viewing recommended to appreciate scale and potential.
5 bedroom semi-detached house for sale in Gatherley Road, Brompton On Swale, Richmond, DL10 — £564,950 • 5 bed • 2 bath • 2626 ft²
3 bedroom cottage for sale in Easby Mews, Easby, DL10 — £329,950 • 3 bed • 2 bath • 836 ft²
4 bedroom cottage for sale in 3 West Street, Gayles, Richmond, DL11 — £400,000 • 4 bed • 2 bath • 582 ft²
2 bedroom semi-detached house for sale in Laburnum Grove, Richmond, DL10 — £249,950 • 2 bed • 1 bath • 1590 ft²
3 bedroom detached house for sale in Old Smithy Green, Newsham, DL11 — £425,000 • 3 bed • 1 bath • 1380 ft²
3 bedroom detached house for sale in Station Road, Brompton On Swale, Richmond, DL10 — £249,950 • 3 bed • 1 bath • 1917 ft²






















































































































































































