Central location with refurbishment potential near Reading town centre.
Chain free Victorian bay-fronted terrace
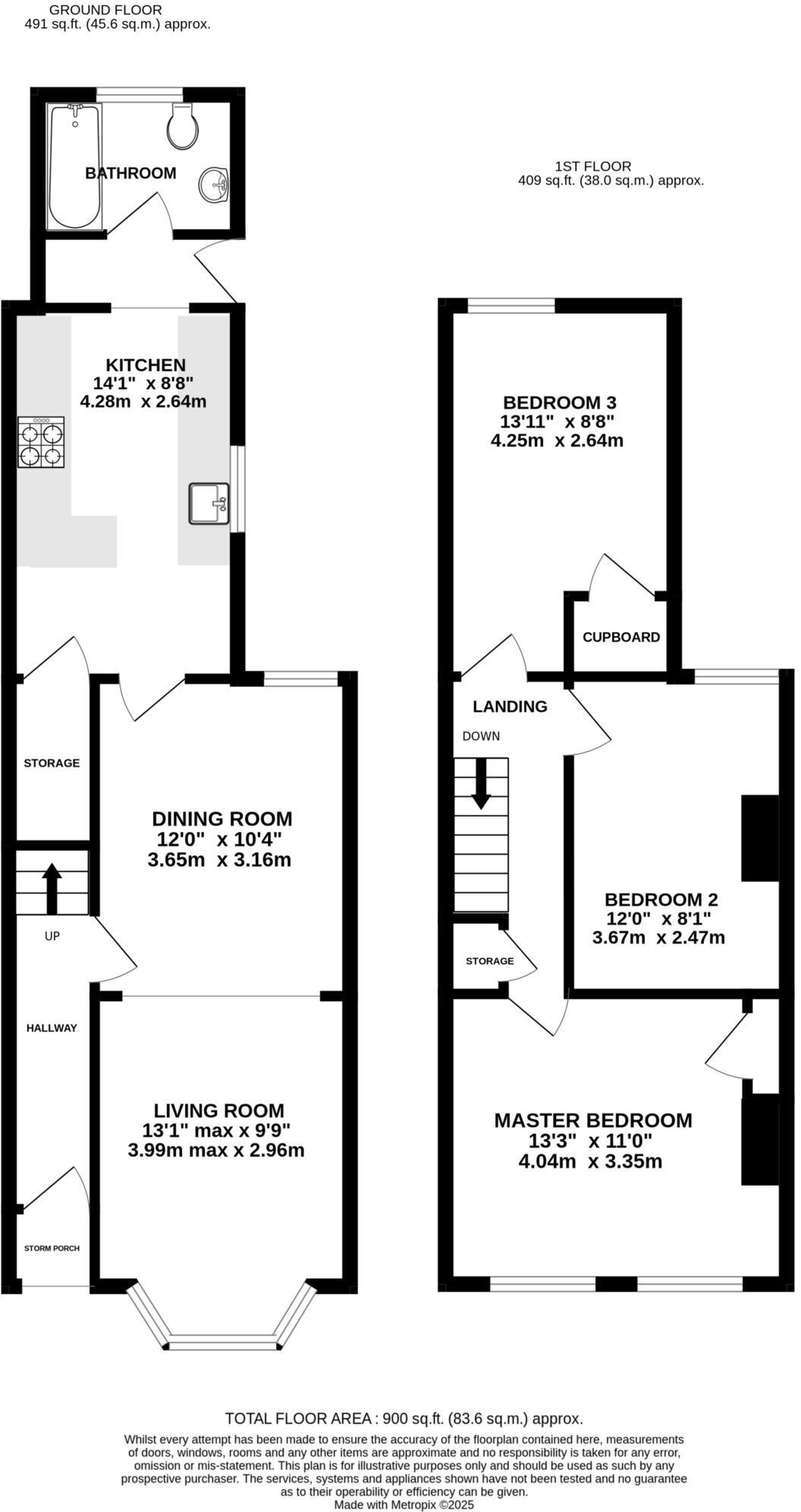
This Victorian bay-fronted terrace offers a practical three-bedroom layout in central Reading, sold chain free and ready for an immediate move. Rooms are sensibly proportioned — a 13ft bay living room, separate 12ft dining room and a 14ft kitchen — suiting a first home or buy-to-let. The property benefits from gas central heating, UPVC double glazing and a fully enclosed rear garden.
There is clear potential to add value: loft or rear extension/conversion subject to planning could increase space and rental or resale appeal. The house is of solid brick construction (typical of the era) and will likely repay cosmetic updating and insulation improvements to modernise comfort and reduce running costs.
Practical considerations: the plot and rooms are compact and the front forecourt is small; the area records above-average crime locally, so buyers should factor neighbourhood safety measures. Viewing is recommended for anyone seeking a central location within walking distance of Reading town centre and West station, with straightforward scope for refurbishment or rental income.
3 bedroom terraced house for sale in Catherine Street, Reading, Berkshire, RG30 — £335,000 • 3 bed • 1 bath • 915 ft²
3 bedroom terraced house for sale in Highgrove Terrace, Reading, RG1 — £325,000 • 3 bed • 1 bath • 915 ft²
3 bedroom terraced house for sale in Cannon Street, Reading, RG1 — £280,000 • 3 bed • 1 bath • 672 ft²
2 bedroom terraced house for sale in Shaftesbury Road, Reading, RG30 — £325,000 • 2 bed • 2 bath • 969 ft²
3 bedroom terraced house for sale in Edinburgh Road, Reading, RG30 — £375,000 • 3 bed • 1 bath • 1045 ft²
3 bedroom terraced house for sale in Wolseley Street, Reading, Berkshire, RG1 — £290,000 • 3 bed • 1 bath • 678 ft²














































