Ready-to-move-in period home near shops and countryside.
Newly renovated throughout with modern electrics and heating
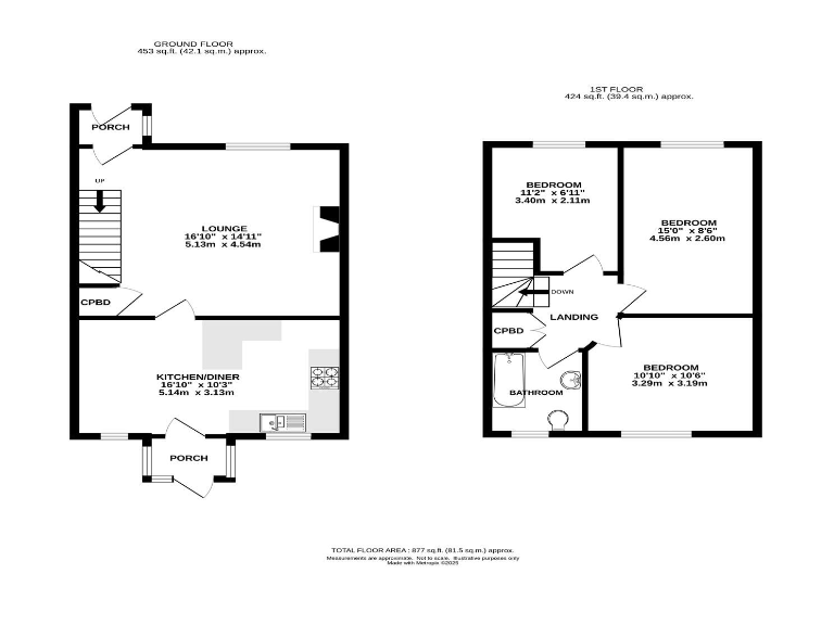
A sympathetically renovated stone terrace cottage offering three bedrooms and contemporary living in the Peak District’s edge town of Buxton. Recent works deliver new flooring, modern electrics, a gas central-heating system and a fitted kitchen-diner, so the house is ready to move into. The cottage retains period character such as a stone fireplace and traditional exterior while providing practical, modern comfort.
Outdoor space is compact but useful: a small rear garden plus an additional neighbouring plot with established trees currently used for off-street parking. The property is freehold, with a single family bathroom and double-glazed windows (installed before 2002). Local shops and bus links are a short walk away and countryside access is nearby.
Notable considerations: the house is an early 20th-century stone build with assumed solid walls and no cavity insulation noted, and the plot is small. Mobile signal is reported as none and broadband speeds average — factors to check if home working is essential. Overall this is a ready-to-live-in period cottage suited to buyers seeking character, low council tax and convenient access to Buxton amenities and surrounding countryside.
3 bedroom terraced house for sale in Fiddle Street, Buxton, Derbyshire, SK17 — £240,000 • 3 bed • 1 bath • 886 ft²
3 bedroom terraced house for sale in Pomeroy Cottages, Flagg, Buxton, SK17 — £250,000 • 3 bed • 2 bath • 926 ft²
3 bedroom detached house for sale in Lightwood Avenue, Buxton, Derbyshire, SK17 — £375,000 • 3 bed • 1 bath • 1222 ft²
2 bedroom terraced house for sale in Macclesfield Old Road, Buxton, Derbyshire, SK17 — £240,000 • 2 bed • 1 bath • 698 ft²
5 bedroom terraced house for sale in Dolby Road, Buxton, Derbyshire, SK17 — £389,950 • 5 bed • 2 bath • 1723 ft²
3 bedroom end of terrace house for sale in New Cottages, Grinlow Road, Buxton, SK17 — £279,000 • 3 bed • 3 bath • 1270 ft²


















































