GL50 4JU - 2 bed regency garden flat in 7 Wellington Square, GL50 4JU

View on Property Piper

2 bedroom apartment for sale in Wellington Square, GL50

Summary - GARDEN FLAT, 7, WELLINGTON SQUARE GL50 4JU

2 bed 2 bath Apartment

Charming town-centre retreat with private garden and character features.
Grade II listed Regency garden flat with private rear garden
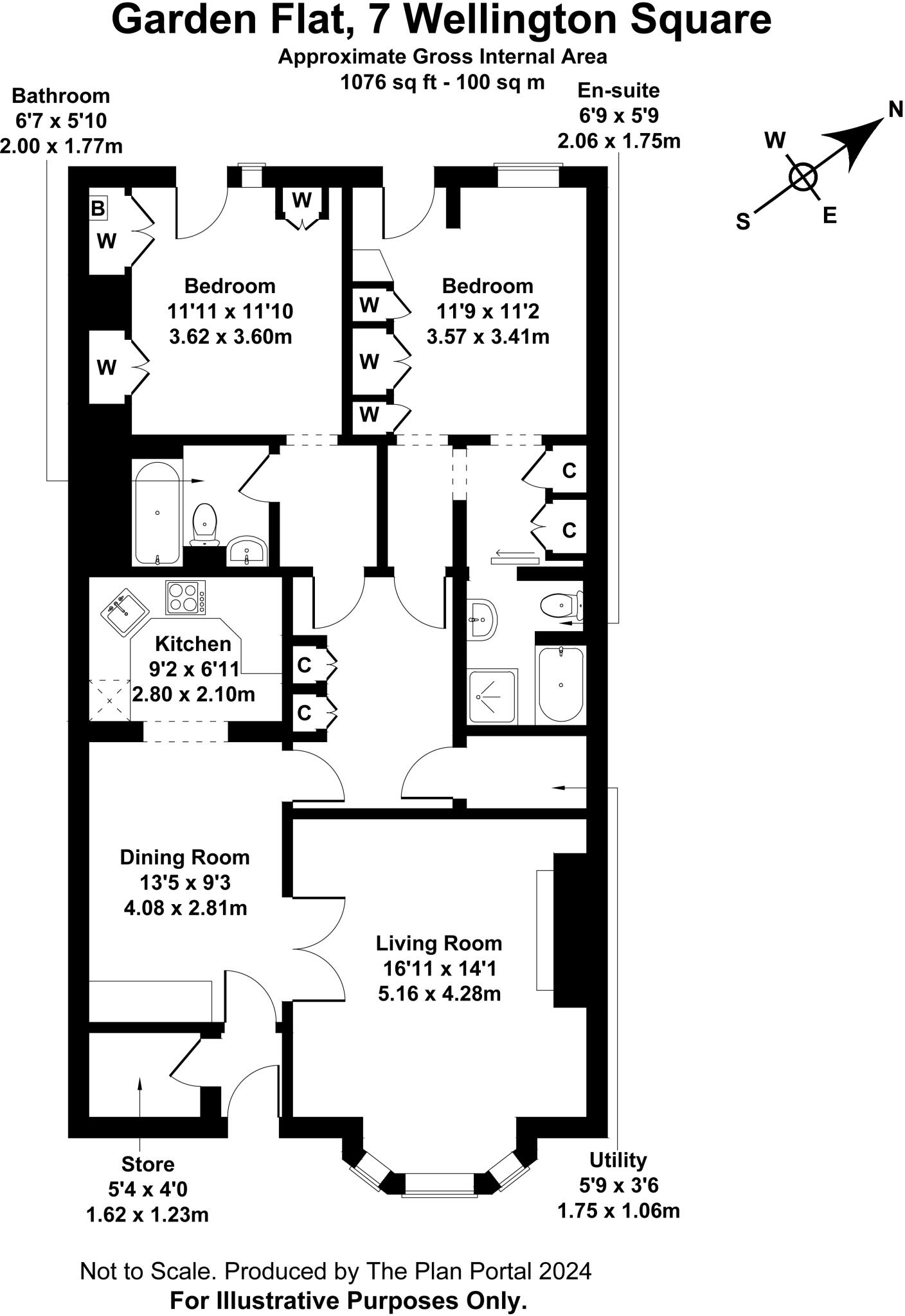
Two double bedrooms, both with en-suite bathrooms and fitted storage
Underfloor heating in key rooms; wood-burning stove in reception
999-year lease from 2017; quarter share of the freehold
Service charge approximately £1,200 per annum
Original stone walls (no assumed wall insulation) — check thermal performance
On-street permit parking only; convenient town-centre location
Listed status will restrict alterations and may complicate works
A beautifully presented two-double-bedroom garden flat set within a large Grade II listed Regency townhouse, quietly located on Wellington Square and within easy walking distance of Cheltenham town centre. The apartment combines period charm — bay window and high ceilings — with contemporary comforts such as a fully fitted kitchen, underfloor heating and two en-suite bathrooms. A private rear garden with lawn, patio, specimen planting and rear pedestrian access is a significant city-centre rarity.

The layout works well for downsizers, professionals or couples who want town living with outdoor space: an entrance lobby and useful cloaks cupboard lead into a generous kitchen/dining room with Silestone worktops and integrated appliances. The main reception room is bright with a bay window and a wood-burning stove set in a marble surround. Both double bedrooms include fitted storage and direct access to the enclosed garden; the master benefits from extensive wardrobes and an en-suite shower room.

Practical points to note: the flat is LEASEHOLD (quarter share of freehold) with a long 999-year lease from 2017 and an annual service charge around £1,200. The building’s Grade II listed status will restrict alterations and may complicate certain works or permissions. Construction is original stone with assumed no cavity wall insulation; interested buyers should check thermal performance and any planned conservation requirements. On-street permit parking only, and local crime levels are reported above average.

Overall this is a rare combination of Regency character and modern convenience in one of Cheltenham’s most prestigious garden squares. It will suit buyers seeking low-maintenance garden living close to eateries, shops and trains, but anyone considering significant modifications should factor in listed-building constraints and carry out their own technical and legal checks.

Property Details

Image Descriptions

Floorplan Description

Rooms

Textual Property Features

Target Audience

AI Tags

Detected Visual Features

EPC Details

Nearby Schools

Nearest Bars And Restaurants

,,,,}

Nearest General Shops

,,}

Nearest Grocery shops

,,}

Nearest Supermarkets

,,}

Nearest Religious buildings

,,}

Nearest Medical buildings

,,,}

Nearest Leisure Facilities

,,,,}

Nearest Tourist attractions

,,}

Nearest Train stations

,,,,}

Nearest Bus stations and stops

,,,,}

Nearest Hotels

,,}

Tags

Local Market Stats

AirBnB Data

Similar Properties

Meta

High Res Images

Compatible Images

Low res Images

Thumbnails

Raw Images

High Res Floorplan Images

Compatible Floorplan Images

Low res Floorplan Images

FloorplanImages Thumbnail

Raw Floorplan Images