**Key Features:**
- Development plot with planning permission for a stunning 3-bedroom detached home
- Well-designed space of approximately 1585 sq ft over three floors
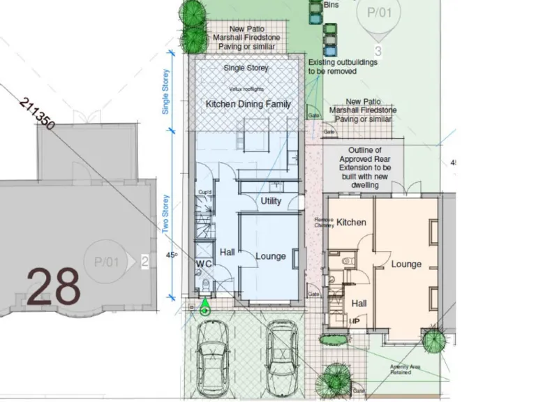
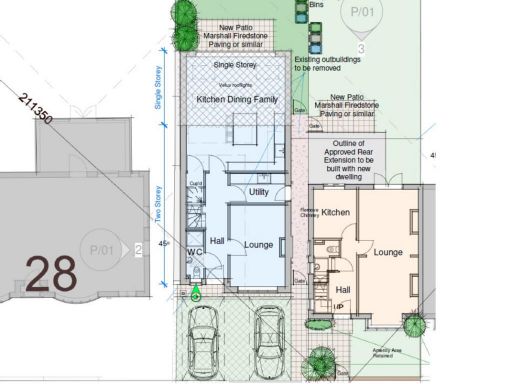
- Ground Floor: Separate lounge, spacious kitchen/dining, utility room, and WC
- First Floor: Two double bedrooms (one en suite), a study/bedroom, and family bathroom
- Second Floor: Luxurious master suite with en suite bath/shower
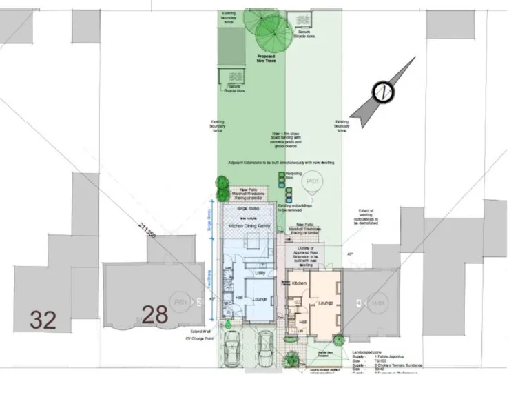
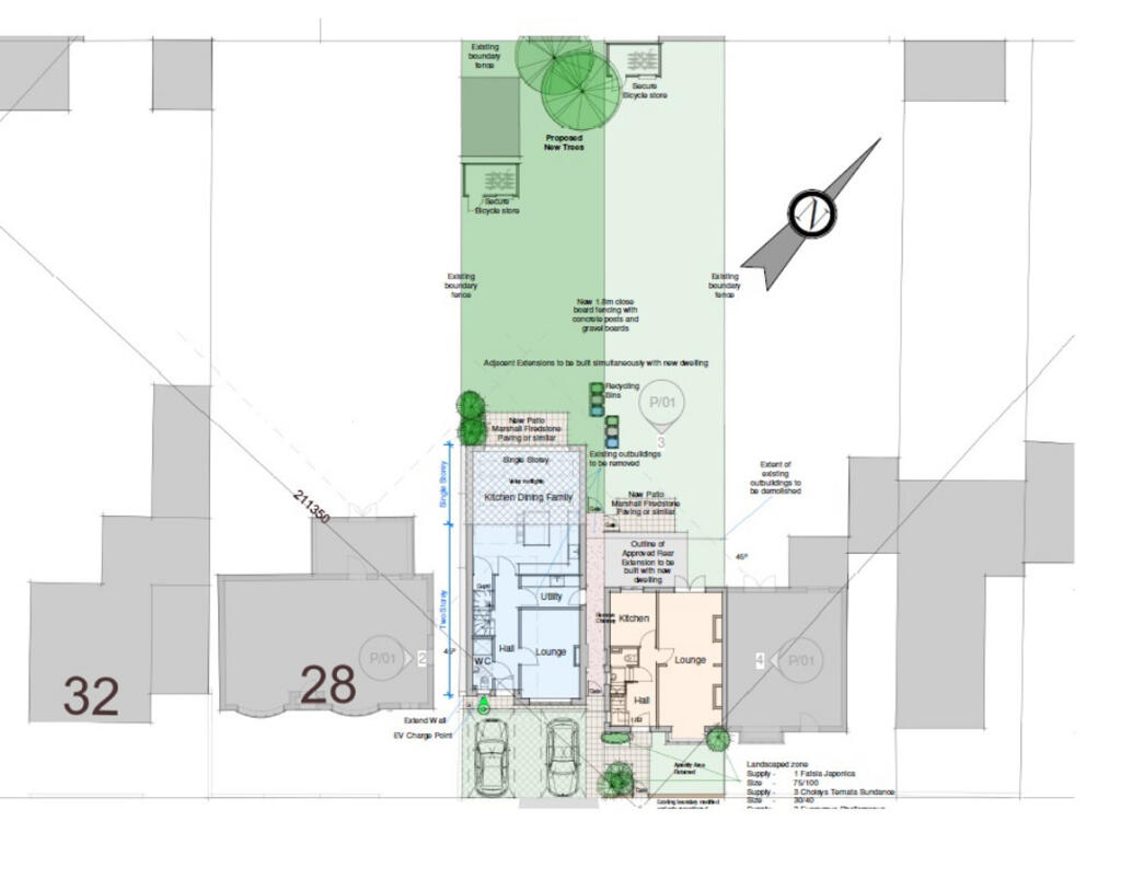
- Large landscaped garden and off-road parking
- Situated in a prime location of Tring with low crime rates
- Excellent school options nearby including Goldfield Infants' and Nursery School, rated outstanding
This exceptional development plot on Beaconsfield Road in Tring presents a unique opportunity for homeowners and investors alike, offering a solid foundation for creating a beautiful 3-bedroom detached residence. Encompassing a generous 147.5 sq m across three levels, this proposed home features thoughtfully allocated space for modern living, including a large kitchen/dining area and a master suite designed for comfort.
While the current property is tenanted, all site visits can be arranged upon request, ensuring a seamless transition into your future home. The plot comes with planning permission subject to necessary demolition and construction, allowing for exciting renovation potential that can truly reflect your personal style. Outdoor space is abundant with a sizeable garden and off-road parking, ideal for families or those who enjoy entertaining.
Nestled within a family-friendly neighborhood boasting a low crime rate and access to highly-rated local schools, this property offers both safety and community spirit. With the area’s affluent status and walkable amenities, this prime location is ripe for development and sure to appreciate in value. Don’t miss the chance to secure this rare plot—act swiftly to make your dream home a reality!
Plot for sale in Tring, HP23 — £750,000 • 1 bed • 1 bath
3 bedroom house for sale in Beaconsfield Road, Tring, HP23 — £600,000 • 3 bed • 2 bath • 1087 ft²
3 bedroom semi-detached house for sale in Beaconsfield Road, Tring, HP23 — £600,000 • 3 bed • 2 bath • 1170 ft²
Land for sale in PLOT WITH FULL PLANNING ADJACENT TO, Langdale Cottages, LONG MARSTON, HP23 — £575,000 • 1 bed • 1 bath • 2790 ft²
Plot for sale in Tring, HP23 — £750,000 • 4 bed • 4 bath • 2068 ft²
Land for sale in Tring, Hertfordshire, HP23 — £85,000 • 1 bed • 1 bath






















































