Much-loved family house with generous garden and flexible living near local schools.
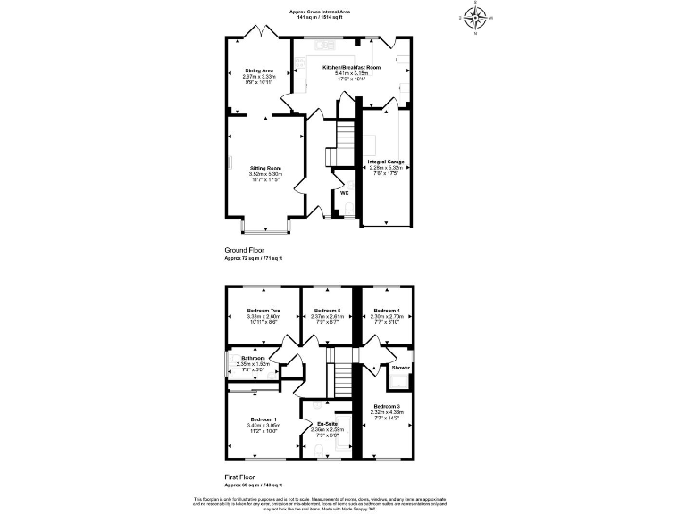
- Five bedrooms, including principal with en-suite and underfloor heating
- Two reception rooms: bay-front sitting room and formal dining room
- Modern kitchen with integrated appliances and garage access
- Sunny, private rear garden with pond, greenhouse and timber shed
- Driveway parking for at least two cars plus single integral garage
- Energy Efficiency Rating D; some areas may benefit from updating
- Freehold, mains gas central heating, double glazing post-2002
- Quiet cul-de-sac location close to shops, schools and A303 links
This well-loved five-bedroom detached house sits at the end of a quiet cul-de-sac in Wincanton, offering flexible accommodation for growing or multi-generational families. Bright, well-proportioned rooms include a sitting room with a bay window and feature fireplace, a formal dining room that opens to the garden, and a modern kitchen with integrated appliances and breakfast area.
The first floor is split into two wings and provides three doubles (one with an en-suite and underfloor heating), two singles, a family bathroom and an additional shower room — practical for busy households. Outside there is driveway parking for at least two cars, a single integral garage with power and light, and a sunny, well-enclosed rear garden with paved terrace, lawn, wildlife pond, greenhouse and shed.
Practical details: freehold tenure, mains gas central heating with radiators, double glazing installed post-2002, Energy Efficiency Rating D and Council Tax Band D. The location combines small-town convenience with rural traits: good local shops, schools (several rated Good), fast broadband and excellent mobile signal, with easy access to the A303 for wider travel.
The house has been cared for by the same family since new and presents comfortable living now with clear scope to personalise and modernise areas to taste — an appealing combination of ready-to-move-in and future potential.
4 bedroom detached house for sale in Blackmore Chase, Wincanton, Somerset, BA9 — £385,000 • 4 bed • 2 bath • 1363 ft²
3 bedroom link detached house for sale in Saunters Close, Wincanton, Somerset, BA9 — £294,000 • 3 bed • 1 bath • 761 ft²
4 bedroom detached house for sale in Atkins Hill, Wincanton, Somerset, BA9 — £400,000 • 4 bed • 2 bath • 1286 ft²
3 bedroom detached house for sale in Blackmore Chase, Wincanton, BA9 — £325,000 • 3 bed • 1 bath • 1065 ft²
4 bedroom link detached house for sale in Saunters Close, Wincanton, Somerset, BA9 — £350,000 • 4 bed • 1 bath • 1294 ft²
4 bedroom detached house for sale in West Hill, Wincanton, Somerset, BA9 — £595,000 • 4 bed • 2 bath • 2254 ft²


















































