Large site with planning potential for four to six houses near Lenham.
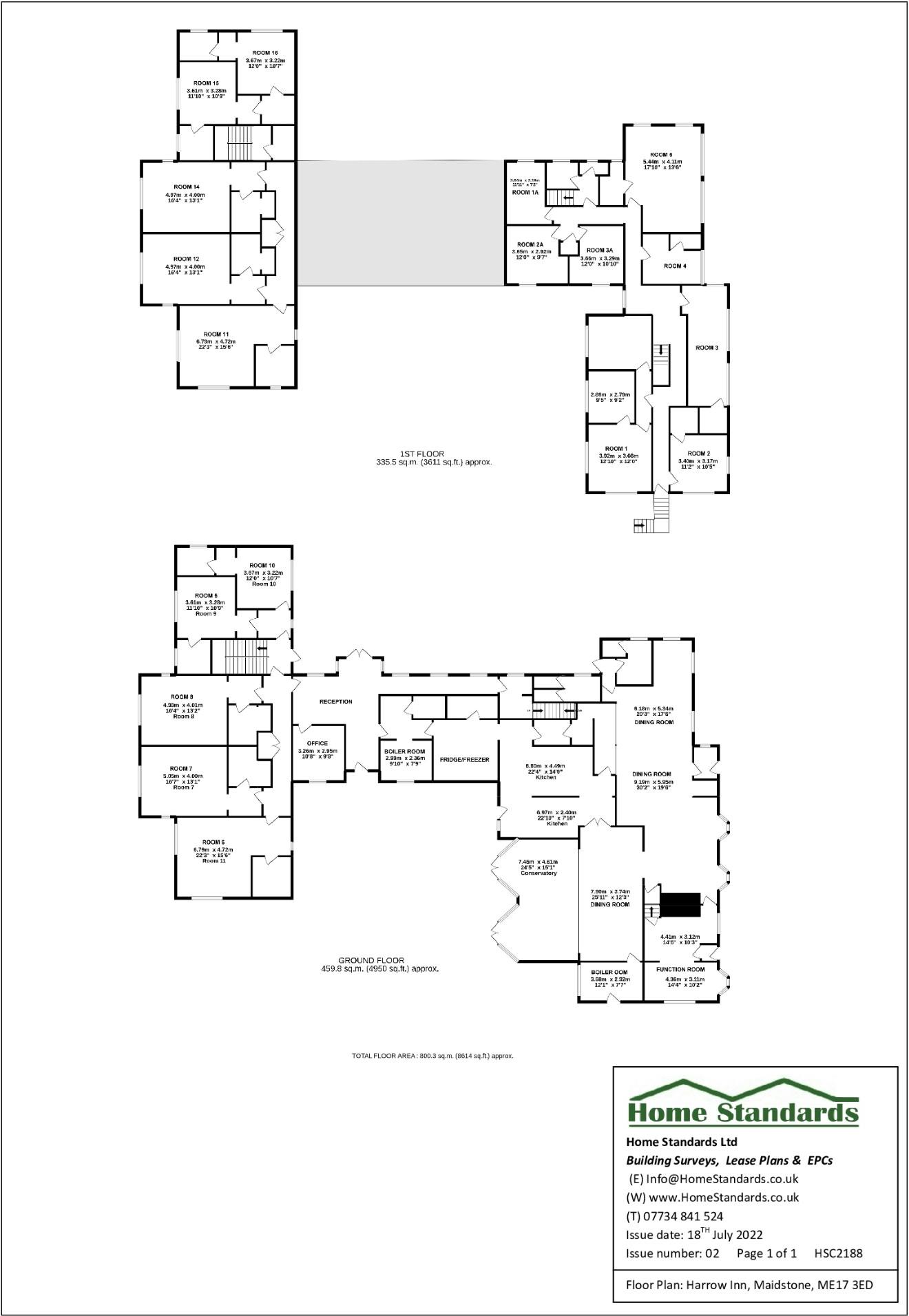
Large freehold site with 8,651 sq ft and very large grounds
This former country hotel on the outskirts of Lenham offers a substantial freehold site with clear redevelopment potential. The existing building comprises 18 guest bedrooms, restaurant, public bar, kitchen and ancillary staff accommodation across approximately 8,651 sq ft, set within very large grounds and extensive car parking. The property is not trading and will require renovation and decorative works to reopen as a hospitality business.
For developers or investors the parcel could be repurposed for residential development, with a suggested yield of four to six houses subject to planning. The site’s rural setting on the southern edge of the North Downs, off-street parking and overall plot size are strong value drivers; good local primary and secondary schools are within reasonable distance and transport links include close access to the M20 and M2.
Buyers should allow for material refurbishment costs and consider slow broadband and average mobile signal in the area. The building currently needs renovation and modernisation; any conversion or redevelopment will depend on obtaining the necessary consents. Flood risk is low and the site is offered freehold, making it straightforward for redevelopment planning.
This is best suited to experienced investors, developers or operators able to manage a non-trading property and navigate planning and refurbishment. Viewing and technical due diligence are recommended to quantify refurbishment scope and potential unit mix before exchange.
Leisure facility for sale in The Hop Pole, Maidstone Road, Nettlestead, Maidstone, ME18 5HH, ME18 — £500,000 • 1 bed • 1 bath • 2326 ft²
Land for sale in Beaumont Davey Close, Faversham, Kent, ME13 — £1,500,000 • 3 bed • 2 bath • 6250 ft²
Land for sale in Norton Ash Site, London Road, Teynham, Sittingbourne, Kent, ME9 9JY, ME9 — £2,750,000 • 1 bed • 1 bath
Land for sale in Hampstead Lane, Yalding, ME18 — £875,000 • 1 bed • 1 bath • 4090 ft²
Pub for sale in LA-524505 - Woolpack Inn, Church Lane, Ashford TN26 2LL, TN26 — £850,000 • 1 bed • 1 bath • 1578 ft²
Land for sale in Grove Park Farm, Maidstone Road, Tonbridge, TN11 0JL, TN11 — £1,100,000 • 1 bed • 1 bath • 13518 ft²










































