Sustainable south-facing apartment with generous space and riverside access.
South-facing triple-glazed windows and solar panels for energy efficiency
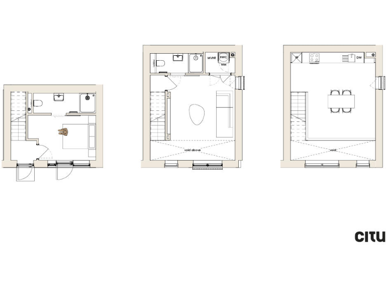
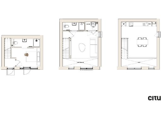
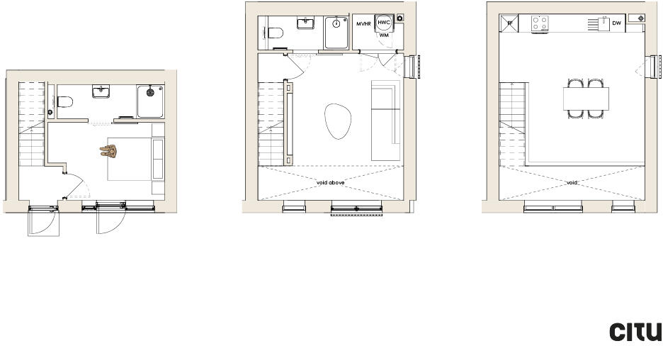
Large 956 sq ft one-bedroom triplex — feels bigger than typical one-bed
Open-plan kitchen/living area with integrated appliances and light flooring
Access to Spring Green, River Aire, extensive walking and cycling routes
MVHR, high insulation and EV charging provision support low-carbon living
Limited parking available at extra cost and allocated first-come basis
Tenure not specified; purchasers join the Community Interest Company
Triplex layout involves multiple stair flights — not wheelchair friendly
This rare triplex apartment in the Climate Innovation District offers a spacious, loft-style one-bedroom home across three levels — an unusual layout that creates clear separation between living and sleeping spaces. At approximately 956 sq ft it feels larger than a typical one-bed and benefits from south-facing triple-glazed windows, high-performance insulation, solar panels and an MVHR system for efficient, gas-free living.
The open-plan kitchen, dining and living area opens onto green communal space overlooking Spring Green and the River Aire, with walking and cycling routes on the doorstep. Practical features include secure bike storage, EV charging provision and communal landscaping maintained by a dedicated team. Local leisure and amenities are within easy walking distance, including Leeds Dock, Brewery Wharf and riverside cafés and bars.
Notable considerations: the triplex layout means multiple flights of stairs between levels, which may be less convenient for some buyers. Parking is very limited, available at extra cost on a first-come, first-served basis. Tenure details are not provided and every purchaser joins the development’s Community Interest Company, which gives influence over communal spaces but may include ongoing responsibilities or small management costs.
This is the only apartment of this triplex design in the development, offering exclusivity and potential long-term demand from city buyers seeking sustainable, well-specified homes. Buyers should confirm tenure, parking availability and any CIC obligations before committing.
2 bedroom apartment for sale in 79 District Lofts, LS9 8GB, LS9 — £340,000 • 2 bed • 2 bath • 821 ft²
3 bedroom terraced house for sale in 22 Waterside Landing, LS10 1GU, LS10 — £455,000 • 3 bed • 2 bath • 1181 ft²
2 bedroom apartment for sale in Orchard Lofts, Spring Walk, LS10 1GU, LS10 — £370,000 • 2 bed • 2 bath • 965 ft²
3 bedroom duplex for sale in Apartment 1, Aire Lofts, LS9 8FX, LS9 — £545,000 • 3 bed • 3 bath • 1289 ft²
1 bedroom apartment for sale in 68 District Lofts, LS9 8GB, LS9 — £235,000 • 1 bed • 1 bath • 544 ft²
4 bedroom terraced house for sale in 24 Wild Garden, LS9 8FA, LS9 — £499,950 • 4 bed • 2 bath • 1321 ft²


























