Spacious sustainable three-bedroom city home with mezzanine and riverside decking.
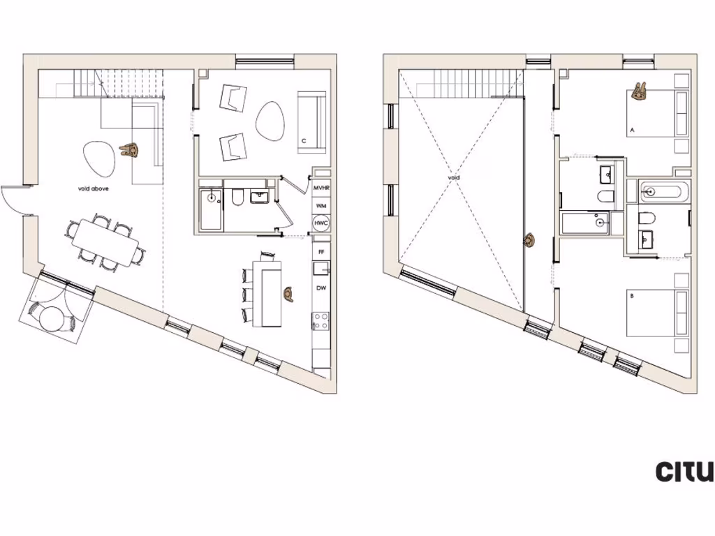
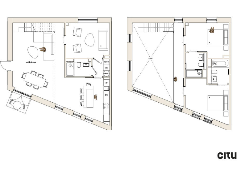
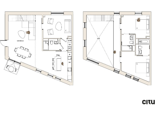
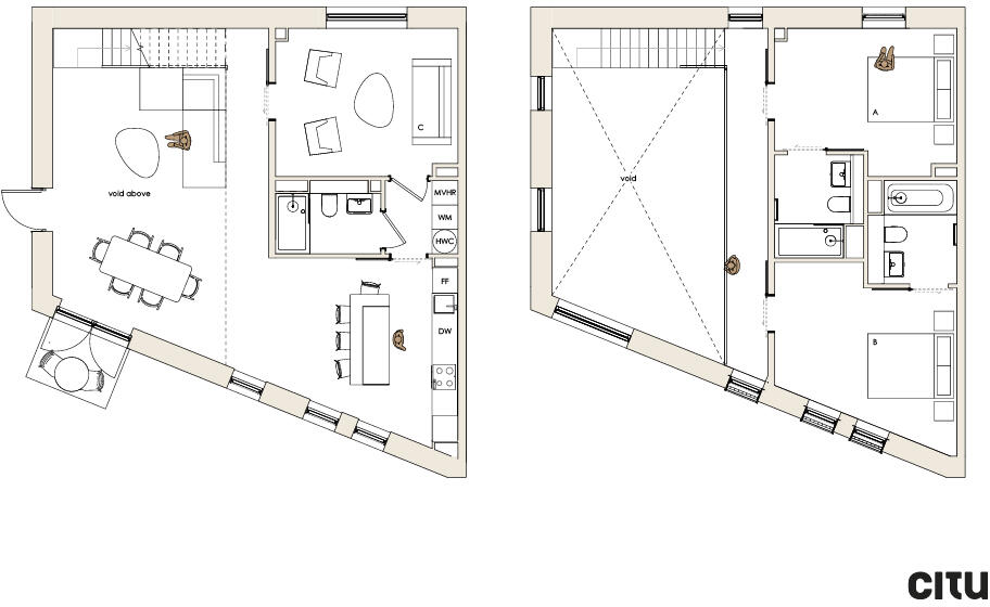
Generous 1,289 sq ft triple-aspect duplex with industrial mezzanine balcony
Double-height living room with abundant natural light
Three bedrooms and three bathrooms — practical family layout
South-facing triple-glazed windows; solar panels and MVHR
Gas-free home; residents' utilities owned by community company
Direct access to landscaped communal decking and riverside spaces
Limited on-site parking at extra cost; spaces allocated first-come
Broadband speeds slow locally; confirm connectivity for working from home
This striking three-bedroom duplex at Aire Lofts combines industrial loft character with modern, low-carbon technology. The open-plan living area with double-height ceilings and an industrial mezzanine balcony creates a dramatic main space flooded with light from south-facing, triple-glazed windows. At 1,289 sq ft the layout feels generous for a city-centre home, with three bathrooms and private access onto landscaped communal decking that overlooks the River Aire.
The home is built for low running costs and comfort: solar panels, high-performance insulation, MVHR (mechanical ventilation with heat recovery) and triple glazing support a gas-free lifestyle. Residents collectively own and control the local utilities infrastructure via a community company, and there are EV-charging provisions and bike storage to support low-carbon travel. The development is a 15-minute walk to Leeds city centre and close to Leeds Dock and Brewery Wharf amenities.
Practical points to note: broadband speeds are reported as slow and on-site parking is limited, available separately and on a first-come, first-served basis at additional cost. The wider area is described as relatively deprived, which may affect local services and long-term resale in certain market conditions. Tenure details are not supplied and should be confirmed before offer.
This apartment will suit buyers seeking a spacious, sustainable city home with loft character — families or professionals wanting strong environmental performance and riverside communal spaces. It also has rental potential for investors given the three-bedroom, three-bathroom layout, but confirm tenure, parking arrangements, and broadband options before committing.
2 bedroom apartment for sale in 79 District Lofts, LS9 8GB, LS9 — £340,000 • 2 bed • 2 bath • 821 ft²
2 bedroom apartment for sale in Orchard Lofts, Spring Walk, LS10 1GU, LS10 — £320,000 • 2 bed • 2 bath • 728 ft²
2 bedroom duplex for sale in Orchard Lofts, Spring Walk, LS10 1GU, LS10 — £390,000 • 2 bed • 2 bath • 1041 ft²
2 bedroom apartment for sale in 62 District Lofts, LS9 8GB, LS9 — £335,000 • 2 bed • 2 bath • 772 ft²
1 bedroom triplex for sale in Orchard Lofts, Spring Walk, LS10 1GU, LS10 — £365,000 • 1 bed • 2 bath • 956 ft²
1 bedroom apartment for sale in 68 District Lofts, LS9 8GB, LS9 — £235,000 • 1 bed • 1 bath • 544 ft²






























































