**Standout Features:**
- Central location in Greenock with excellent walkable amenities
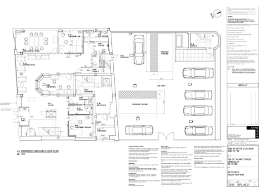
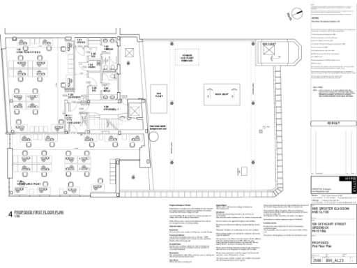
- Extremely large office space (18,890 sq ft) ideal for businesses or conversion
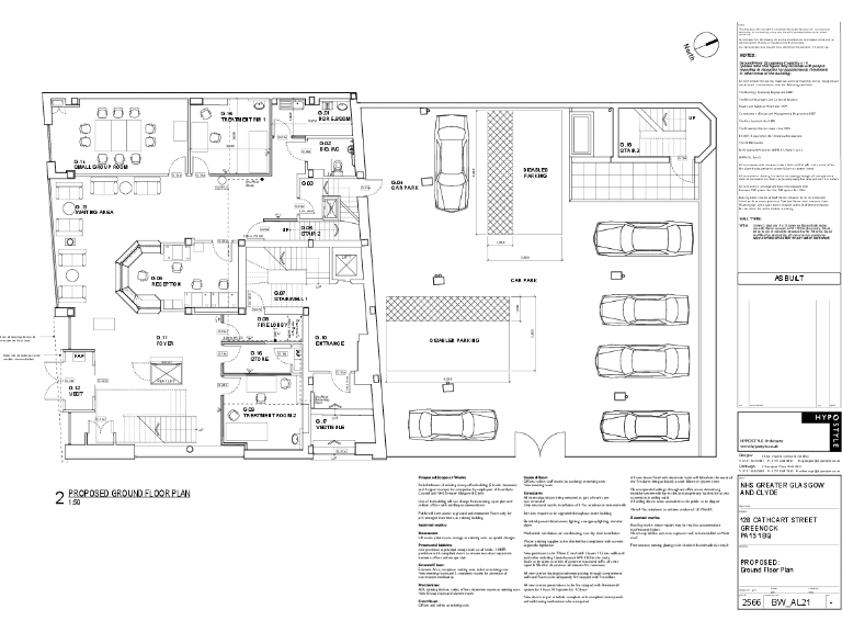
- 8 dedicated off-street parking spaces
- Proximity to public transport, including Greenock Central
**Concerns:**
- Situated in a deprived neighborhood
- Requires potential renovation or updates
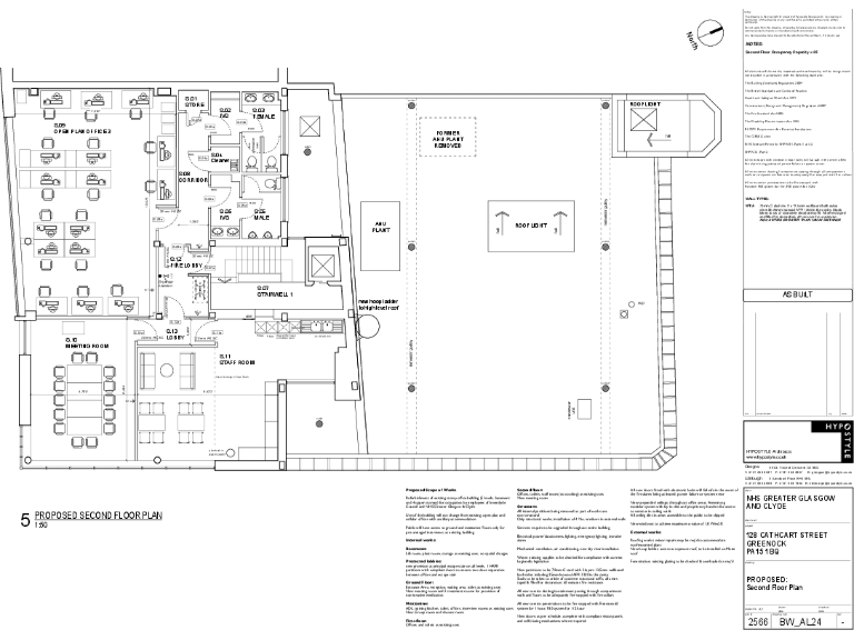
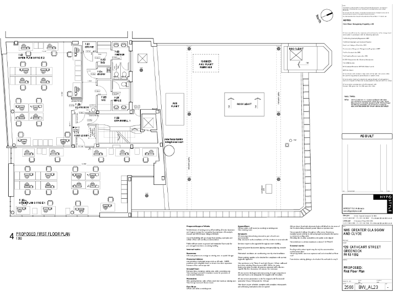
Discover this substantial office space for sale at Cathcart Centre, nestled in the heart of Greenock. Spanning an impressive 18,890 sq ft, the property features a unique Brutalist architectural style and offers ample room for customization or expansion. With parking for eight vehicles and exceptional accessibility to local amenities—ranging from supermarkets and cafes to educational institutions—this facility is primed for business or creative ventures.
While the surrounding area is classified as deprived, this central location provides a rare opportunity for investment or transformation. The interior boasts standard ceiling heights and multiple rooms, making it adaptable for various uses. Significant renovation may be needed to realize its full potential, but the large footprint and prime positioning make this property an attractive prospect for both investors and businesses looking to establish a presence in a continuously evolving urban environment. Don't miss out on this unique opportunity to own a piece of Greenock's commercial landscape!
Office for sale in Nicolson Street, Greenock, Inverclyde, PA15 — £49,000 • 1 bed • 1 bath • 614 ft²
High street retail property for sale in Cathcart Street, Greenock, Inverclyde, PA15 — £135,000 • 1 bed • 1 bath • 11908 ft²
Commercial property for sale in Cathcart House, 6 Cathcart Square, Greenock, Renfrewshire, PA15 — £350,000 • 1 bed • 1 bath
Commercial property for sale in Roxburgh House, 102-112 Roxburgh Street, Greenock, PA15 4JT, PA15 — £170,000 • 1 bed • 1 bath • 15645 ft²
Commercial property for sale in 13A William Street, Greenock, PA15 1BT, PA15 — £45,000 • 1 bed • 1 bath
Office for sale in Roxburgh House, 102-112 Roxburgh Street, Greenock, PA15 4JT, PA15 — £170,000 • 1 bed • 1 bath • 15645 ft²


































