**Standout Features:**
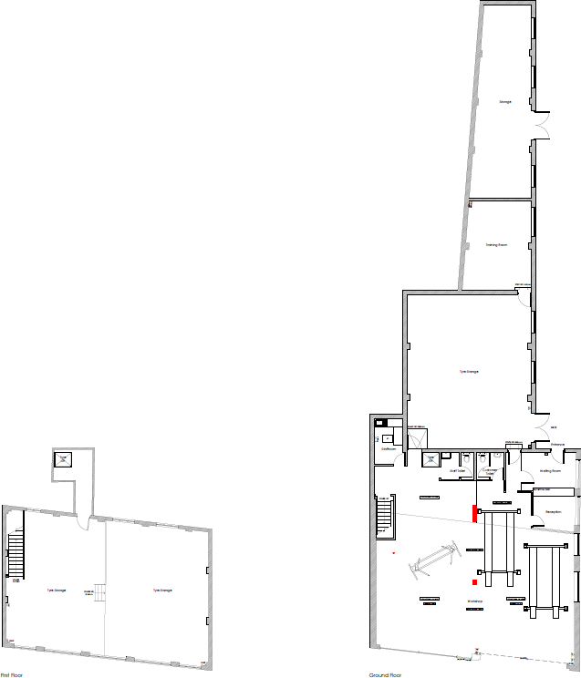
- **Large size:** 5,150 sq. ft. of flexible space, ideal for a variety of commercial uses.
- **Prominent location:** Situated on a busy roundabout with excellent visibility.
- **Parking & access:** Generous yard and off-street parking with wide roller shutter doors for vehicle access.
- **Development potential:** Suitable for continued automotive use, but offers opportunities for mixed-use redevelopment.
- **Solid structure:** Built from durable materials with large workshop bays and a first-floor storage area.
**Potential Concerns:**
- **Lease hold issue:** 9 years remaining on the lease; mortgage lenders may be hesitant to finance.
- **High crime rate:** Area has a very high crime rate, which could be a disadvantage for some businesses.
- **Deprived area:** Local area classified as deprived, affecting attraction to certain demographics.
**Summary:**
Welcome to an exceptional opportunity in Colchester’s bustling Middleborough area! This expansive 5,150 sq. ft. light industrial space presents itself as an ideal venue for automotive businesses or a creative development project. Featuring a prominent position on a busy roundabout, this property enjoys superb visibility and easy access, complimented by ample off-street parking. Occupying a large lot, the building boasts multiple workshop bays, high ceilings, and a substantial rear yard, offering fantastic potential for expansion or diverse uses.
While the area presents challenges, including high crime rates and a short lease potentially complicating mortgage arrangements, the property sits at the heart of a cosmopolitan and student-friendly neighborhood, with abundant local amenities—including shops, restaurants, and excellent transport links—just a stone's throw away. Don’t miss out on this promising investment opportunity with room for transformation!
Office for sale in 28 Middleborough, CO1 — £1,675,000 • 1 bed • 1 bath • 8478 ft²
Light industrial facility for sale in 3 Phoenix Court, Hawkins Road, Colchester, Essex, CO2 — £575,000 • 1 bed • 1 bath • 4731 ft²
Light industrial facility for sale in Port Plaza, Port Lane, Colchester, Essex, CO1 — POA • 1 bed • 1 bath • 15280 ft²
Commercial property for sale in Claudius Road, Colchester, Essex, CO2 — £650,000 • 1 bed • 1 bath • 4561 ft²
Light industrial facility for sale in Edgworth Road, Sudbury, Suffolk, CO10 — £349,000 • 1 bed • 1 bath • 4750 ft²
Light industrial facility for sale in 16 Moorside Business Park, Moorside, Colchester, Essex, CO1 — £225,000 • 1 bed • 1 bath • 1916 ft²






























