GU51 3PE - Office for sale in Upper Street, Fleet, Hampshire, GU51

View on Property Piper

Office for sale in Upper Street, Fleet, Hampshire, GU51

Summary - Upper Street, Fleet, Hampshire, GU51 GU51 3PE

1 bed 1 bath Office

Large vacant leasehold office with long lease and conversion potential (STPP) in Fleet centre.
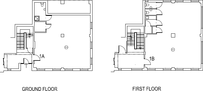
1,758 sq ft over ground and first floors
A substantial vacant leasehold property in Fleet town centre, offering 1,758 sq ft over ground and first floors. The premises are presented as blank‑canvas office space with a modern, utilitarian shell and immediate availability—suitable for a range of commercial uses or for investors considering conversion to residential subject to planning (STPP).

Key financial and practical benefits include a very long lease (c.980 years remaining), central town‑centre location with excellent road and rail links, and strong local amenities within easy walking distance. Mobile signal is excellent and the local area is classified as very affluent with a high proportion of degree‑educated residents—attributes that support rental demand or residential conversion values.

Material considerations are straightforward: the property is offered as leasehold/shared ownership, currently vacant, and would require planning consent for residential conversion. Broadband speeds are average, and the immediate area records higher crime levels than average—factors investors should weigh for tenancy profiling or conversion strategy. Internal photos show general wear and small stains; a light to moderate refurbishment is likely to make the space lettable or ready for conversion.

This opportunity suits investors seeking a centrally located, long‑lease asset with conversion upside. Prepare for planning lead times and budget for refurbishment and any measures to address local crime concerns if targeting family or high‑end residential markets.

Property Details

Image Descriptions

Textual Property Features

Target Audience

AI Tags

Detected Visual Features

Nearby Schools

Nearest Bars And Restaurants

,,,,}

Nearest General Shops

,,}

Nearest Grocery shops

,,}

Nearest Supermarkets

,,}

Nearest Religious buildings

,,}

Nearest Medical buildings

,,,}

Nearest Airports

}

Nearest Leisure Facilities

,,,,}

Nearest Tourist attractions

,,}

Nearest Train stations

,,,,}

Nearest Bus stations and stops

,,,,}

Nearest Hotels

,,}

Tags

Local Market Stats

AirBnB Data

Similar Properties

Meta

High Res Images

Compatible Images

Low res Images

Thumbnails

Raw Images

High Res Floorplan Images

Compatible Floorplan Images

Low res Floorplan Images

FloorplanImages Thumbnail

Raw Floorplan Images