Spacious family home with garden and renovation potential near schools and shops.
Four bedrooms including a loft room with sloped ceilings
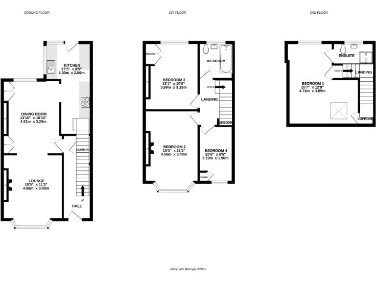
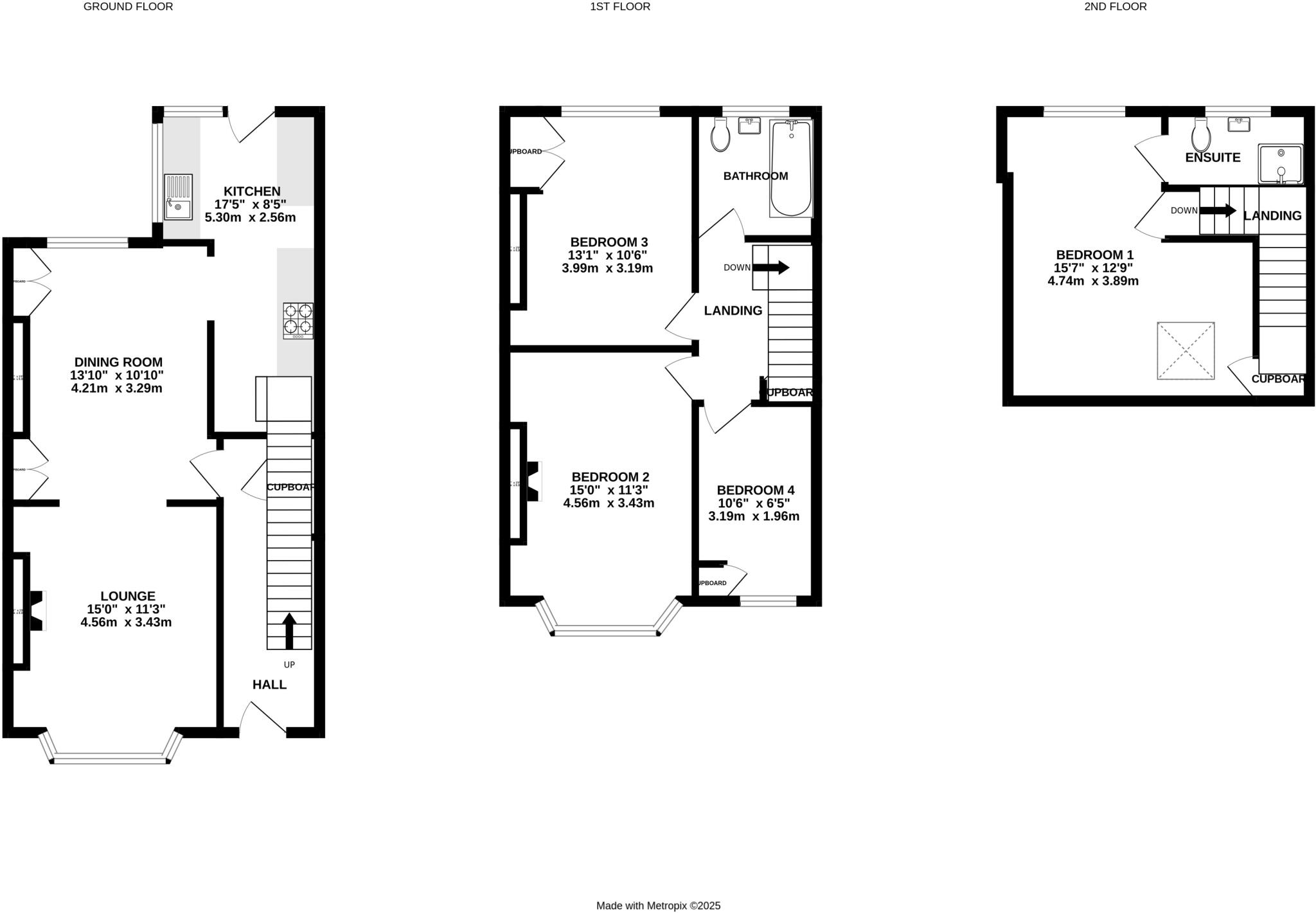
A four-bedroom mid-terrace in Torquay’s St Marychurch fringe, this early 20th-century home offers practical family living with scope to personalise. The layout includes a generous living/dining space, a loft bedroom with sloped ceilings, and a low-maintenance rear patio garden with mature shrub borders. Council tax is described as cheap and tenure is freehold.
The property benefits from fast broadband, average mobile signal and low local crime; local shops, primary schools and transport links are within easy reach. Heating is mains gas with a boiler and radiators in place, and the house sits back from the road behind a walled fore garden for added privacy.
Notable positives are the flexible four bedrooms and small garden that require minimal upkeep, plus potential to modernise or reconfigure the loft and patio area. However, buyers should note a medium flooding risk, solid brick walls likely without insulation, and the property’s overall small footprint and modest plot size. The roof and chimney are described in imagery as requiring attention and there may be scope for garage or outbuilding development subject to checks.
This home will suit families seeking good local schools and convenient amenities, or buyers wanting a period townhouse to update and add value. It is practical now but rewards those prepared to carry out targeted improvements to heating efficiency, insulation and cosmetic work.
4 bedroom semi-detached house for sale in Coombe Lane, Torquay, TQ2 — £340,000 • 4 bed • 1 bath • 1191 ft²
4 bedroom terraced house for sale in Kenwyn Road, Torquay, Devon, TQ1 — £300,000 • 4 bed • 1 bath • 919 ft²
4 bedroom semi-detached house for sale in Western Road, Torquay, TQ1 — £300,000 • 4 bed • 1 bath
4 bedroom terraced house for sale in Burleigh Road, Torquay, TQ2 — £170,000 • 4 bed • 1 bath • 778 ft²
4 bedroom terraced house for sale in Lower Shirburn Road, Torquay, TQ1 — £260,000 • 4 bed • 1 bath • 1119 ft²
2 bedroom end of terrace house for sale in Halsteads Road, Torquay, TQ2 — £280,000 • 2 bed • 1 bath • 1219 ft²


































































