Bright three-bedroom park home with garage, garden and no onward chain.
No onward chain — quicker sale possible
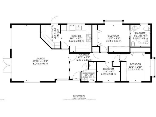
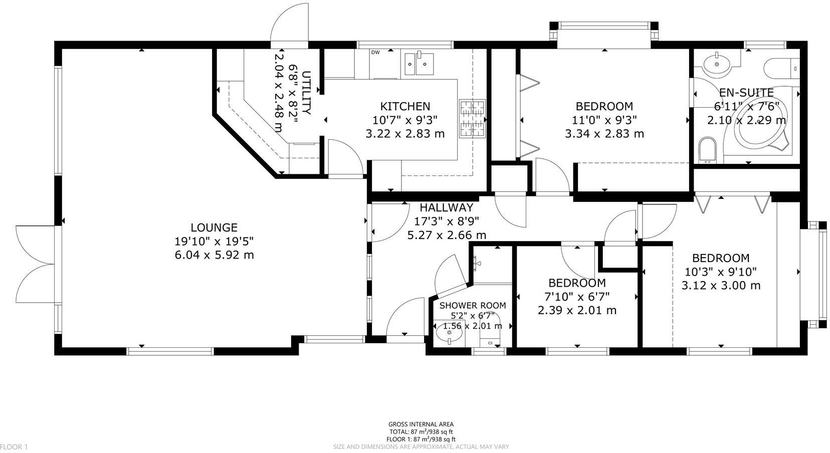
Set on Deanland Wood Park with no onward chain, this three-bedroom park home offers ready-to-move-in comfort and straightforward ownership (Freehold). A large L-shaped lounge/dining room is the social heart of the home, flooded with natural light and anchored by a feature fireplace. The fitted kitchen and adjoining utility deliver sensible storage and work space for everyday life. The master bedroom includes fitted wardrobes and an ensuite; a third room doubles as a study. Outside, wrap-around lawns, off-road parking and a garage complete the plot.
Practical advantages suit buyers downsizing or seeking low-maintenance single-storey living. The property sits within walking distance of park facilities (shop, community centre, restaurant) and benefits from very low local crime, no flood risk, excellent mobile signal and a very cheap council tax band. A monthly pitch fee of £278.99 (includes water) applies. The home has an average overall footprint (approx. 938 sq ft) and freehold tenure.
The interior mixes traditional and modern elements: generous room proportions and large windows provide bright living spaces, while the kitchen and some fittings reflect an earlier style. There’s clear potential to update finishes and personalise the home to your taste without major structural work. For buyers wanting an easy life with outdoor space, parking and a garage in a peaceful park setting, this is a practical, well-located option.
Important notes: this is a park home on a managed site with a monthly pitch fee. Broadband speeds are average. While the home is well presented, some cosmetic modernisation may be desired by purchasers seeking a contemporary finish.
3 bedroom park home for sale in Deanland Wood Park, Golden Cross, Hailsham, BN27 — £225,000 • 3 bed • 2 bath • 932 ft²
3 bedroom park home for sale in Deanland Wood Park, Golden Cross, Hailsham, BN27 — £235,000 • 3 bed • 2 bath • 928 ft²
2 bedroom park home for sale in Deanland Wood Park, Golden Cross, Hailsham, BN27 — £135,000 • 2 bed • 1 bath • 706 ft²
2 bedroom park home for sale in Deanland Wood Park, Golden Cross, Hailsham, BN27 — £235,000 • 2 bed • 2 bath • 928 ft²
2 bedroom park home for sale in Primrose Acre, Deanland Wood Park, BN27 — £120,000 • 2 bed • 1 bath • 590 ft²
2 bedroom park home for sale in Beech Avenue, Deanland Wood Park, Golden Cross, Hailsham, BN27 — £179,950 • 2 bed • 2 bath • 728 ft²














































































































