Spacious, well-presented home on a quiet close near excellent schools.
Four double bedrooms including main with ensuite
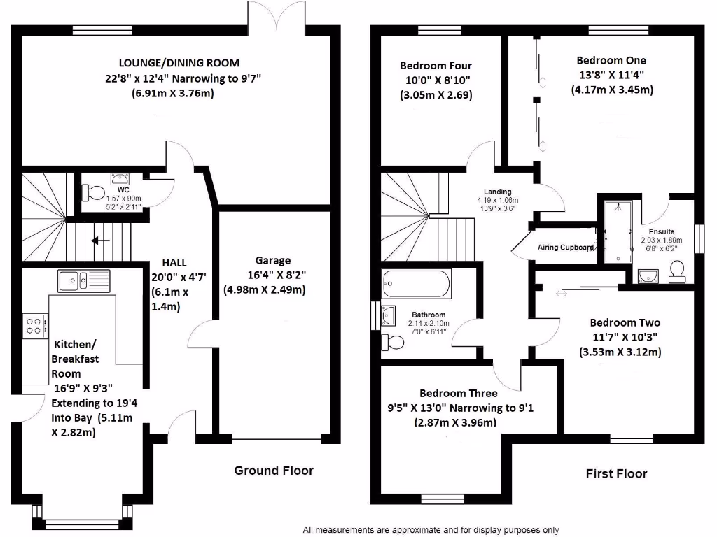
A well-proportioned four-bedroom detached family home in sought-after Church Aston, built by Galliers and presented in tasteful, move-in condition. The ground floor offers a generous kitchen/breakfast room with granite surfaces and integrated appliances, plus a large lounge/dining room that opens to the rear garden — ideal for family life and entertaining. Upstairs the main bedroom benefits from fitted wardrobes and an ensuite; three further double bedrooms provide flexible space for children, guests or a home office.
Practical features include an integral garage, driveway parking for two cars and a useful ground-floor WC. The property scores an EPC B and is freehold. The rear garden is landscaped with paved patios, lawn and a pond, offering a pleasant private outdoor space for children and families. Newport town centre is about a mile away with primary, secondary and grammar school catchments nearby, and rail links from Telford and Stafford provide wider commuting options.
Notable considerations: the home sits in Council Tax Band E (above average local charge) and the neighbourhood records average crime levels; prospective buyers should factor this into ongoing costs and security choices. Measurements and services are provided as advised and should be independently checked by a buyer’s surveyor or solicitor. Overall this property suits buyers seeking a comfortable, modern family home in an attractive village setting with good local amenities.
4 bedroom detached house for sale in Church Aston, Newport, TF10 — £469,995 • 4 bed • 2 bath • 3045 ft²
4 bedroom detached house for sale in Silverdale Close, Church Aston, Newport, TF10 — £460,000 • 4 bed • 1 bath • 1614 ft²
4 bedroom detached house for sale in 88 Wellington Road, Newport, TF10 — £345,000 • 4 bed • 2 bath • 1285 ft²
3 bedroom semi-detached house for sale in Church Aston, Newport, TF10 — £349,750 • 3 bed • 2 bath • 1273 ft²
4 bedroom detached house for sale in 9 Cowslip Acres Newport TF10 9FB, TF10 — £350,000 • 4 bed • 2 bath • 1304 ft²
4 bedroom detached house for sale in 1 Greenfields Drive, Newport, TF10 — £355,000 • 4 bed • 2 bath • 1153 ft²


















































































