LN2 2QX - 7 bedroom detached house for sale in Wragby Road, Sudbrooke…

View on Property Piper

7 bedroom detached house for sale in Wragby Road, Sudbrooke, Lincoln, LN2

Summary - 65 WRAGBY ROAD SUDBROOKE LINCOLN LN2 2QX

7 bed 5 bath Detached

**Standout Features:**
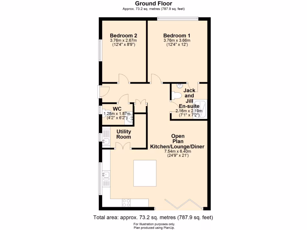
- **Expansive Space:** Over 4,800 sqft of living space across three floors.
- **Bedrooms:** Five double bedrooms plus a two-bedroom detached annexe.
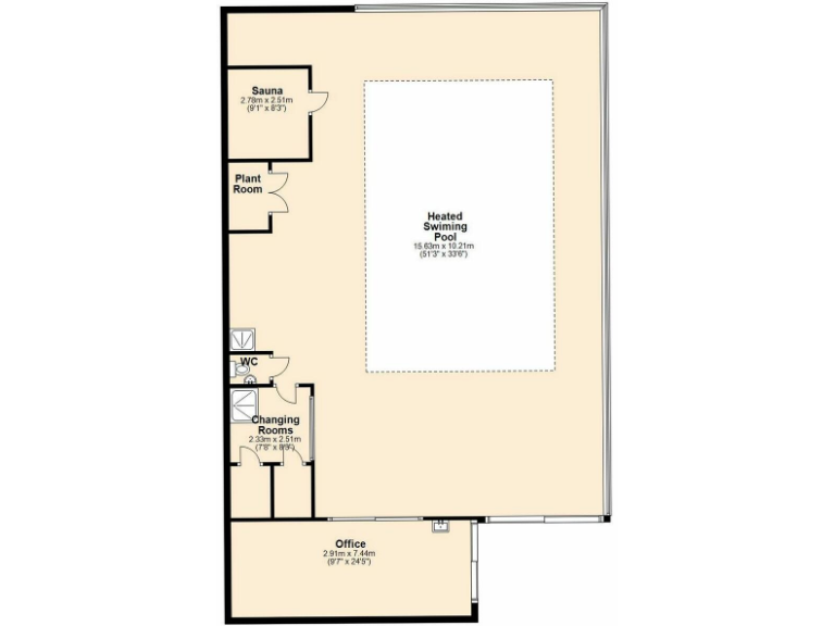
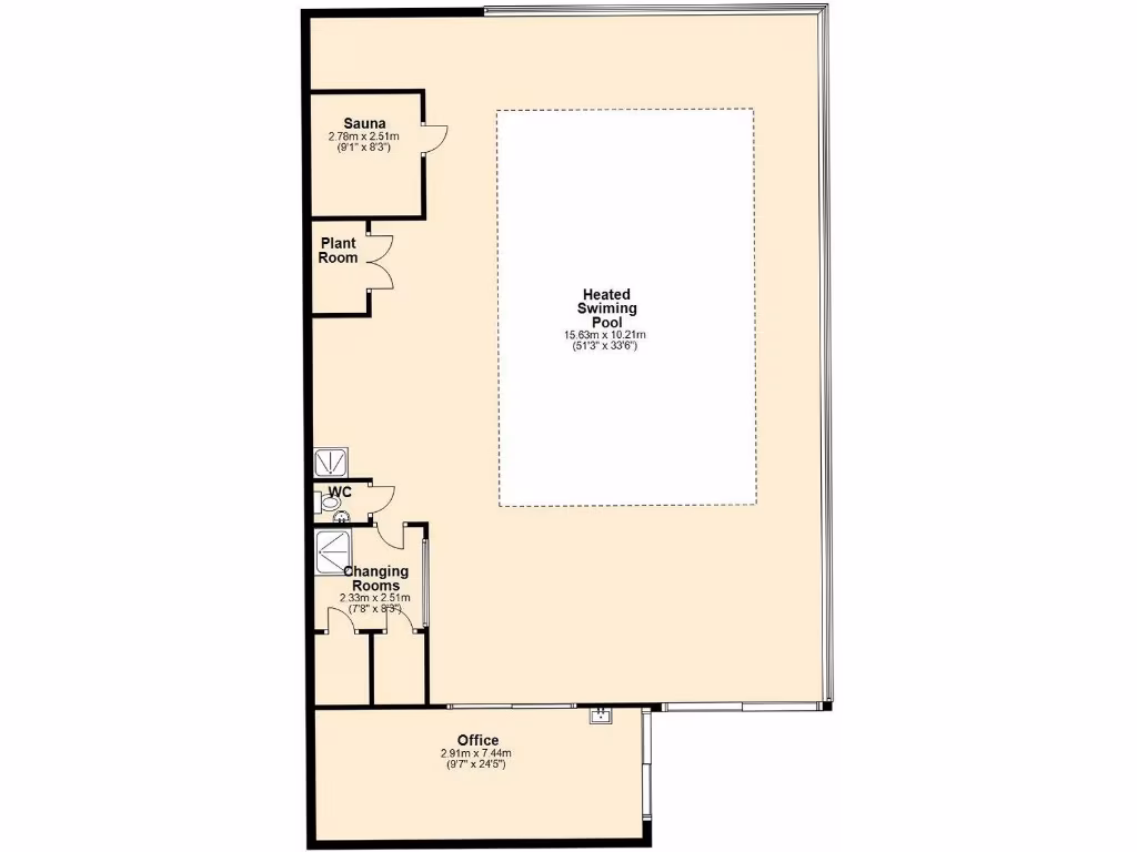
- **Unique Amenities:** Indoor heated swimming pool, sauna, home office, and games room.
- **Impressive Grounds:** Set on a private 1.1-acre plot with landscaped gardens, ponds, and a circular driveway.
- **Energy Efficient:** Equipped with solar panels and air source heating, rated EPC B.
- **Location:** Peaceful village setting in Sudbrooke with low crime rates and excellent school options.

**Summary:**
Discover unparalleled luxury in this stunning five-bedroom detached residence nestled in the desirable village of Sudbrooke. This exceptional home offers a remarkable 4,800 sqft of beautifully renovated living space, designed for both comfort and style. From the moment you enter through the elegant wooden doors, you're greeted by a sophisticated reception hall leading to a spacious dual-aspect lounge with a cozy log burner and a perfect entertaining layout including a games room and a modern dining kitchen featuring a pantry and walk-in fridge.

Ideal for families or those seeking multi-generational living, the property includes a self-contained two-bedroom annexe, providing flexibility for guests or as a private office space. The exclusive outdoor amenities are sure to impress, featuring a lavish indoor heated swimming pool, a sauna, expansive landscaped grounds, and an impressive circular driveway, all wrapped in the tranquility of 1.1 acres (STS).

Though set in a peaceful suburban area, you will also enjoy nearby amenities, with excellent schooling options and a quaint community atmosphere only four miles from Lincoln city center. This upscale home embodies a perfect blend of modern features and luxurious living—an opportunity you won’t want to miss! With exceptional views, energy-efficient technology, and versatility, this corner of serenity awaits its next owner. Don’t wait—properties of this caliber are rare!

Property Details

Image Descriptions

Floorplan Description

Rooms

Textual Property Features

Detected Visual Features

Nearby Schools

Nearest Bars And Restaurants

,,,,}

Nearest General Shops

,,}

Nearest Grocery shops

,,}

Nearest Supermarkets

,,}

Nearest Religious buildings

,,}

Nearest Medical buildings

,,,}

Nearest Airports

}

Nearest Leisure Facilities

,,,,}

Nearest Tourist attractions

,,}

Nearest Train stations

,,,,}

Nearest Bus stations and stops

,,,,}

Nearest Hotels

,,}

Tags

AirBnB Data

Similar Properties

Meta

High Res Images

Compatible Images

Low res Images

Thumbnails

Raw Images

High Res Floorplan Images

Compatible Floorplan Images

Low res Floorplan Images

FloorplanImages Thumbnail

Raw Floorplan Images