Spacious family home moments from parks, schools and local shops.
Three double bedrooms offering comfortable family accommodation
Large established rear garden with strong extension potential (subject to permission)
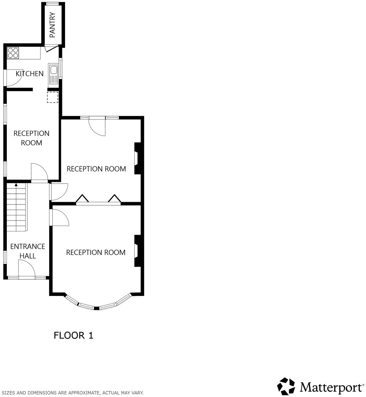
Three reception rooms provide flexible living and dining layouts
Chain free freehold — straightforward purchase process
Part secondary double glazing; cavity walls likely uninsulated
EPC rated D — energy efficiency improvements recommended
Single family bathroom; some modernisation likely required
Excellent location near Knighton Park, schools, and local shops
A traditional bay-fronted semi-detached home on a generous plot, well placed in a quiet cul-de-sac near Knighton Park. The ground floor offers flexible living with three reception rooms and a kitchen, while the first floor provides three double bedrooms and a family bathroom — a straightforward layout for family living.
The large established rear garden is a key asset, offering scope for children’s play, entertaining, or a substantial rear extension (subject to necessary planning permission). The property is chain free and freehold, making it a practical purchase for buyers wanting a timely move and long-term ownership.
Practical considerations include an EPC rating of D, part secondary double glazing, and cavity walls assumed without insulation — sensible buyers should budget for energy-efficiency improvements and some modernization. There is a single family bathroom and moderate council tax.
Location is a strong selling point: easy walking distance to Overdale schools, good access to local shops on Queens Road, and proximity to Leicester city centre and hospitals. This house will suit families who value outdoor space and the potential to personalise an established, character property.
3 bedroom semi-detached house for sale in Northfold Road, Knighton, Leicester, LE2 — £310,000 • 3 bed • 1 bath • 850 ft²
3 bedroom semi-detached house for sale in Ashclose Avenue, Knighton, Leicester, LE2 — £350,000 • 3 bed • 1 bath • 990 ft²
3 bedroom semi-detached house for sale in Shanklin Drive, South Knighton, Leicester, LE2 — £425,000 • 3 bed • 2 bath • 1216 ft²
3 bedroom semi-detached house for sale in Overdale Road, Knighton, Leicester, LE2 — £325,000 • 3 bed • 1 bath • 872 ft²
4 bedroom semi-detached house for sale in Knighton Church Road, Leicester, LE2 — £550,000 • 4 bed • 2 bath • 2101 ft²
3 bedroom semi-detached house for sale in South Knighton Road, South Knighton, Leicester, LE2 — £365,000 • 3 bed • 1 bath • 872 ft²


















































































































