Chain-free three-bedroom home with huge garden and extension potential near Walthamstow Central.
- Three double bedrooms across two storeys
- Large west-facing rear garden ~52 ft (rare for terrace)
- Chain-free freehold in Walthamstow Central
- Original Victorian features: bay window, fireplace
- Double glazing fitted post-2002; mains gas heating
- Solid brick walls assumed uninsulated (thermal upgrade needed)
- Requires cosmetic updating and some maintenance
- Area has high crime rates and local deprivation
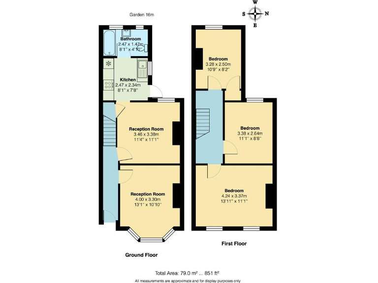
Set in central Walthamstow, this three-bedroom Victorian mid-terrace offers 851 sq ft of living space, original period details and a large west-facing garden of approximately 52 ft. The house is chain-free and well placed for Walthamstow Central and Queens Road stations, giving straightforward Victoria Line and Overground access to central London.
Inside are two receptions, a galley kitchen and a ground-floor bathroom. The front reception features a bay window and period fireplace; three double bedrooms sit upstairs. The property is presented in liveable condition but would benefit from updating — new kitchen, bathroom and decorative work would add value and modern comfort.
There is clear scope to extend (STPP) to increase living space and rental or resale potential. Construction is original solid brick with double glazing installed post-2002, mains gas boiler and radiators. No specific planning permissions are included with the sale.
Notable practical points: the area shows higher crime and relative deprivation statistics, and the property’s solid-brick walls are assumed uninsulated. Buyers should allow for maintenance and renovation costs when assessing value, and check planning constraints if pursuing an extension.
3 bedroom house for sale in Buxton Road, Walthamstow, E17 — £700,000 • 3 bed • 1 bath • 1195 ft²
3 bedroom house for sale in Belgrave Road, Walthamstow, London, E17 — £700,000 • 3 bed • 1 bath • 1128 ft²
3 bedroom house for sale in Albert Road, Walthamstow, E17 — £950,000 • 3 bed • 1 bath • 1198 ft²
3 bedroom terraced house for sale in Brookscroft Road, Walthamstow, E17 — £600,000 • 3 bed • 1 bath • 902 ft²
4 bedroom terraced house for sale in Wood Street, E17 — £700,000 • 4 bed • 2 bath • 1319 ft²
3 bedroom terraced house for sale in Chingford Road, Walthamstow, London, E17 — £600,000 • 3 bed • 2 bath • 976 ft²






































































































































