**Standout Features:**
- Expansive 20-acre estate with two detached stone properties.
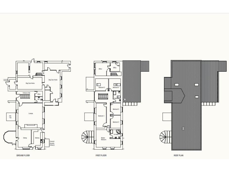
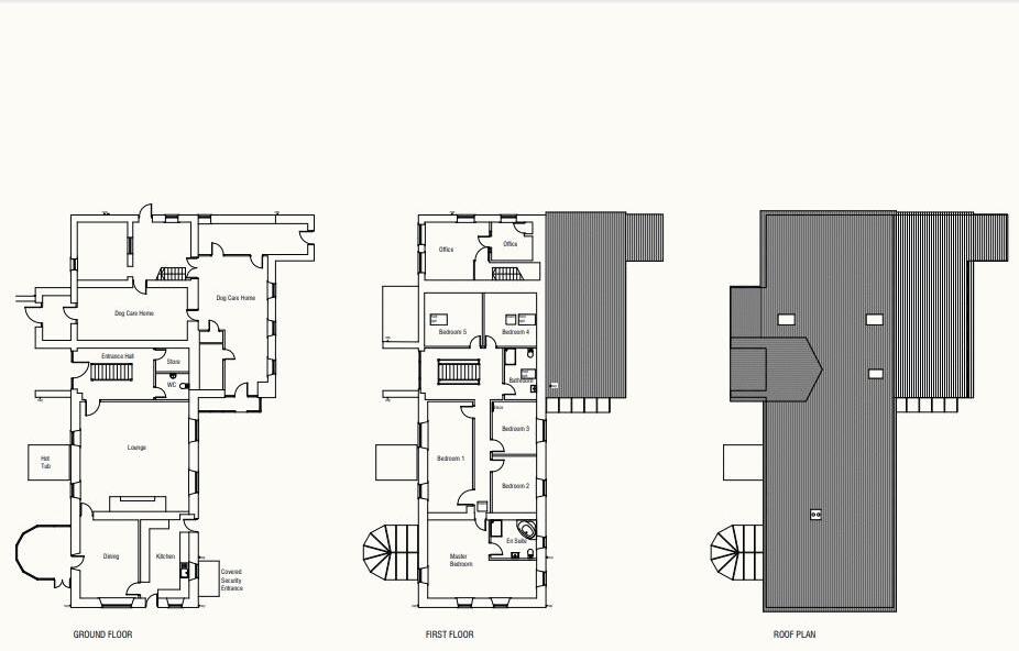
- Four-bedroom farmhouse with renovation potential; includes planning permission for two more ensuite bedrooms.
- Seven-bedroom, 5,500 sq ft barn with part commercial use and conversion possibilities.
- Landscaped gardens, large private driveway, and direct access to additional agricultural land.
- Quiet rural setting yet conveniently located near local amenities and M65 motorway.
- Excellent mobile signal, low crime, and access to popular schools.
Own a piece of idyllic Lancashire countryside with this magnificent 20-acre estate offering unparalleled potential for both personal enjoyment and investment. Comprising a four-bedroom stone farmhouse and an expansive seven-bedroom barn, both properties present a unique opportunity for refurbishment, allowing you to modernize while preserving their rustic charm.
The farmhouse features spacious living areas and a large garden set amid over two acres of land—ideal for families and horse lovers alike. The barn, rich in history, currently operates partially as commercial space, unlocking diverse possibilities for leisure or professional use. With excellent transport links and amenities just minutes away, this estate perfectly balances tranquility and accessibility.
Explore the potential of additional conversions, including an agricultural barn that could expand living space further, subject to planning approval. This estate is perfect for multi-generational families or investors seeking a lucrative rental opportunity in a serene, picturesque setting. Don’t miss out—properties of this scale and opportunity are rare; early viewing is highly recommended!
4 bedroom farm house for sale in Alma Place, Accrington, BB5 — £750,000 • 4 bed • 1 bath • 5100 ft²
5 bedroom farm house for sale in Ramsclough Lane, Oswaldtwistle, BB5 — £750,000 • 5 bed • 3 bath • 3076 ft²
3 bedroom detached house for sale in Pickup Bank, Darwen, BB3 — £650,000 • 3 bed • 2 bath • 2309 ft²
4 bedroom semi-detached house for sale in Longsight Road, Clayton Le Dale, Blackburn, Lancashire, BB1 — £550,000 • 4 bed • 2 bath • 2134 ft²
3 bedroom detached house for sale in Broken Stone Road, Feniscowles, Blackburn, Lancashire, BB3 — £595,000 • 3 bed • 1 bath
4 bedroom semi-detached house for sale in Kings Highway, Stone Fold, Accrington, Lancashire, BB5 — £1,000,000 • 4 bed • 4 bath • 3449 ft²






























































